
餐厅位于雅典市中心一栋办公楼的底层。商店正面面向公共步行门廊,门廊前宽阔的人行道作为商店的外部空间。
在最中心的地点之一探索底层商店与城市之间的关系是该项目的关键问题。目的是设计一个外向的公共体验空间创造者。
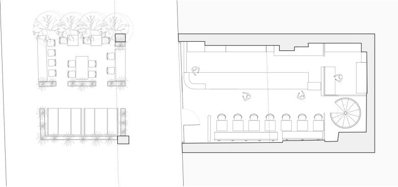
作为主要特征,大理石自助柜台在整个空间的深度中线性发展,突出了从背景到立面的运动,在那里它弯曲形成店面。
选择纹理和颜色来创造一个与周围城市空间形成鲜明对比的明亮空间。
事实与学分:
项目名称:“本地绿色”,健康食品餐厅
项目:将现有设施改造成餐厅
地点:Perikleous 32,宪法广场,雅典,希腊
面积:180 平方米
年份:2019
建筑设计 - 施工:km 建筑工作室
家具设计:km 建筑工作室
平面设计:Teokon 设计
摄影:Studio Kominis、km 建筑工作室
















正文完
更多资讯,敬请关注「走访建筑」微信公众号😘