
由 Wutopia Lab 设计的上海历史博物馆“房间里的广场”麻宝莉咖啡将于 2023 年 2 月在博物馆西楼一层开业。
项目名称:房间里的广场
建筑公司:Wutopia Lab
网站:http://www.wutopialab.com/
首席架构师:于婷
项目建筑师:孙立然
Design Team: Kuang Zhou, Pan Dali, Gao Bolong (intern)
设计开发:上海西域空间设计有限公司
DD Team: Dai Yunfeng, Guo Jianv, Wu Xiaoyan, Zhao Ruyi, Cui Xiaoxiao, Wang Binbin, Ma Chuanchuan, Zhang Minmin
Lighting Consultant: Zhang Chenlu, Du Yuxuan
材料顾问:孙静
摄影:CreatAR Images
Performance: Zhou Jitian, Zhu Liqian
客户:福特思鲁(上海)企业发展有限公司
建筑:ZOOM 建筑
Construction Team: Wang Liyang, Chen Weiming, Wu Jishun
地点:上海历史博物馆,西楼,上海,中国
面积:170㎡
竣工时间:2022.12
视频:https://youtu.be/91LcorQxfPg
咖啡与上海
你可以找到日本、韩国、美国、台湾或东南亚的咖啡馆,甚至在永康路上你还可以找到一家破旧但维护得很好的 80 年代台湾日式咖啡馆,但没有一家能代表上海。然而,上海的咖啡馆历史悠久。1945 年,张爱玲在《天地》杂志上发表了一篇文章《双声》,她一开始就说,当她和朋友出去时,无论做什么,最后都会去咖啡馆。当时,上海的咖啡馆是城市的公共空间,提供饮料和小吃,但它们也可以是舞厅、会议室、图书馆、信息中心和日常社交场所。
咖啡和广场
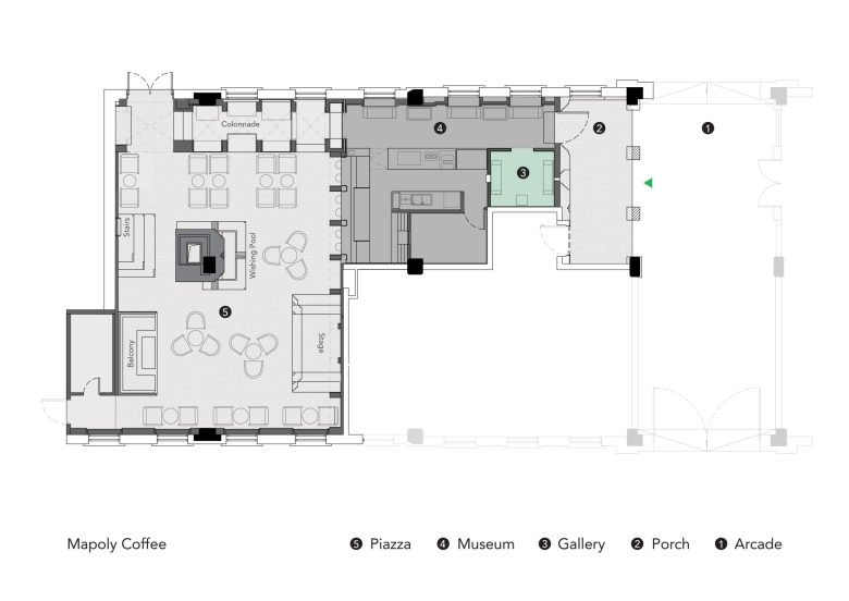
咖啡馆的平面形状像刀柄。文物局要求保留外立面。另外,西楼是赛马厅的马厩,所以立面的窗户都很高,需要磨砂玻璃,导致室内采光和室外景观不足。
内部空间其实很难处理,因为中间还有一根巨大的柱子。城市类型中最公共的地方是欧洲的那些小广场。我决定创造一个令人愉悦的公共场所——上海咖啡馆,将各种建筑构件组合成一个抽象的正方形,植入西楼一楼的内部,参考 模式语言 (克里斯托弗·亚历山大、默里·西尔弗斯坦和萨拉·石川,1977)。
中央的柱子被改造成一座带有许愿池的纪念碑,后面刻着我小说的一段内容。周围有楼梯、柱廊、带壁炉的舞台和作为阳台的玻璃盒子。可以有鲜花、咖啡、一点酒、爱情、八卦、宠物、单口喜剧、一首突然响起的阿尔罕布拉宫回忆之歌和一段即兴探戈。可能有忙碌、快乐,也可能有隐藏的嫉妒。
“昨天只是今天的记忆,明天是今天的梦想。”(纪伯伦《先知》,1923 年)
微城市的片段
当顾客从黄陂南路骑楼进入时,原本必须通过公共前厅和公共卫生间到达咖啡馆。我们决定拆除三扇玻璃门,将前厅变成一个模糊的空间,一个与室内广场的柱廊遥相呼应的门廊。从那里,我们推开门,走上几步,进入咖啡馆的酒吧区。黑条区域是“刀柄”的手柄部分,服务空间占据了主要区域。我们将过道变成了展览和休闲座位区。门的一侧是一个由绿色手工砖砌成的外卖等候区,还有一个与上海历史博物馆合作的小画廊,在那里你会惊讶地看到外卖咖啡从一个隐藏的框架中递出。
博物馆的尽头是一扇不锈钢推拉门,后面有一个白色的柱廊。柱廊的地板与博物馆齐平,因此高高的窗户适合人体尺寸。从柱廊开始,台阶将人们引向白色的广场。从广场回头望去,黑色的酒吧坐落在白色的柱廊之中,人们可以在这里休息、喝酒,同时观看广场上的喜剧。外墙的柱廊里摆满了低矮的沙发,重写了我对伊斯坦布尔水烟咖啡馆的印象。阳光透过柱廊中流动的烟雾照射进来。心安理得,生活就是这样。
马波利咖啡,从柱廊进入有展厅的博物馆,再走到有柱廊的广场,是我想象中的微型城市的一个片段。把这个“房间里的广场”放大,那就是我理想中的城市——上海。
“没有人会在没有赢得胜利的情况下学习。”
装饰品
我的上海从来都不是极简主义的。她需要一些非常克制的装饰、记忆标记和象征意义。入口廊的地板中间镶嵌着翻修时发现的马厩瓷砖。在黑色酒吧的柱廊拱门上也可以看到纪念马厩的马蹄形符号。黑色博物馆里的高墙板、珐琅地砖、拼花地板和绿色手工瓷砖正在塑造一个记忆中既真实又不真实的上海,而以咖啡樱桃为灵感的彩色玻璃天花板则将其戏剧化。
我们跳舞吧
我是一个面临中年危机的人。但创建这家咖啡馆,让役所宏或埃尔·帕西诺可以即兴演奏探戈,我实现了我年轻时的梦想。我靠在楼梯上,喝了香槟,有点醉意,楼梯上的门实际上是我思绪徘徊的画布。我的好朋友舞蹈家周吉田和朱丽倩在广场上跳的探戈让我想起了 90 年代,一个充满可能性和勇敢的时代。
我们跳舞吧?好吧,我不会跳舞,但我想和你笨拙地跳舞,纪念碑上的天花板永远是晴朗的,不管外面有没有暴风雨。
“我只想从你那里得到新的一天。”
我眼中的上海
玛宝莉咖啡能展现昼夜交替生活方式的城市,是我眼中上海的一个片段。我曾经对上海失去了信心,也曾因在病床上的挣扎而叹息。但当我推开厚重的黑色大门时,一个熟悉而勇敢的上海向我扑面而来。嗯,上海还活着。











