ORA has inserted a contemporary house inside a ruin in the czech republic, where all was left of the original building was a brick envelope with a roof. instead of restoring the entire structure to its original state, the architects decided to fix the current state of the ruins, and tear down the inner parts of the building. a new, insulated house is built anew inside the existing ruins, while a ventilated gap has been added between the new and the original structure, making sure the two do not touch.

all images by boysplaynice
‘the project is our manifesto of how it is possible to treat old houses,’ says ORA. ‘it is not necessary to lose the authenticity of old age. it is not necessary to demolish, neither to reconstruct dogmatically. at the same time, even in such a case, it is possible to build economically using modern materials and achieve the required parameters.’the former homestead was rebuilt under the communist regime into a granary, after which it was looted and reorganised for another purpose. after analyzing its joints, niches and protrusions, the architects decided to preserve the existing ruins and insert a contemporary structure inside that would serve as the new home for the owners.

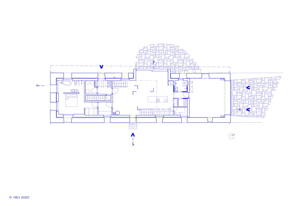
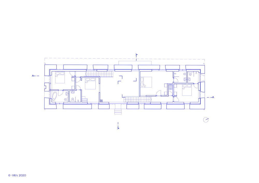
the interior of the building was completely torn down, while ORA reintroduced the original layout with two floors instead of three, as well as the original scale. large openings have been opened on the façade where needed, depending on the needs of a contemporary layout.
‘we have built a new, insulated house into the existing staged ruin, a one that can meet all current energy standards,’ adds the czech architecture office.‘we reused the structurally sound wooden beams as elements of ceilings and truss replacements. most of the material remained in place, just rearranged.’

thanks to a ventilated gap between the new and the original structure, the two buildings do not touch, while the new one is sometimes slightly shifted from the old. the windows do not fit precisely the openings in the old wall, and, in some places, the old wall is also present in the interior. the new building penetrates through openings in the old wall, and, on the contrary, the old wall enters through new windows, resulting in a visual intertwining of the two worlds.

as guests enter the house, they are met with a generous double-height living space with a tiled stove and a kitchen. stairs in a generous hall lead to individual rooms with bathrooms, where they can enjoy the tranquillity of the space and look out into the open landscape. ORA has added a round table in the hall of the house, which visually communicates with a massive oak table outside, where guests can spend time when the weather allows it.

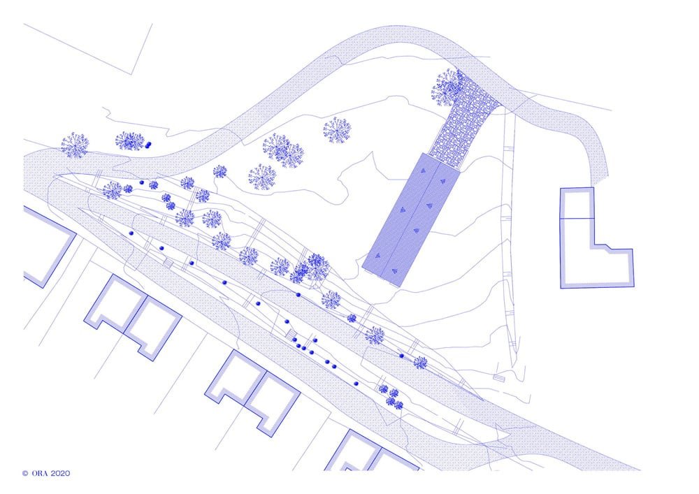
outside, the garden, designed in collaboration with štěpánka černá, becomes a natural part of the existing landscape. there are no physical boundaries except for fragments of low walls and a corten gate. as such, the garden becomes the binding element between the house, its views and surrounding landscape.







project info:
name: house inside a ruin
architect: ORA
team: jan hora, barbora hora, jan veisser, tomáš pospíšil
location: jevíčko, zadní arnoštov, czech republic
total built area: 250 sqm
landscape: štěpánka černá











