offering views of the atlantic ocean,‘sand house’by studio MK27 almost disappears into its coastal plot in northeastern brazil. surrounded by tropical trees in the state of bahia, the beach house — photographed here by fernando guerra — is elevated on a wooden deck that supports five enclosed volumes. the entire deck is covered by a permeable eucalyptus pergola supported by 14 laminated wood frames. both the deck and the overhead canopy are punctured by several trees that provide residents with a constant source of shade.

all images by fernando guerra
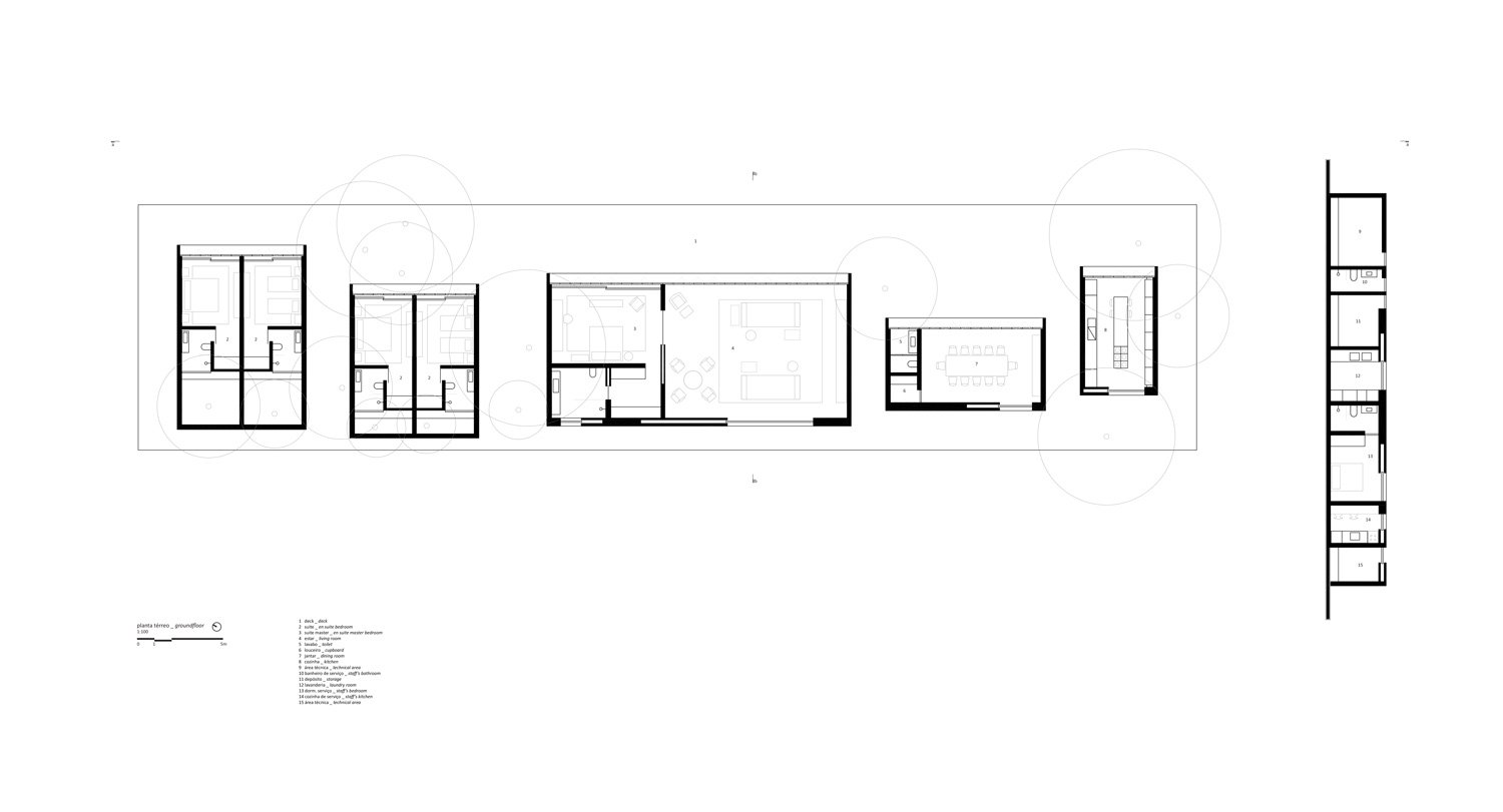
internally, studio MK27 reduced the program to contain only essential living spaces. the five volumes are each dedicated to a single function: the kitchen, the dining room, the living room, the main bedroom, and the guest bedrooms. the deck itself serves as the circulation space, with the positioning of the volumes resulting in a variety of communal and more private areas. by dissolving the boundaries between external and internal space, the project is able to harmonize with nature, thus becoming part of the natural landscape.

separate from the main structure, a swimming pool is positioned closer to the shoreline. however, rather than sharp lines and right angles, the pool has a more natural and organic shape that allows it to enter into a dialogue with the house. studio MK27 was also responsible for the project’s interiors, which include a dining table by roger capron and a jean gillon-designed armchair. see other projects by studio MK27, the firm led by architect marcio kogan, on designboom here.










project info:
name: sand house
location: trancoso, bahia, brazil
dates: july 2015 – april 2019
site area: 6,570 sqm / 70,719 sqf
built area: 819 sqm
architecture and interiors: studio MK27
architect: marcio kogan
co-architect: marcio tanaka, beatriz meyer
interior design: diana radomysler, serge cajfinger
interior design co-author: pedro ribeiro
project team: carlos costa, laura guedes, mariana simas, oswaldo pessano
landscape designer: isabel duprat arquitetura paisagística
structural engineer: inner engenharia; eng. ricardo bozza, eng. marcelo josé bianco
photography: fernando guerra
wood structure: carpinteria, eng. alan dias; rewood, eng. calil neto
MEP: zamaro instalações hidráulicas e elétricas
foundations: inner engenharia
garden lighting consultant: lightworks iluminação
construction manager: sc consult, eng. sérgio costa
air conditioning: logiproject
automation consultant: g&f engenharia e iluminação
audio and video installation: office facilities
contractor: kross engenharia, eng. sérgio ramos, eng. davi moraes
main suppliers: mado (window wood frames) / plancus (wood structure) / plancus (wooden doors, panels, brise-soleil, deck and ceiling) / lightworks (light fixtures) / tresuno (cement floor) / pedra bellas artes (stone floors, tops and countertops) / comarx (swimming pool installations) / monteiro irrigação (irrigation) / marcenaria dati (woodwork)



















