studio zhu pei completes the imperial kiln museum in a historical area of jingdezhen, known as the‘porcelain capital’of the world. the region, which had produced and exported pottery for more than 1,700 years, is now characterized by a fabric of ruinous ancient kiln complexes. the new museum, first designed in 2016 with respect for the history of its context, comprises more than half a dozen brick vaults base on the traditional form of the kiln, the apparatus used to create pottery for centuries. the vaults — each a different size, curvature, and length — are integrated with the many existing ruins, some of which were discovered during the project’s construction.

image by schran image
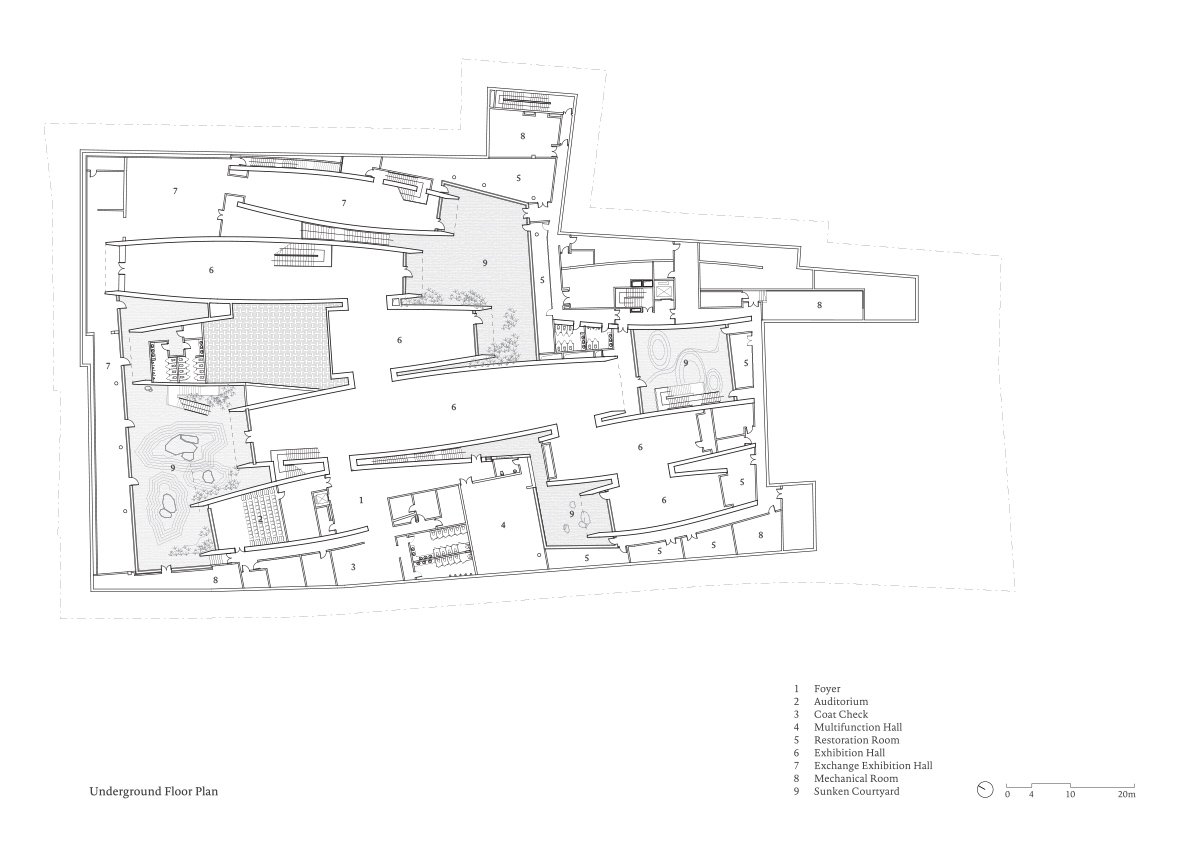
sited among the ruins of the ming and qing dynasties, studio zhu pei aligns the plan of its imperial kiln museum along the street grid of the ancient city of jingdezhen. the project welcomes visitors from imperial kiln relic park with a forested green canopy that flows into the open foyer of the museum. the cluster of vaults, mimicking the ruins, are sunken below the level of the street. this strategy offers a flexibility to adapt into the complex site, while introducing an intimate scale of interior space. the‘insertion’of the project into the ground of the site generates a network of public spaces at the level of the street.

image by fangfang tian
studio zhu pei expresses influence from traditional structural methods in the design of the imperial kiln museum. the vaulted geometries are produced by poured concrete between two layers of masonry brick walls. the team makes use of recycled kiln bricks, a common method of the region and a significant characteristic of the fabric of jingdezhen. this condition is a result of the need for contemporary brick kilns to be demolished every two or three years to maintain a certain thermal performance of the kilns. interior natural light is achieved with skylights inspired by the smoke holes of the ancient brick kilns. the skylights, hollow cylinder volumes, are distributed across the top of each vault to provide natural light during the day time and artificial light at night.

image by schran image

image by studio studio zhu pei

image by studio studio zhu pei

image by schran image

image by schran image

image by schran image

image by schran image

image by schran image

image by schran image

image by schran image

image by schran image

image by schran image

image by schran image

image by schran image
project info:
name: jingdezhen imperial kiln museum
location: jingdezhen, jiangxi, china
address: east gate of royal kiln factory, junction of shengli road and zhonghua north road, zhushan district, jingdezhen, jiangxi
design: 2016-2017
construction: 2017-2020
area: 10,370 sqm
architect: studio zhu pei, architectural design and research institute of tsinghua university
design principal: zhu pei
front criticism: zhou rong
art consultant: wang mingxian, li xiangning
design team: you changchen, han mo, he fan, liu ling, wu zhigang, zhang shun, shuhei nakamura, yang shengchen, du yang, chen yida, he chenglong, ding xinyue
structural consultant: architectural design and research institute of tsinghua university
MEP consultant: architectural design and research institute of tsinghua university
green building consultant: architectural design and research institute of tsinghua university
landscape design: studio zhu-pei, architectural design and research institute of tsinghua university
exhibition design: studio zhu-pei, beijing qingshang architectural ornamental engineering co., ltd.
interior design: studio zhu-pei, beijing qingshang architectural ornamental engineering co., ltd.
facade consultant: shenzhen dadi facade technology co., ltd.
lighting consultant: ning field lighting design co., ltd.
acoustic consultant: building science & technology institute, zhejiang university
client: jingdezhen municipal bureau of culture radio television press publication and tourism, jingdezhen ceramic culture tourism group
main contractor: china construction first group corporation limited, huajiang construction co., ltd of china construction first group
photography: studio zhu-pei, schran image, tian fangfang






