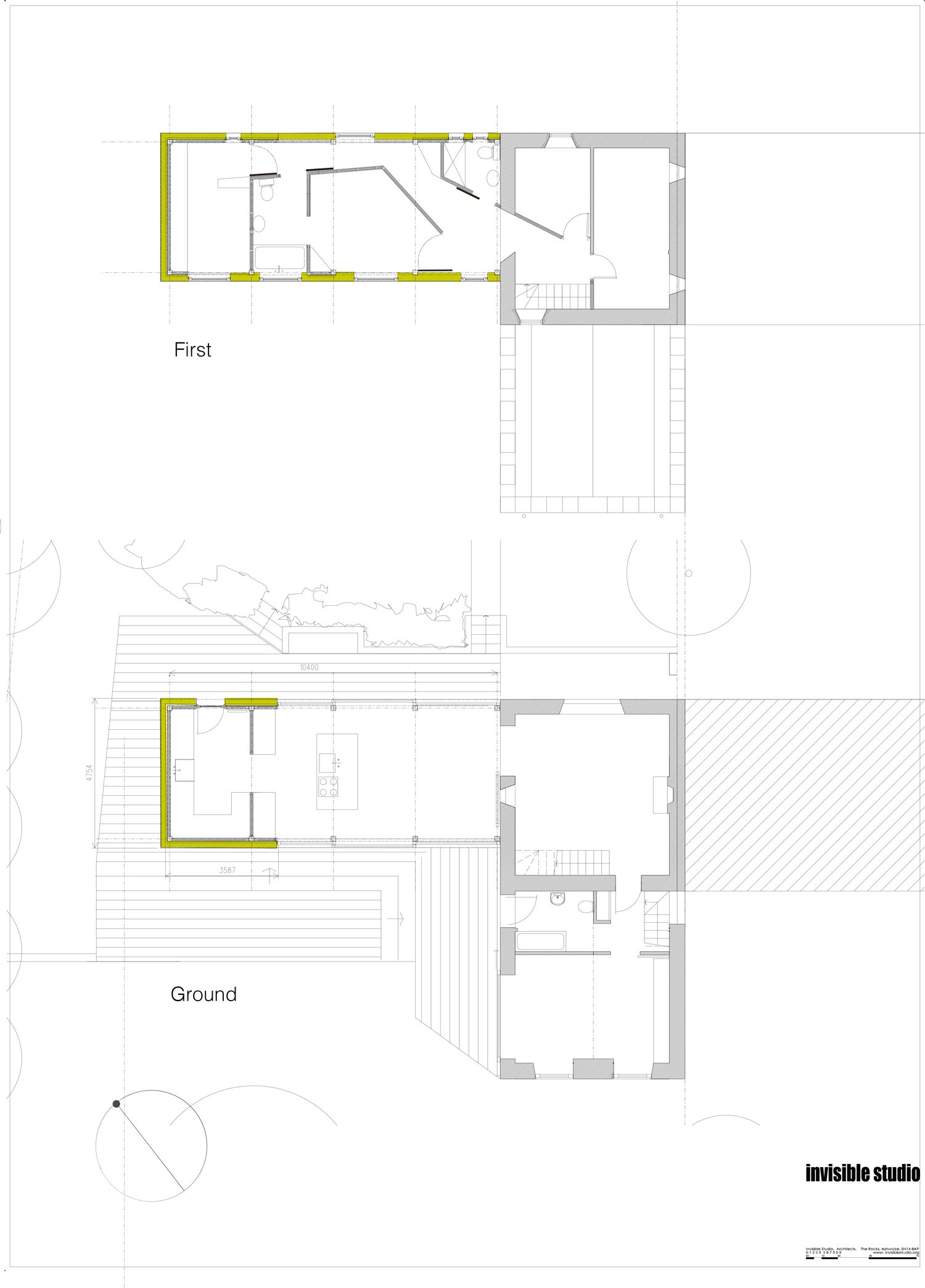
piers taylor, principle of architecture practice invisible studio, has retrofitted his own home in south west england to achieve exceptional levels of insulation, air-tightness, and autonomy. named‘moonshine’, the original property was built in 1786 as a school for a large country house nearby. this structure was then extended by invisible studio in 2002, with taylor and his family living in the dwelling since. in the intervening period, piers taylor has built various other projects in the woodland that surrounds the house — including the practice’s own studio.

all images and video by jim stephenson, unless otherwise stated
the original extension of‘moonshine’, which was one of invisible studio’s first buildings, was carried by taylor himself who had to bring the materials 600 meters along a steep woodland track as the site had no vehicular access. as much has changed in terms of insulation knowledge and air-tightness since 2002, taylor sought to future-proof the existing house and make it as low energy as possible.

image by piers taylor
in order to achieve exceptional levels of insulation, air-tightness, and autonomy, taylor removed and replaced the building’s floors, walls, roof, and glazing, while leaving its structural timber frame intact. the house was extensively thermally modeled with glazing reduced to avoid heat loss. a biomass boiler, fed from waste timber from the surrounding woodland, provides heat and hot water when needed, while new electric in-floor heating is linked to off-grid photovoltaics on the roof with a battery back up.
watch a video documentation of the project by jim stephenson, with the thoughts of piers taylor, at the top of this page. see other projects by invisible studio on designboom here.


image by piers taylor


image by piers taylor



image by piers taylor

image by piers taylor


image by piers taylor

image by piers taylor


project info:
name: moonshine
location: near bath, UK
architecture: invisible studio
photography: jim stephenson, piers taylor









