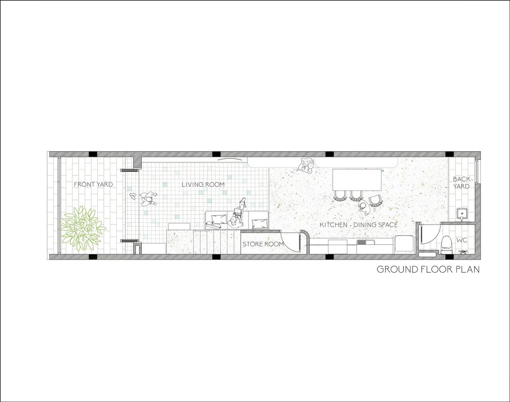
AD9 architects has completed‘THD house’with a perforated metal façade and a sloped roof garden in ho chi minh city, vietnam. the three-story residence is a gift from a daughter to her mother, and thus designed to facilitate the daily activities of an elder and create functional connections between different areas. the vietnamese studio has prioritized natural ventilation and a sense of spaciousness within the house, while various types of greenery both inside and outside bring nature into the residents’everyday lives.

all images by quang tran
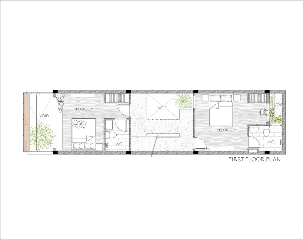
AD9 architects has placed the kitchen, common living space and the mother’s bedroom on the ground floor. her children’s bedrooms are located on the first and second floors, which are designed as a multiple-level structure to create more space and allow ventilation. the two bedrooms still ensure enough privacy when needed, and communicate with the rest of the house through the central void.

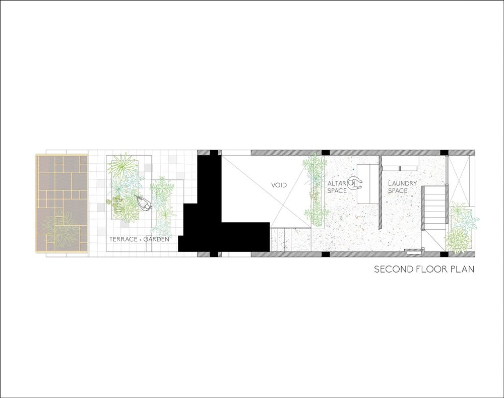
the central void spans the entire height of the building, and is topped with a skylight that brings natural light within the core of the house. two more voids, one at the front and one at the back, serve as open yards for the lower floors. on the top, the sloped roof is utilized for growing plants, flowers, and organic vegetables. AD9 architects designed this part of the house for the inhabitants to use daily, come in contact with nature and socialize.










project info:
name: THD house
architect: AD9 architects
location: binh tan district, ho chi minh city, vietnam
team: nguyen nho, nguyen thanh hai nam, nguyen huynh thanh tan, phan trong hiep, dang thanh phat, hua huu phuoc, nguyen duc truyen














