ensamble studio, the architecture firm led by antón garcía-abril and débora mesa, has built its own prototyping facility and fabrication laboratory in madrid. called‘ensamble fabrica’, the project proudly exhibits the studio’s innovative construction techniques. ‘besides serving its purpose as a work place, it is a proof of concept that tests the hybrid steel-concrete construction technology our firm has developed in the past years, meant to innovate the way in which high-rise and long span structures are built, using prefabrication,’ explain antón garcía-abril and débora mesa.

all images © ensamble studio
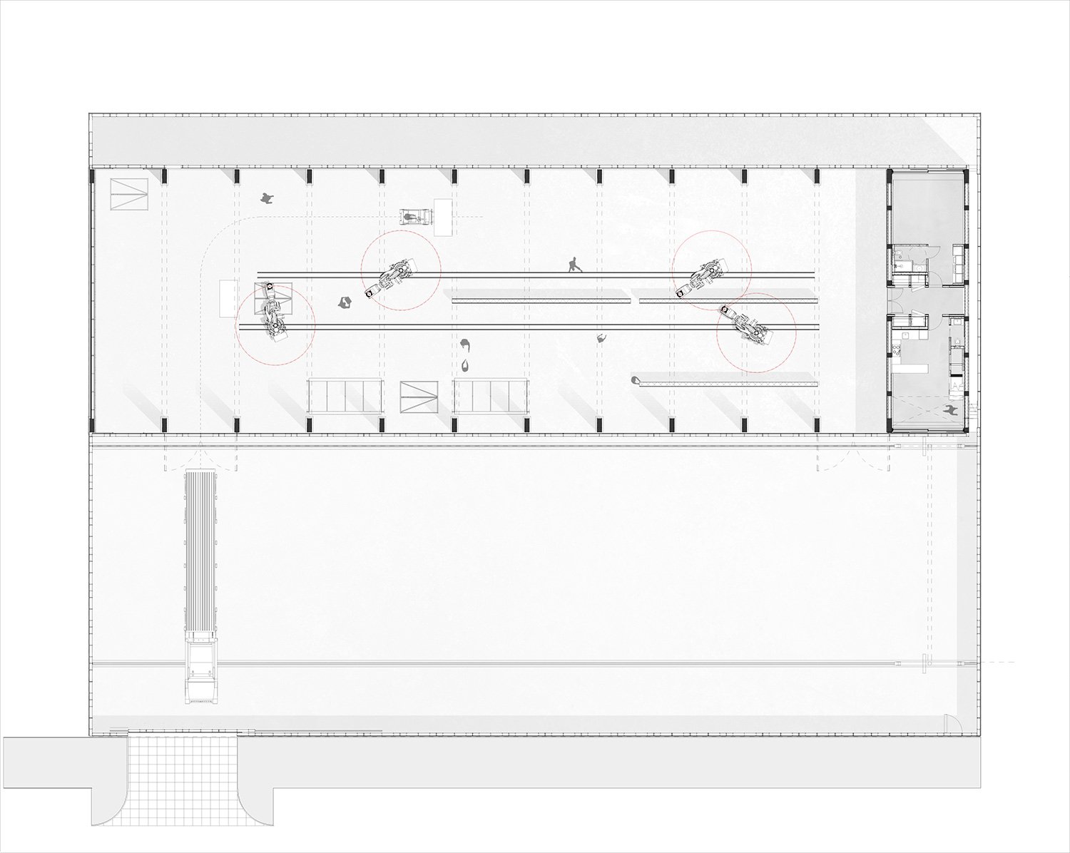
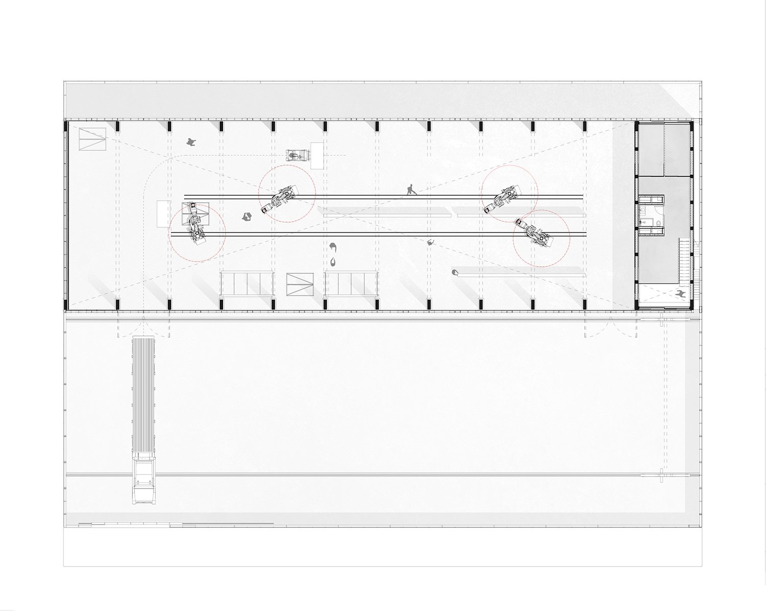
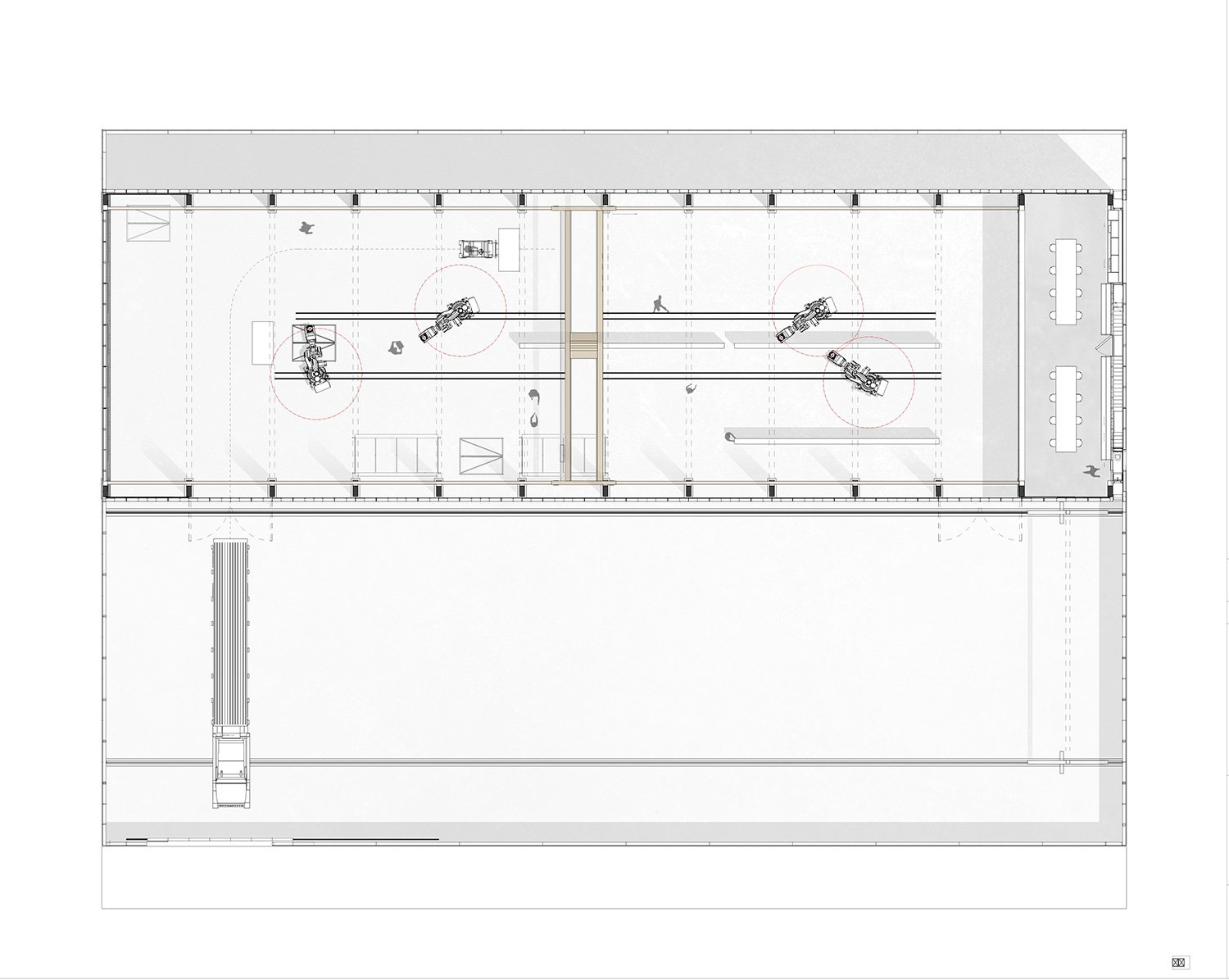
comprising 12 porticos,‘ensamble fabrica’is 58 meters (190 feet) long and 18 meters (59 feet) wide. this 12 meter-tall (39 ft) volume, contains an open four-storey hangar as well as office and other support spaces.‘the galvanized steel formwork that makes trusses and columns is light and easy to fabricate and assemble to its final position, when it is filled with concrete and becomes a monolithic structure,’ the architects at ensamble studio continue.

the architects say that the building, and the activity that takes place within it, is meant to transform the way in which buildings are designed, engineered, and built.‘today the construction industry is one of the most obsolete and reticent to innovate,’ say antón garcía-abril and débora mesa.‘we transport the materials, tools, and people to the place where the building is erected, the work is done locally, many times under adverse weather and working conditions; and the whole process is highly inefficient.’

the architects hope that the project will lead to the increased incorporation of advanced technologies, such as digital manufacturing, automation, and robotics in the construction process.‘after years working as architects, builders and more recently, manufacturers of our own works,‘ensamble fabrica’will be equipped to support our endeavors and projects, develop the spaces we dream of, delivering building parts to be quickly, safely and efficiently assembled in-situ, anywhere in the world,’ conclude the architects.










project info:
name: ensamble fabrica
location: madrid, spain
date of research & project: 2016 – 2018
date of fabrication: 2018 (august) – 2019 (march)
date of assembly & construction: 2018 (september) – 2019 (may)
author of the project: antón garcía-abril & debora mesa molina
project team: ensamble studio — javier cuesta (building engineer), borja soriano, niccolo ciaccheri, federico lepre, massimo loia, alvaro catalan, mengyuan cao, maría josé carrillo, mónica acosta, elyse khoury, marco antrodicchia, arianna sebastiani
developer: ensamble studio / WoHo systems
construction management: materia inorgánica
consultants: urculo engineering (MEP); jesús huerga (structure)
built area: 1,150 sqm / 12,379 sqf
volume: 11,480 m3 / 405,412 ft3
photography: ensamble studio















