in 2015, the juilliard school, new york’s premier performing arts conservatory, announced plans to build a campus in the chinese city of tianjin — 45 minutes from downtown beijing by high-speed train. two years later, the school broke ground and, despite the pandemic, the building opened to students in late 2020. located in binhai’s yujiapu financial district, the building was designed by diller scofidio + renfro (DS+R), the same firm responsible for the 2009 expansion of juilliard’s new york home as part of its lincoln center masterplan.‘we were really cognizant of wanting to make the juilliard project not just an educational facility, but also a community facility,’ explains charles renfro, partner at DS+R, speaking at a virtual tour of the project attended by designboom. ‘we wanted to make it become part of the daily lives of those people that work, play, and live in the binhai district.’

all images by zhang chao, courtesy of diller scofidio + renfro
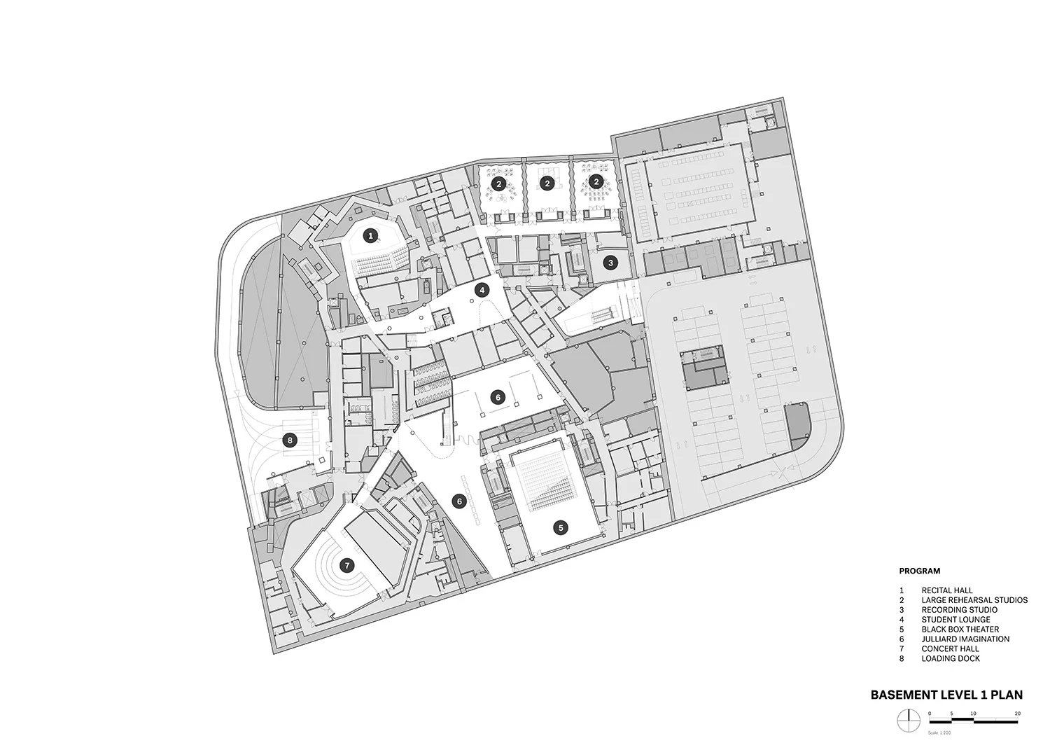
as the plot forms part of a park district, diller scofidio + renfro was keen to tread lightly on the terrain, while preserving public access.‘one of our first decisions was to take the three major performance spaces, a concert hall, a recital hall, and a black box theater, as well as the larger scale rehearsal spaces, and to sink them into the ground by one floor,’ renfro continues. this gesture allows the porous ground floor lobby, with its multiple access points and glazed façades, to serve as a continuation of the surrounding parkland.

the tianjin juilliard school comprises a total of four faceted pavilions housing a 690-seat concert hall, a 299-seat recital hall, a 225-seat black box theater, and administrative, faculty, and rehearsal programs. serving as cornerstones for the campus, these pavilions are connected by five windowed bridges that each house two levels of instructional spaces. visible from the lobby below, the bridges contain 12 classrooms, 23 teaching studios, and 86 practice rooms. where the bridges intersect, students can gather in intimate, double-height lounges with city or river views.

‘the most important aspect of the diagram for us was that we elevated all the teaching and practice spaces into a series of bridges that span between the pavilions,’ says charles renfro. ‘the bridges are actually structured as bridges, they have no vertical columns that go down to the lobby. most importantly, both sides of the bridges are completely glazed with soundproof glazing.’ this means that the classrooms, teaching studios, and practice areas within the bridges are all naturally illuminated, while offering occupants outward views and sightlines.

in addition to its role as a center for performance, practice, research, and interactive exhibitions, the school also includes communal spaces that have been designed to welcome the public into the creative process and performance of music. ‘in essence, what we tried to do by making these five bridges is allow the public space to roll right through the building,’ renfro adds.

externally, a plaza positioned to the north of the site features a series of gardens designed in collaboration with hargreaves jones, while the south plaza — programmed for public performance and events — features stepped piano-key like seating and planting, and shallow reflecting pools. importantly, the lobby, which provides interior access to all three concert venues as well as public space for both citizens and visitors, has a total of six welcoming entrances.
another important part of the project is‘juilliard imagination’, a multi-faceted, digital learning environment at basement level that lets the public learn about the school and its heritage of music, dance, and drama. the digitally connected exhibition space is capable of hosting livestreamed concerts between tianjin julliard school and the juilliard school in new york.

on the building’s fourth level, an orchestral rehearsal space above the main concert hall opens up to a roof terrace with planting, paving, bench seating, and river views. in addition to housing the full orchestra for rehearsals, the rehearsal space can be used as a multi-purpose, pre-function room for a variety of events. direct access from the ground level is provided by an external stair clad in faceted wood panels.

elsewhere on level 4, the building’s library includes reading rooms and reference sections, as well as computer and multimedia stations for faculty and staff. ‘the library was intended to be far away from the hubbub of the lobby and the performance and rehearsal spaces, to provide a place of repose for study,’ renfro explains. continuing the design’s sense of transparency, the open stacks on level 5 can be seen through a glass floor from the reading room below. in addition, three of the four pavilions house administrative offices in their upper levels. these levels feature open office plans with large atria to draw in daylight.

during the day, large skylights illuminate the lobby, providing sufficient sunlight for plants that are normally grown outdoors. meanwhile, at night, the building dramatically transforms to become a‘nocturnal destination’. ‘we were very conscious of the way the building would show itself at night and worked with tillotson design associates to make the theater of the building more pronounced,’ renfro explains. ‘as twilight comes, the building reveals itself to be a nocturnal destination.’

designed in collaboration with jaffe holden, the same acoustician as juilliard’s new york campus, the school was built to meet the high demands for world-class acoustics and sound isolation, without compromising the building’s openness and transparency. common strategies used for both campuses include box-in-box isolation and adjustable acoustic banners, as well as the same specifications for seating in the performance halls and the same custom steel acoustic doors in the practice and teaching areas. the concert hall in tianjin is acoustically isolated on giant springs, while an acoustic resonant chamber under the stage enhances the sound of cello and bass.

from an environmental standpoint, exterior shades provide solar control, while solar heat gain is reduced by a radiant floor cooled by water circulated through tubing embedded in the structural foundation piles. dedicated outdoor air systems with energy recovery, coupled with radiant heating and cooling panels condition all but the larger performance spaces. the concert and recital halls utilize underfloor displacement ventilation for enhanced air quality, comfort, and energy performance. see designboom’s previous coverage of the project here.


project info:
name: the tianjin juilliard school
location: tianjin, china
design architect: diller scofidio + renfro
executive architect: east china architectural design & research institute (ECADI)
landscape: hargreaves jones
structure/MEP: ECADI with arup
acoustics: jaffe holden acoustics
theater: fisher dachs associates
curtain wall: front
lighting: tillotson design associates
climate: transsolar
AV/IT: shen milsom wilke
general contractor: MCC tiangong group co., ltd.
facade glazing: luoyang north glass technology co., ltd
facade wood cladding: parklex international s.l.
performance hall wood veneer: SanFoot
more info: DS+R’s website






