hiroshi nakamura & NAP have completed a residence in japan that is articulated around a secluded courtyard garden. the project, titled‘house of the sacred rock’, is located in a residential area of northern kyoto in close proximity to landmarks such as the yamazumi shrine and mount hiei. as the people who live in the area look to the landscape to read weather and seasonal changes, the architects decided to create a space that provides residents with views of the mountain and a close connection with nature.

image © TOREAL / koji fujii (also main image)
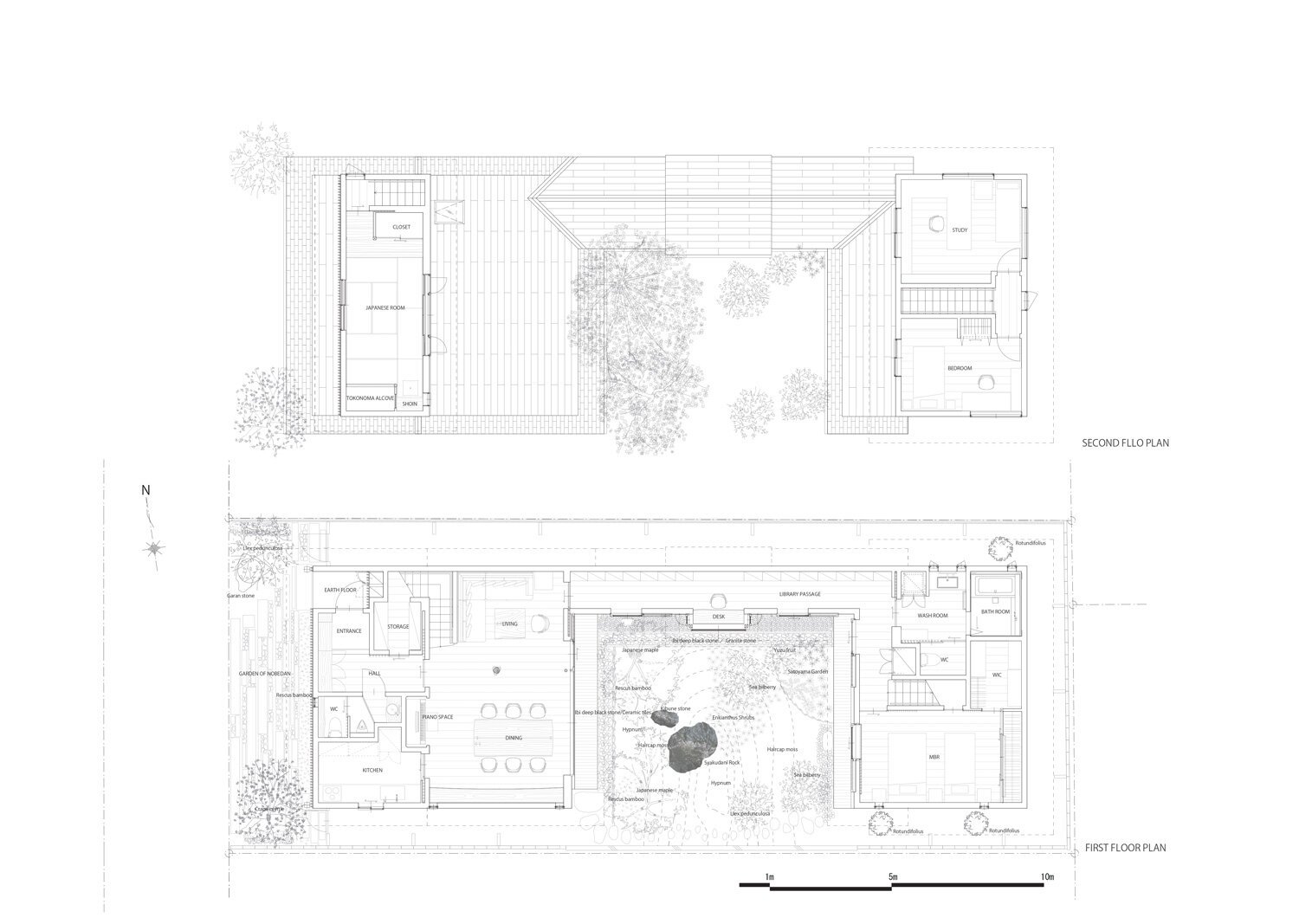
as the plot was surrounded by other houses, hiroshi nakamura & NAP designed‘house of the sacred rock’with a closed timber façade facing the street. meanwhile, at the center of the house, an external courtyard serves as the home’s focal point — offering views and natural light from each room. within this courtyard, a mound has been created using the soil excavated for the building’s foundations. this new terrain deliberately obscures sightlines between the dining area and the bedroom at the rear of the plot. these two parts of the house are connected with a library passage that includes a desk overlooking the garden.

image © TOREAL / koji fujii
‘in the center of the garden, a sacred rock where a god dwells was dedicated,’ explain the architects. ‘while the rock has a very material presence, it also has transcendency as a sacred space. we felt that this dual nature would bring infinite expanse to this small architecture and garden. with the sacred rock in the center, the garden thus became a modeled scenery of mt. hiei. plants of smaller scale such as haircap moss, enkianthus perulatus, and ruscus bamboo provide additional depth to the perspective.’

image © TOREAL / koji fujii
with the design of the garden, the architects sought to create an outdoor space suitable for meditation and enlightenment. ‘by increasing density of the garden below the eye level when sitting, we elicit the behavior of lowering eyelids to have the eyes half-closed,’ continues the design team.‘this is the natural eye level when practicing seated zen meditation and a state of contemplating the inside of one’s mind and outside world simultaneously. as the origin of garden is said to be a place for worship, the garden embodies a virtual experience aiming for such world, a landscape of peace characterized by enlightenment and nirvana.’

image © TOREAL / koji fujii

image © TOREAL / koji fujii

image © TOREAL / koji fujii

image © TOREAL / koji fujii

image © TOREAL / koji fujii

image © TOREAL / koji fujii

image © TOREAL / koji fujii

image © TOREAL / koji fujii

image © TOREAL / koji fujii

floor plans (click for larger version) | images © hiroshi nakamura & NAP

section (click for larger version) | images © hiroshi nakamura & NAP
project info:
name: house of the sacred rock
location: kyoto, japan
architect: hiroshi nakamura & NAP
principal use: residence
site area: 303 sqm
total floor area: 175 sqm
completion: 2019.10
contractor: takeda komuten
structural design: timber
photography: TOREAL / koji fujii