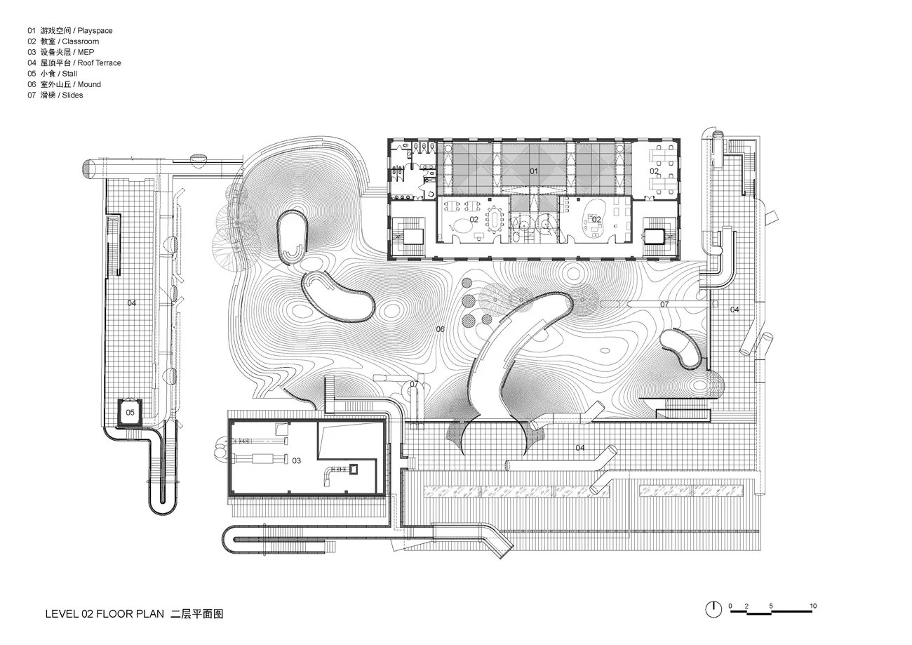
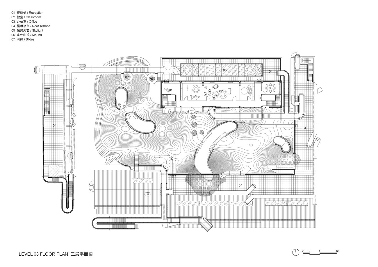
waa (we architech anonymous) has transformed a 1970’s warehouse complex in the north of beijing into‘the playscape’, an experiential community center for children. the building complex is formed by a cluster of existing warehouses encircling a courtyard, while an aerial bridge links the south facility, which is disconnected from the complex by the public street, to the rest of the roof terraces. the project employs three main architectural devices –‘pipe’,‘roof’, and‘mound’– that promote learning while allowing children to dream and develop senses relating to equilibrium (balance) and proprioception (awareness).

all images by tian fangfang, drawings courtesy of waa
waa (we architech anonymous) refurbished the industrial complex for a healthcare provider specializing in observing and supporting children’s development relating to movement for a broad range of age groups.‘the playscape’seeks to revive the idea of neighborhood street play and minimize the use of gadgets and screen time. in order to promote activity-based, experiential learning, the project employs spatial concepts such as an adventure playground, a maze, as well as spaces for children with nooks to explore and understand ergonomics.

three main architectural interventions bring to life the design concept of waa’s‘playscape’community center. the first one, titled‘pipe’, focuses on smaller nooks in the form of connecting bridges and staircases to test body awareness. the second,‘roof’, presents a high point to overview the stage and its possibilities, and offers a choice to children to embrace unorthodox routes. from the terrace, they can travel under the mound through a network of slides that vary in height from 7 meters to 4.3. last, the‘mound’enhances development in senses relating to equilibrium (balance) and freedom of decision making. a series of hills invite kids to explore and take on a variety of inclines, while the spaces under those hills are also offered as additional, covered play area.

the building complex is formed by a cluster of existing warehouses encircling a courtyard, while an aerial bridge connects to the south facility, which is separated by the public street. access also provides a private route to an adjoining kindergarten, and an option to enter the adjacent public park. the cluster offers a series of internal play spaces, including an area with hanging fabrics for 2-4 year olds, a soft space topography for babies, a subterranean interactive environment, and a steep climbing area with a suspended tensile net. all buildings have a looped roof terrace from which parents can easily observe their children while being able to enjoy adult-specific amenities, such as a rooftop bar.

‘children are often passive in decision making scenarios,’explains the beijing-based design team. ‘play is often the only period under their own control. the design focus was to address the missing elements of inner city dwelling, distorting scales, manipulating movement sequences to build a tool for sensory learning. where the iconography of the project becomes about the activity and embracing a degree of risk we hope to nudge children to imagine and feel what they see as the limits to their own adventure.’






project info:
name: the playscape – children’s community center
architect: waa (we architech anonymous)
location: beijing, china















