a house shaped by its garden
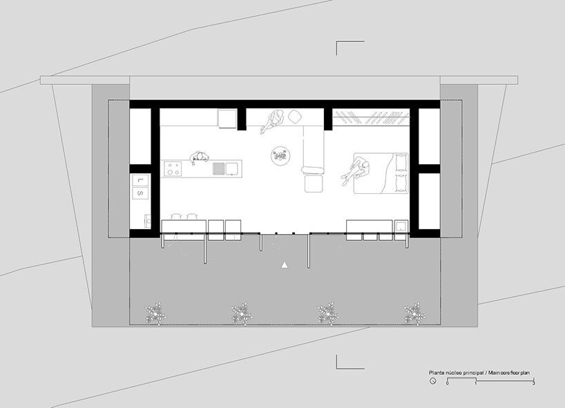
quito-based studio al borde architects completes its garden house as a celebration of its natural context. sited in conocoto, ecuador, the design team seeks to obscure the boundary between nature and the built space. this concept takes shape through its organization and its rammed earth materiality. the programs are scattered across the site, using the garden for circulation, and calling for the occupant to travel outside to access the washroom areas from the living spaces. meanwhile, the shower is located in a greenhouse and is nestled among its plant life. as the team notes:‘there are places where people do not know whether they are garden or house, or a house built by the garden.’

images by JAG studio
the structure of trees and earth
the integration of nature within al borde’s garden house is further echoed through its structure. the ecuador-based design team employs columns which themselves are lechero trees, rooted into the ground and connected overhead to a lightweight enclosure with ties made from vegetable fibers. the rest of the house takes shape with rammed earth walls, overall recalling the iconic memory of the‘primitive hut.’
the washroom itself is realized as a glass enclosure, completely open to its surroundings. with the plot so isolated from its neighbors, the occupant can celebrate the‘ritual’of using the washroom among the trees and wild plant life. waste is organically filtered and composted on site as the house is otherwise disconnected from the area’s sewage system.





project info:
project title: garden house
architecture: al borde
location: conocoto, ecuador
collaborators: iara pezzuti, ippolita barnato
construction management: diego ledesma
structural engineering: patricio cevallos
construction: miguel ramos & josé fabara
photography: JAG studio











