n70: simplified and sustainable
the team at fran silvestre arquitectos unveils its N70 house as the smallest of its so-called NIU series. the overall series of NIU dwellings are conceived as a new housing type which prioritizes improved quality and minimal cost — the architects at the valencia-based studio are continually exploring innovative construction methods to achieve this, resulting in spaces that are sustainable and beautiful.

images by fernando guerra | @fernandogguerra
a compact dwelling by fran silvestre
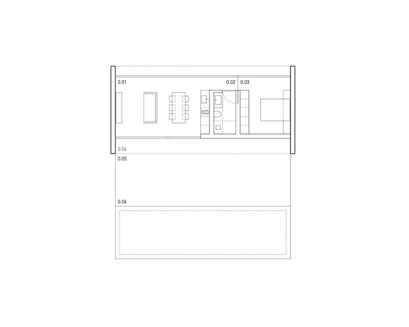
the design team at fran silvestre arquitectos organizes its tiny N70 house along a single level with a straightforward layout. the programs are divided between the bedroom, or night zone, on one end and the social spaces, or day zone, along the other. the wet areas stand in the center divide the two areas.





project info:
project title: N70 house
architecture: fran silvestre arquitectos
design team: fran silvestre, rosa juanes, rubén march, andrea baldo, gino brollo
NIU team: alejandra ugena, francisco moreno, mauro díaz, héctor borrás, francisco lahoz, irene hoyos
location: spain
completion: 2021
photography: fernando guerra | @fernandogguerra
videography: jesús orrico | @jesusorrico





