one of the largest museum dedicated to a single artist
designed by spanish architectural firm estudio herreros, the new munch museum by oslo‘s waterfront opened its doors to the public in october. its design is based on the idea of a tower-shaped museum, measuring 60 meters in height. the exterior is clad in recycled, perforated aluminum panels of varying degrees of translucency, while its distinctively leaning top section marks the building as a highly visible landmark from all sides.

image © ivar kvaal
a leaning structure as a pile of books
the foundation stone for estudio herreros’ new munch museum was laid autumn 2016 in oslo’s bjørvika neighborhood, after a long debate on both design and location. ‘edvard munch is about not accepting conventional rules, about fighting against opposition, about never giving up,’ notes juan herreros, founding partner of the spanish architecture practice. ‘the building is there, it has a powerful presence, and it is part of the city. it says,“okay, here I am. I hold the legacy of the most important artist in norway’s history, and I gaze entranced at oslo and the fjord because it is the city and its collective dreams that have built me.”‘
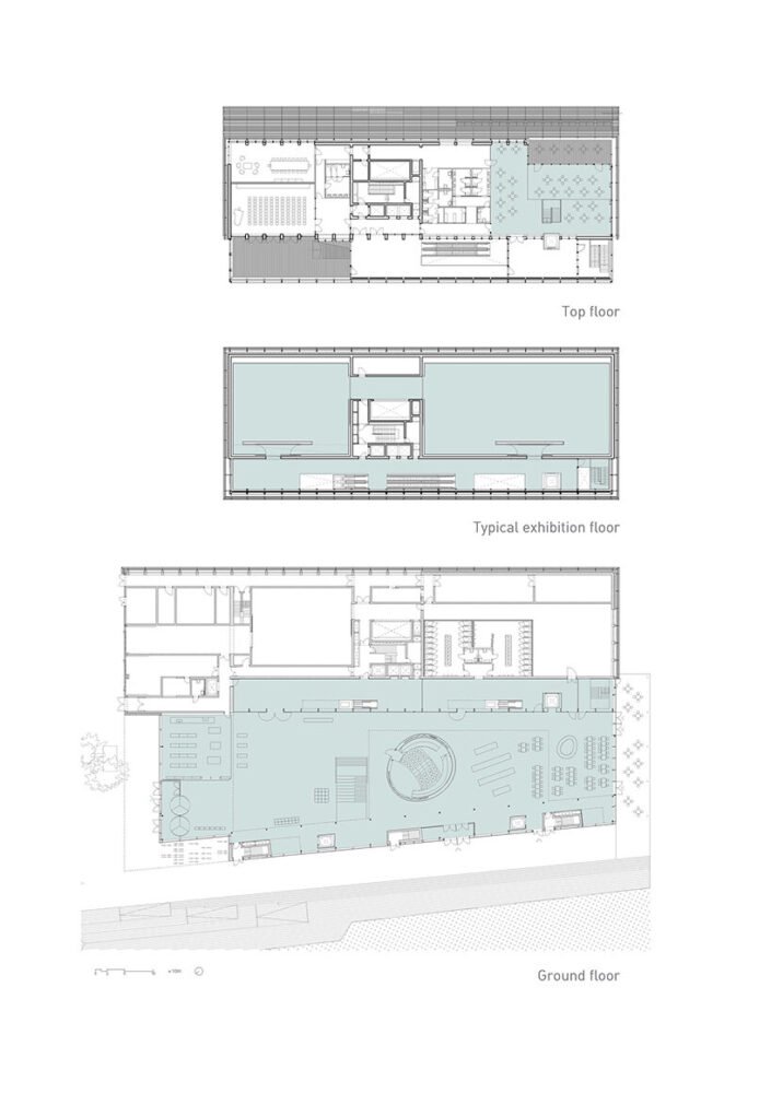
the main functions of the museum are organized vertically along its sixty meters of height, while its distinctively crooked glass section transforms the building into a landmark for the area. the large number of gallery spaces allows for wide variations in ceiling heights and room sizes, enabling optimum spaces to be allocated for both permanent and temporary exhibitions. the museum’s collection consists of more than 28,000 works munch bequeathed to oslo, including his iconic expressionist masterpiece‘the scream’.

detail of the façade
image © ivar kvaal
the tower sits on a three-story podium and is divided into two main zones: one static and one dynamic. the static zone is an enclosed concrete structure, which complies with stringent security, humidity and daylight requirements in order to protect the art within. the dynamic zone, which has an open, transparent façade with views over the city, is where visitors can move between the different exhibition areas.
the project has been planned in accordance with the futurebuilt criteria, where buildings must at least halve their greenhouse gas emissions compared to conventional modern buildings. its compact shape, very high-quality windows and partially natural ventilation allow it to achieve the desired energy savings. the museum is built using low-carbon concrete and recycled steel, and its loadbearing structure has been designed with a technical lifetime of 200 years.
‘the building, its conceptual approach and construction systems, wants to be an expression of the collective engagements of the norwegian society to the environment echoing its present challenges and the desire for innovation that confidently steps forward into a better future,’ adds juan herreros.

interior view of one of the rooms in the new museum
image © adrià goula

images © adrià goula

images © adrià goula

image © adrià goula

image © einar aslaksen
project info:
name: new munch museum
architect: estudio herreros
project responsible: gonzalo rivas
project team: beatriz salinas, carlos canella, andrea molina, paola simone, carlos ramos, iván guerrero, ana torrecilla, alberto sánchez, maría franco, raúl garcía, frank müller, víctor lacima, carmen antón, ramón bermúdez, margarita martínez, luis berríos-negrón, spencer leaf, verónica meléndez, xavier robledo, ricardo robustini, paula vega
consultants:
local study: lpo arkitekter
facades: bollinger + grohmann, arup (preliminary draft)
sustainability: asplan viak
general engineering: multiconsult, hjellnes consult, brekke & strand akustikk
ict: rambøll norge
security: cowi.
surface: 26,300sqm
location: bjørvika, oslo, norway
client: oslo kommune, kultur- og idrettsbygg










