bilgola beach house: responding to its coastal site
seattle-based studio olson kundig architects takes to the sandy dunes outside sydney to create its bilgola beach house. in celebration of its coastal site — its first in australia — the structure is designed with a facade of operable, louvred shutters that open the interior outward to the ocean and distant horizon beyond. designed for a couple who plan to host large family gatherings, the dwelling suits the needs of the clients with its wide open, transformable living area.
approaching the house, visitors pass through palm trees and norfolk pines, then through the two main volumes of the dwelling, before ultimately arriving at the entrance. with this gradual approach the architects highlight the coastal views with a climactic frame, slowly revealed through the built space.

images © rory gardiner | @arorygardiner
the elevated dwelling by olson kundig
olson kundig architects (see more) further responds to the conditions of the site by elevating its bilgola beach house atop an array of concrete piles. this strategy is suited to combat the high winds and flooding which the headland setting may experience. while the house opens broadly outward to views of the sea, the operable shutters can easily seal the space against such harsh weather events. the design team recognizes the unpredictable range of climatic conditions, and creates a house which can transform accordingly.

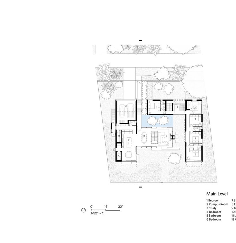
the layout of the breezy beach home
postcard ocean views are integrated into the architecture as soon as visitors arrive at the olson kundig-designed bilgola beach house. the sea can be viewed straight through the glass front entrance, which leads directly into a large open kitchen, dining, and living area, surrounded on three sides with full-height glazing. opposite the coast side of this space is a garden courtyard and pool which can be accessed through a set of sliding glass doors, allowing cool breezes to naturally ventilate the home.
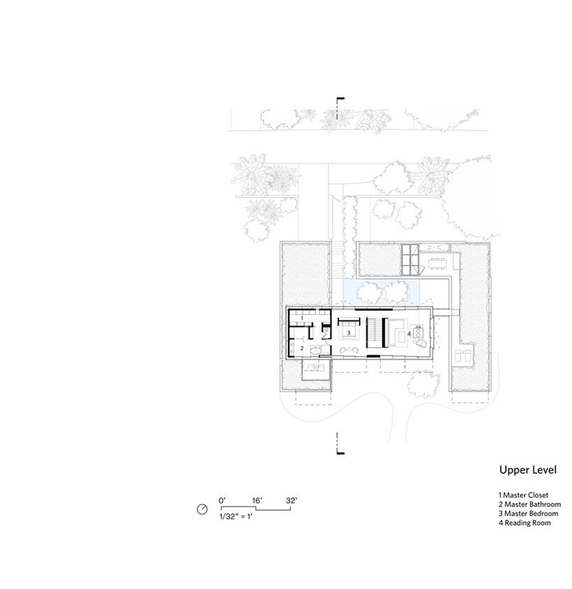
this main level further houses a guest wing of four bedrooms, while the upper level hosts a reading room and master bedroom suite. this space itself opens outward with a large private balcony accessed through the bathroom.

operable shutters fold up to transform the living area

the architects celebrate views of the ocean

the sea can be viewed from the entrance through two walls of full-height glazing

the master suite along the upper level features a private balcony
project info:
project title: bilgola beach house
architecture: olson kundig architects | @olsonkundig
location: sydney, australia
completion: 2018
photography: rory gardiner | @arorygardiner
design principal: tom kundig, FAIA, RIBA
principal: kevin kudo-king, AIA, LEED® AP
project manager and project architect: simon clews
architectural staff: motomi kudo-king, lindsay kunz and martina bendel
interior design: debbie kennedy, LEED® AP ID+C
interior design staff: megan adams, casey hill, maresa patterson
general contractor: bellevarde constructions
landscape architect: CAB consulting
lighting design: niteo lighting
client representative: auric projects
planner: BBF planners
coastal engineer: horton coastal engineering
geotech consultant: JK geotechnics
gizmo design: KB architectural services with phil turner
gizmo fabrication: advanced design innovations, TILT industrial design
civil and structural engineer: partridge engineering
mechanical engineer: RJ air









