long-term housing for refugees in kenya
refugee shelters are being developed in northern kenya as part of an ambitious project by shigeru ban architects and philippe monteil. the design team has partnered with UN-habitat, and the NGO voluntary architects’network to realize four dwelling typologies dubbed‘the turkana houses’for a pilot neighborhood in kalobeyei settlement. these shelters will house refugees who, because of perpetual conflict and civil war, can not return to their homes in south sudan.
these turkana houses separate themselves from a typical refugee shelter as they will provide long-term housing. each of the four typologies are informed by shigeru ban architects’great deal of experience with disaster relief projects, all together with local building techniques using rammed earth and other earth-made materials. see designboom’s previous coverage of the project in 2018 after its announcement here.

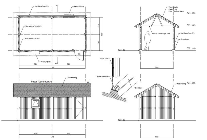
turkana house, type A
image © philippe monteil / VAN
enhancing self-reliance of asylum seekers through architecture
shigeru ban architects (see more here) and philippe monteil design are building their turkana houses in kenya, a country which has hosted refugees and asylum seekers in its kakuma refugee camp since 1992. since then, in 2015, the kalobeyei settlement was established on 1,500 hectares of land to improve the opportunities for self-reliance. the settlement was created with the support of UNHCR, who notes that‘as of december 31st 2021, kenya hosts over 540,000 refugees and asylum-seekers.’
UN-habitat has worked to develop the settlement’s master plan to accommodate 60,000 people, a significant fraction of the total refugee population in the country. one of the main conditions as part of the development was that investments would be shared between the refugees and the local community equally.

turkana house, type A
image © philippe monteil / VAN
the four shelter types by shigeru ban
shigeru ban designed the kenya refugee shelters following extensive research into the region’s vernacular architecture and a thorough survey of the refugee population. both refugees and community members of turkana county were hired to build their own houses, meaning that they will be able to maintain the structures going forward.
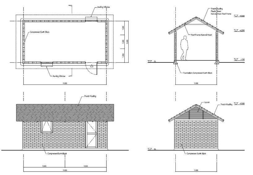
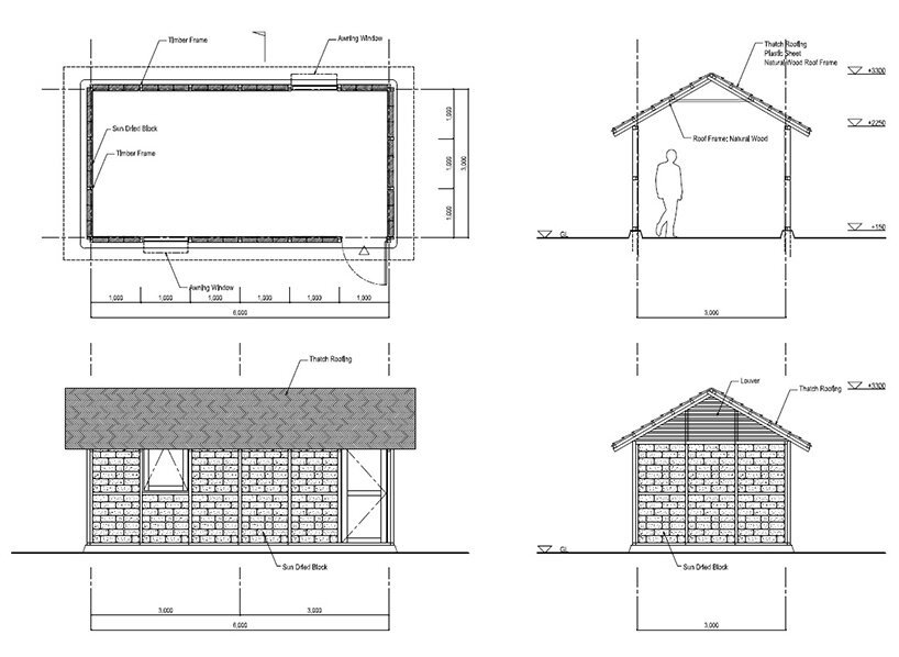
the turkana houses include four typologies. the paper tube house, type A, sees structure and cladding of paper tubes woven together. the next, type B, sees a timber frame filled-in with burnt bricks. type C is built of rammed-earth blocks, a building technique common throughout africa. type D is defined as a paper tube structure clad with branches, best for nomadic houses. the design of each shelter type is informed by its construction process, the tools available, local construction skills, and climate conditions.

turkana house, type B
image © philippe monteil / VAN

turkana house, type C
image © philippe monteil / VAN

turkana house, type C
image © philippe monteil / VAN

turkana house, type D
image © philippe monteil / VAN

turkana house, type D2
image © philippe monteil / VAN

turkana house, type D (under construction)
image © philippe monteil / VAN


