The Restaurant of Metasequoia Grove by GOA
Architecture firm GOA has completed‘The Restaurant of Metasequoia Grove’, a single-story building topped by a cluster of pyramidal frustum modules in different sizes. Located in China‘s Shanwan village, the project is part of the first developed phase in the governmental rural revitalization program‘Wujiang · Beautiful Village’, which aims to promote local agriculture, culture, and tourism as significant drives. The building is designed to function both as a restaurant, and as multi-functional banquet hall to hold various public events. Its architecture takes its cues from the forms of metasequoia trees that are quietly standing by an enormous expanse of water in the south side of the site.
‘Instead of being an architecture, The Restaurant of Metasequoia Grove is more a landscape that immerses its natural context and eventually becomes a part of nature,’ explains GOA.‘It delivers a joyful moment by the water and a peaceful experience of nature where architecture enables new ways of seeing the landscape.’

image: view from the lake, 2021, all © IN BETWEEN / GOA unless stated otherwise | header image: night view from northern fields
a welcoming public living room for the whole community
GOA developed the project as a welcoming public living room for the whole community of the Chinese village. The studio translated the forms of the nearby metasequoia trees into a purely geometric architectural language that serves as a featuring icon and a modular inspiration for the design. The pyramidal frustum modules that top the building appear in three different sizes that mix and cluster together, forming a continuous canopy structure that traces an artificial forest profile within nature.
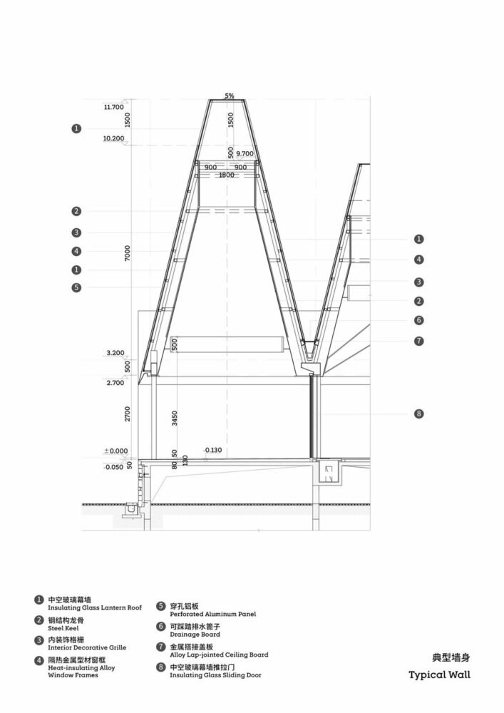
The canopy’s overall height is under 12 meters, while each pyramidal frustum module is topped by a skylight that lets natural light within the interior. The roof system is composed of three layers: first, customized perforated aluminum panels as the outer layer, textures as the layering crowns of metasequoia trees, glass as the middle layer, introducing greater luminosity, and grilled wood panels that cover the inner layer.

aerial view
‘The project offers visitors a new perspective to experience the landscape,’ notes GOA. The eaves of the canopy are uniformly lowered to 2.7m, framing a horizontal view of the surrounding wetland scenery. To emphasize the lightness of the canopy, the load-bearing columns of the restaurant are minimized to ten, arranged around the interior edges of the interior space. Each low-bearing column is grouped by a cluster of 3 slender steel columns, individually with a diameter of 10cm. Only 11 steel columns with a diameter of 15cm are set along the edge of the exterior terrace under the eaves. The great visual openness of the space is enhanced by customized single-bay floor-to-ceiling windows with a width of over 2 meters and narrow frames.
‘Although it is not yet officially open, visitors have come in flocks,’says the architecture firm.‘By softly blending in the waterside landscape carrying a delicate rustic texture and thus enhancing the experience of the magnificent natural scenery with architecture, the project truly realizes its design vision to construct a new landscape for the existing village.’

entrance view at night

waterside terrace

ceiling structures and details

space under the eaves

light and shadow inside the lantern roof
project info:
name: restaurant of metasequoia grove in shanwan village
architect: GOA (group of architects)
location: Wujiang District, Suzhou, Jiangsu Province, China
GFA: 416 sqm
photographer: IN BETWEEN, GOA







