house of remembrance: recalling childhood with architecture
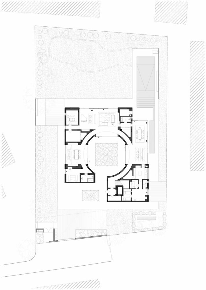
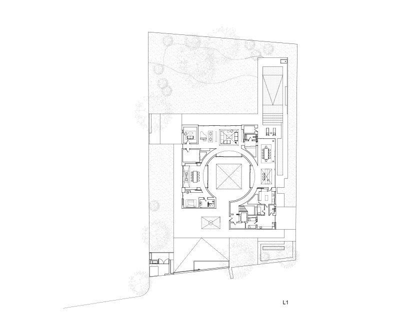
Neri&Hu completes this House of Remembrance as a contemporary interpretation of the traditional Chinese siheyuan courtyard house in Singapore. Surrounding a central open-air courtyard, the dwelling accommodating extended family units, so that many generations might live together under one roof.
This House of Remembrance is designed for three adult siblings who have outgrown their childhood home — the pre-existing structure on site — and called for a new, larger property that mimics the pitched-roof of the original.

images © Fabian Ong | @fabian_ong_ar
the courtyard house with gardens on all sides
With the design of its House of Remembrance, Neri&Hu (see more here) focus on communal living and collective memory, exploring how these concepts can be expressed spatially through architecture. All communal spaces in the new house are organized around the central garden, a memorial for the family’s matriarch. With this organization, along with the full height walls of glazing, the ground level spaces take on an extroverted character.
All spaces on this ground level are connected to both the central courtyard as well as the gardens surrounding the house. Neri&Hu maximizes this visual transparency from the communal areas so that the occupants are cocooned by vegetation on all sides. The large glass doors slide open so that the interiors become a continuation of the gardens, opening up the house to natural cross ventilation.

the private spaces tucked into the gable roof
Along the upper level of its House of Remembrance, Neri&Hu uses the pitched roof to sculpt the interiors. The roof is not only a sheltering element, but a tool to demarcate the public and private areas. Unlike the outward-looking lower level, the upper level is introverted, housed within the steep gables. When viewed from the street, the dwelling appears as a single-story bungalow. Views outward from the bedrooms are offered through skylights and large glass walls, connecting these areas to the central garden below.
Through a sectional interplay, the design team introduces three double-height areas which link the communal spaces and the corridors above. These moments create vertical visual connections to allow the occupant to glance into the public realm from the private.




project info:
Project Title: House of Remembrance
Architecture: Neri&Hu | @neriandhu
Location: Singapore
Completion: 2021
Photography: Fabian Ong | @fabian_ong_ar
Partners-in-charge: Lyndon Neri, Rossana Hu
Senior Associate-in-charge: Christine Chang
Design team: Sela Lim, Bella Lin, Kevin Chim, Alexander Goh, Haiou Xin, July Huang
Design Architect: Neri&Hu Design and Research Office
Local Architect: K2LD
Interior Design: Neri&Hu Design and Research Office
Consultants:
LDI: K2LD
Structural Engineering: JS Tan Consultants Pte Ltd
MEP Engineering: Elead Associates Pte Ltd
Lighting: P5 Pte Ltd & Light Basic Studio Pte Ltd
Landscape: Nyee Phoe Flower Garden Pte Ltd
Contractors:
General Contractor: Space Scope Pte Ltd
Steel Construction: Luen Soon Iron Works
Doors and windows: Lital Materials & Contracts Engineers Pte Ltd













