a Modern building block on the water
Bjarke Ingels Group (BIG) and Barcode Architects completes an iconic new landmark for Amsterdam with the Sluishuis housing project. The project stands at the confluence between the water, the rural landscape, and the city, and stands within the growing residential neighborhood of IJburg. Developed and built by VORM, BESIX Real Estate Development and BESIX Nederland, Sluishuis is a contemporary translation of the typical Amsterdam building block that draws from its coastal site.
Taking shape with a unique geometry, The building lifts from one corner to invite the water intoward its stepping courtyard. The structures appears to float above the surface of the water while welcoming maritime visitors to IJburg with a friendly set of green terraces along the shore. See designboom’s previous coverage of the project here.

images © Ossip van Duivenbode | @ossipvanduivenbode
sluishuis: homes with rich diversity
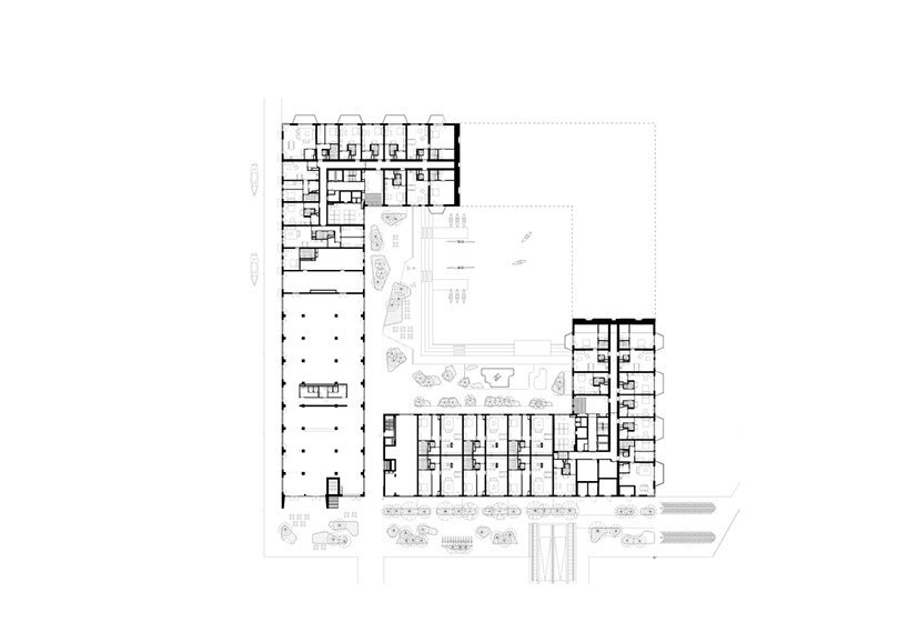
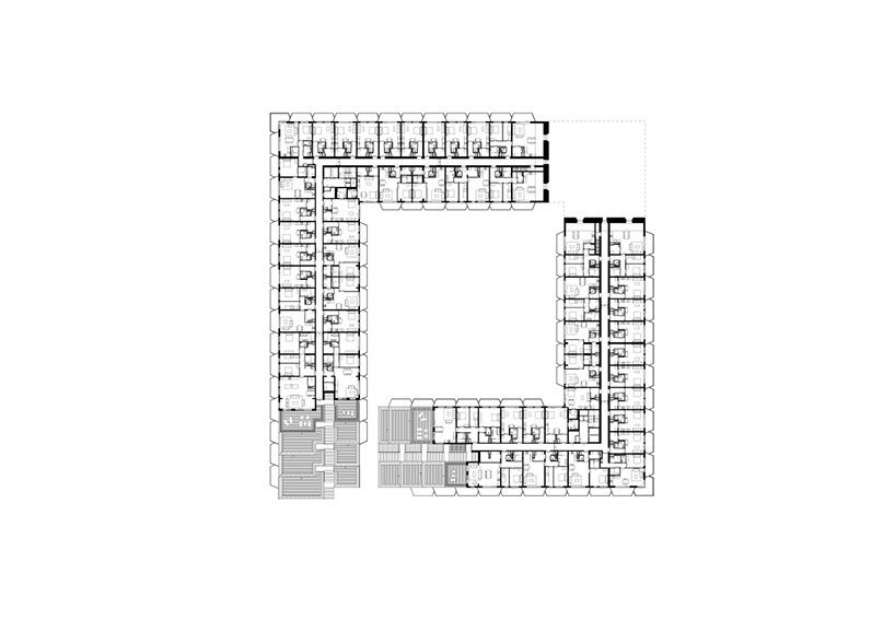
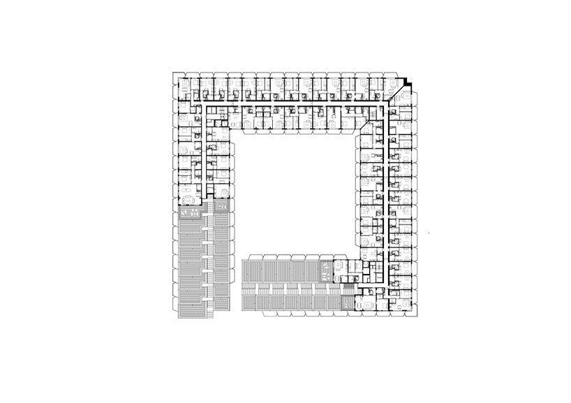
With the newly unveiled Sluishuis housing complex, Bjarke Ingels Group (see here) and Barcode Architects (see here) introduce 442 apartments to Amsterdam. The units alternate between rental and owner-occupied homes suited for a mix of income levels and age ranges. The project is organized around a central courtyard, from which all homes can be accessed. Once inside, each dwelling opens outward with sweeping views is flooded with natural sunlight, a condition resulting from the building’s its‘double-cut’volume.
The rich diversity of housing typologies ranges from compact urban studios and‘water sports’apartments. Duplex penthouses along the top two levels are designed with a relationship with both the courtyard below and the IJmeer beyond. Along the stepping section of the building,‘premium flats’lead onto sunny wooden roof terraces which gaze outward over the neighborhood.
The apartments at the bottom of the cantilever offer sweeping views over the IJ and directly on the water. These unique units hang over the water, opening up with large windows which cut through the sloping façade. From here, occupants can view the boats sailing directly below.

the Public plinth and jetty promenade
The plinth will accommodate a varied program including a sailing school, water sports center and restaurant
with a spacious terrace in the sun. Residents and visitors enter through the courtyard. The walkway to the roof of Sluishuis offers visitors and residents a spectacular view of the water and the neighborhood. A jetty promenade with thirty-four houseboats surround the building. The jetty landscape stimulates contact with the water with various mooring places, sitting decks, and floating gardens.

a natural materiality
Through its material palette, the Sluishuis housing complex seeks both contrast and connection with its surroundings. The design team opted for natural materials to ensure that the appearance of the building will remain rich and natural over time. The facade of abstract, untreated aluminum, reflects the water and gives the volume a different appearance at any time of day. In contrast, the stepped roof terraces and the jetty promenade are made of wood, which gives a tactile appearance.

green and sustainable
Sluishuis is one of the most sustainable buildings recently completed. It has an energy performance coefficient (EPC) of 0.00. The building’s heating requirements have been minimized by combining excellent insulation techniques, triple glazing and heat recovery from the ventilation systems and showers. The building is heated by a combination of energy-efficient district heating and heat pumps for hot water and cooling.
The building’s energy consumption for heating, heat pumps, ventilation and LED lighting is fully provided by approximately 2,200 square meters of solar panels. In addition to these technical aspects, a great deal of attention was paid to the greenery and water collection in the development of Sluishuis. At the front, sides and in the courtyard are gardens with local plant species. The greenery runs across the roof terraces upwards in built-in planters. On the roof, this creates a pleasant green atmosphere.
With strong architecture, new housing typologies, high-quality outdoor spaces and a breath-taking view over the IJmeer, Sluishuis forms a welcoming entrance to Amsterdam IJburg.


project info:
project title: Sluishuis
architecture: Bjarke Ingels Group (BIG), Barcode Architects | @barcode_architects
location: IJburg, Amsterdam, Netherlands
photography: © Ossip van Duivenbode | @ossipvanduivenbode








