an oasis in japan’s nara city
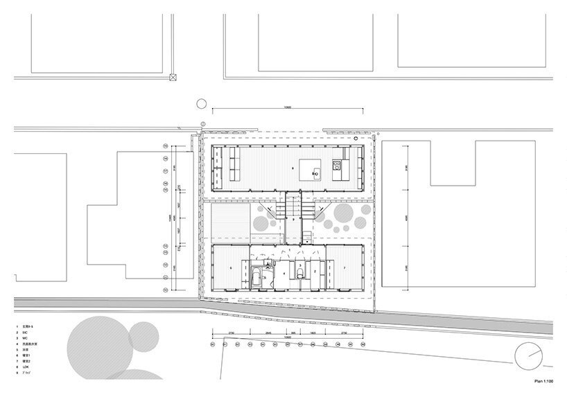
The architects at KKAA YTAA complete the House in Gakuenmae, or‘House in Front of a School’in Japan, whose layout reflects the unique lifestyle of its occupants. The client, a young couple who each work from home, sought a dwelling which is at once compact, suitable for two remote workers, and infused with nature. Located in the dense urban context of Nara City, capital of Japan‘s Nara Prefecture, the architecture is divided into two volumes which look inwardly onto a central courtyard. This condition lends a boundary which shields the living space from its surroundings while inviting sunlight, breezes, and gardens.

images © Norihito Yamauchi
a house on stilts by kkaa ytaa
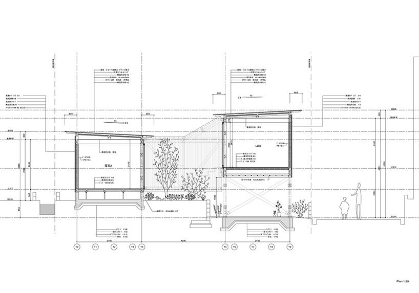
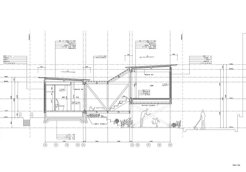
Japan-based KKAA YTAA (see here) elevates one block of its‘House in Gakuenmae’atop a light timber structure. This is informed by the conditions of its sloping plot, which is subjected to draining water. Elevating the block one meter off the ground serves to reduce construction cost while preventing moisture damage caused by the groundwater. This height difference further allows for light and wind can escape from beneath the floating floor, while glimpses of the secret garden are shared with the neighborhood.

the design of the house in gakuenmae
The team at KKAA YTAA writes:‘Two bridges will be installed in the margin after construction. By simply enclosing the outer circumference, we aimed to be both external and internal. By opening and closing the walls, these two buildings are connected as various places such as an external space where the sky and wind can escape, an internal space as a passageway, and a semi-outdoor space like a veranda that connects with nature and the deck. In daily life, the boundary with the margin will be blurred, and eventually the family’s life will begin to connect with the city through this margin.
‘I hope that by inserting a margin between these two buildings, life and the city will be indirectly connected, and this will be an opportunity to increase the open landscape in this quiet residential area.’




project info:
project title: House in Gakuenmae (House in Front of a School)
architecture: KKAA YTAA | @kkaa_ytaa
location: Nara City, Nara Prefecture, Japan
lead architects: Kei Kitano YTAA / Takanobu Yagi
structural design: Ukyo Architectural Structure Office / Ukyo Hirota
landscaping: Botanical Office COCA-Z / Tatsuya Furuka
construction: Ikemasa
structure: Traditional wooden construction method
site area: 160.83m2
building area: 79.22m2
total floor area: 91.02m2
completion: October 2020
photography: © Norihito Yamauchi Photo Office / Norihito Yamauchi





