farm 8: a verdant artist studio in new dehli
In the bustling city of New Delhi, where urban landscapes dominate the horizon, lies Studio Array’s serene oasis known as Farm 8. Nestled in the verdant embrace of Arjanghar, this artist residency offers a haven for creative minds seeking solace and inspiration. Initially conceived as a studio space for its visionary clients, artist collective founders Ranbir and Rashmi Kaleka, the structure ultimately grew to encompass a sustainable farm and creative hub. Shaped as a cluster of sloping volumes and wrapped in a facade of woven bamboo screens, Farm 8 exemplifies a dialogue between old and new, nature and architecture.

images © Edmund Sumner | @edmundsumner
Honoring the Past, Embracing the Future
With a desire to preserve the heritage of the plot, the architects at Studio Array mapped the Farm 8 artist residency along the existing foundations and columns on site. This decision drew inspiration from the sustainable, permaculturalist attitudes of the clients, as the team sought to minimize waste by creatively incorporating the old infrastructure into the design. The result is a blend of materials, where lightweight steel, glass, bamboo, and wooden drywall construction intertwine with the pre-existing structures. This thoughtful approach not only adds character to the residency but also reflects the sustainable ethos that drives the artist residency Farm 8.

Bridging Nature and Architecture
Studio Array’s primary focus was to create a fluid connection between the indoors and the lush nature surrounding Farm 8. Like sitting under the shade of a tree, semi-open spaces were carefully crafted within the existing column grid, offering a sense of protection without enclosing the occupants. The lightweight steel structure with its uniquely sloping insulated roofs further amplifies this transition. The modularity of these roofs creates an interplay of spatial scales, allowing the built form to blend effortlessly with the green landscape. By embracing an innovative roof design, the team elevates the residency and frames glimpses of the verdant surroundings.

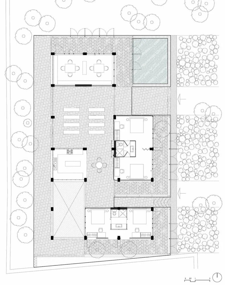
the modular design by studio array
The architects of Studio Array took it upon themselves to blur the boundaries between different elements of the residency, such as the indoor and outdoor spaces and the public and private realms. Organically planned modular blocks give rise to diverse volumes and scales, amplifying the functional narrative of the space. Double-height, semi-open verandas were integrated as extensions to the private spaces. These verandas not only create volumetric interest but also facilitate a smooth transition between the personal and gathering spaces.
The architecture takes shape with natural materials selected to age gracefully over time. Hand-woven bamboo screens, drawing inspiration from the farm’s environment, elegantly privatize the living quarters while inviting nature to become a part of the design evolution. The brick flooring, laid without mortar in the semi-open pavilions, is intended to age and desaturate, allowing grass and weeds to naturally integrate with the built space. Within the private areas, lime, wax-stained dry walls, and hand-casted and polished cement flooring add a touch of warmth and softness, bridging the gap between indoors and outdoors.

hand-woven bamboo screens evoke the rural context

semi-open spaces offer a sense of protection without enclosing the occupants

brick flooring, laid without mortar in the semi-open pavilions, is intended to age and desaturate

soft light glows through the bamboo facades during the evening
project info:
project title: Artist Residency, Farm 8
architecture: Studio Array | @studioarray
location: Arjanghar, New Delhi, India
completion: 2023
photography: © Edmund Sumner | @edmundsumner
principal architect: Rachit Srivastava | @rachitksrivastava
junior architect: Jainam Kothari
structure: Jairam Prasad, Jai Shree construction
steel fabrication: Suresh Kumar, S.K Metal Industries
civil, brick work, plumbing, bamboo: Manmohan Singh, Bhumi Construction
electrical: Dinesh Kumar
 
                             
                         
                                    







