an underground mountain house
Design studio Studeny Architekti has recently completed a contemporary house in the scenic village of Pernek, Slovakia. Embedded into the earth a vast plot of land surrounded by the pristine beauty of the Small Carpathians, the Family House in Pernek embodies the studio’s vision of a simple dwelling existing in dialogue with its natural surroundings.
The primary objective of this project was to create a residence that makes use of the contours of the land but also harmonizes with the environment. By strategically placing the concrete house beneath a slope below the road, the architects ensured that the residents would have unobstructed views of the opposite forest, allowing them to connect with nature effortlessly. This underground placement also freed up the flat portion of the plot, which was reserved for a wide, open front yard.

images © Alex Shoots Buildings | @alex.shoots.buildings
the concrete shell structure by studeny architekti
Studeny Architekti constructs its Family House in Pernek with a unique design element — a monolithic concrete shell without internal supports. This choice not only adds structural integrity to the building but also contributes to its aesthetic appeal. Inside the house, the concrete shell remains exposed, creating a distinct visual feature. However, the facade opening out toward the south is defined by its large glass wall, opening the interior spaces broadly outward to gaze onto the wooded mountains beyond.

inside the family house in pernek
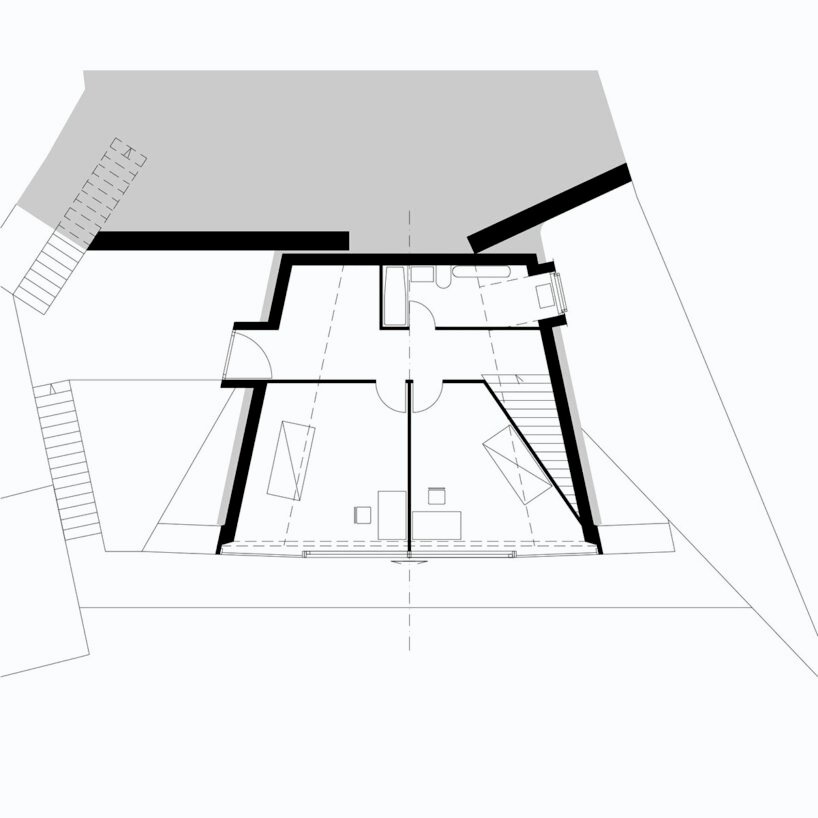
Studeny Architekti organizes the floor plan of its Family House in Pernek in the shape of an isosceles trapezoid, mirroring its longitudinal profile. This unique layout results in an interior space that feels open and free-flowing. The house consists of two floors interconnected by a stylish staircase.
The ground floor, in direct contact with the garden, encompasses a multifunctional area housing the living room, a work corner, the parents’bedroom, a kitchen with a dining room, and the technical facilities of the house. On the upper floor, two children’s bedrooms, a bathroom, and an entrance area can be found. All the living spaces benefit from ample natural light and are oriented towards the garden and the forest through expansive windows.

the house is built as a concrete shell with no internal supports

full height glazing opens onto the forest beyond through a trapezoidal frame

sliding glass doors fills the underground home with natural breezes and sunlight

despite its underground situation, the home maintains a light atmosphere
project info:
project title: Family House in Pernek
architecture: Studeny Architekti
location: Pernek, Slovakia
lead architect: Jan Studeny
completion: 2022
photography: © Alex Shoots Buildings | @alex.shoots.buildings








