常各庄村农舍改造


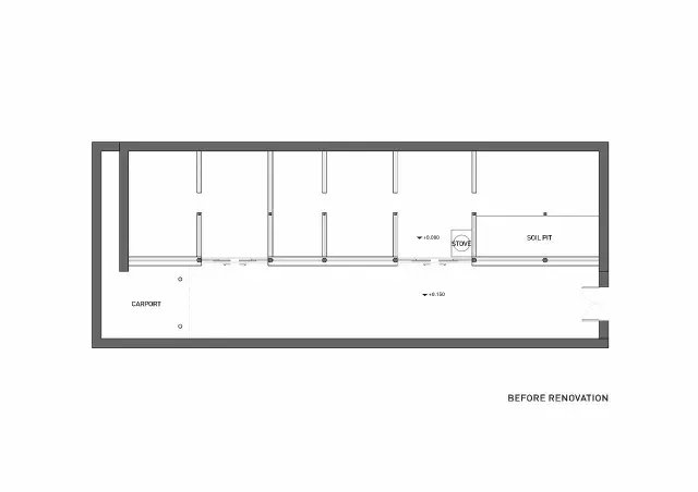
项目位于北京西南郊区的大兴县庞各庄镇常各庄村,改造的对象是一栋有着超越 40 年前史的寒酸农舍。原有的建筑是京郊农村中常见的一层砖木结构。屋内没有上下水,摆设简陋,光线暗淡,墙壁被几十年做饭的焰火熏的漆黑一片。南向的宅院因为将农用三轮停放在了最里边,彻底变成了一个车道。
最为糟糕的是建筑的室内地坪比外边的宅院低了近 20 公分,大雨时会发生院中的雨水倒灌进屋的情况,而这也极大的要挟到了结构的安全。与此形成鲜明对比的则是项目地点的地区严重缺水,村里几乎每天都会停水,而且还总是发生在用水顶峰的晚上,给住户的生活带来了极大的不便。

改造规划是北京卫视的一档真人秀节目,因此制作本钱和施工周期都受到了极大的限制。可运用的经费约 30 万元人民币不只涵盖了从场地及建筑改造,室内硬装,直至家具灯具和配饰软装的一切费用,还为住户置办了一些简单的家用电器。因为播出日期已定,规划加上施工的时刻也被限定在了 45 天。

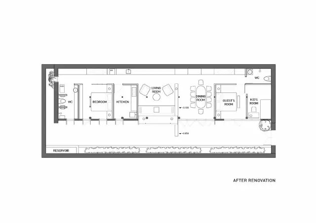
针对水的问题,咱们将排水与节水一并考虑。一方面,咱们提高了室内地上,调整了室外地上并从头铺设了排水沟。另一方面,咱们在宅院的端头修建了蓄水池,将宅院两侧房顶的雨水搜集起来循环运用。这不只是达到了节水的目的,同时也极大的减少了强降雨时院中的短时汇水量,使得院中的雨水能够及时排净。在晚间停水时,搜集的雨水能够做为冲厕用水的弥补水源。

在功用布局上,经过与住户的细心沟通,在充分的了解了住户生活习惯的基础上,咱们对原有的布局做出了很大的调整。

首要,咱们将本来停放在宅院端头的农用三轮车移至大门外停放,使得宅院能够被从头加以运用。沿墙的绿化为室内空间创造出了可视的景象。因为当地有不能在北墙开窗的风俗,咱们将一切的收纳功用都会集到了北墙一侧,一切的居住功用都安排在了南边采光更为足够的一侧。


鉴于房子东西细长的特点,中心的部分安排为公共的敞开空间,老一辈的卧室和客人的卧室这些较为私密的空间则被分置于东西两侧,防止相互之间的搅扰。因为地上高度的提高,梁下的净空高度只剩下不到 2.1 米,加上原有的简易的吊顶,十分矮小压抑。咱们将原有的吊顶悉数撤除,露出了木结构及秸秆铺装的房顶肌理。在做了简单的整理及维护后,尽量保持了它上面的岁月痕迹。


别的咱们有意将南侧的维护结构向外推出了约 50 公分,将承重用的木柱维护在了室内免受室外风雨的侵袭,同时木结构柱也得以独自暴露在室内空间中成为了一种自然的装饰。


在场地勘测的过程中,咱们发现现有房子同西侧邻居家院墙之间有一道宽约 80 公分的细长走道。于是咱们在室内走廊尽端的西墙上开了一条景窗,窗外栽培的绿竹成了细长走道的对景,摇曳的竹影也进一步将室内空间同自然环境联系在了一起。


在家具用品的选择上咱们尽量是因地制宜,保留下的水缸成为了茶几和伞筒,寒酸的木条凳从头打磨后摆在床前放置衣物,原先已然无法运用的花格门则成为了主卧室里能够攀扶的屏风。


△改造前平面图


△改造后平面图
文 / 网络
正文完
更多资讯,敬请关注「走访建筑」微信公众号😘