▼项目概览,Overall view ©TAL

金威啤酒厂位于深圳罗湖区,这里曾作为深圳经济特区最早发展成熟的片区闻名于世。金威啤酒是深圳人的共同记忆,它陪伴着来自五湖四海的深圳第一批建设者,在这个中国改革开放最前沿城市挥洒青春,追逐梦想。随着深圳逐步实现从“制造”到“智造”的产业升级和发展,大刀阔斧的城市更新下,金威啤酒厂大部分被拆除,仅存占地约1.16万平方米的工业遗存成为深圳城市发展的重要印迹。这里封存着深圳曾经的奋斗、辉煌以及敢为天下先的企业家精神。
Kingway Brewery is located in Luohu, the downtown district of Shenzhen Special Economic Zone, renowned for its early development. Kingway Beer has been the collective memory of Shenzheners, especially among the pioneers and migrants from all over China to pursue their dreams in this frontier city of China’s reform and opening-up. As Shenzhen proceeds with its radical urban development and industrial upgrade, shifting from traditional manufacturing to a smart economy, a substantial part of Kingway Brewery’s standing structures was demolished, leaving a rectilinear site of about 11,600 square meters vectoring north to south, marking the city’s industrial heritage, urban development and memories of past endeavors, glories and entrepreneurial pioneering spirit.
▼西侧鸟瞰图,West aerial view©TAL

▼工业遗存改造前,Industrial heritage before renovation©TAL

▼区位总图,Site plan© URBANUS

都市实践的设计践行“空间即展览”的理念,从场所价值的挖掘和转化入手,通过灵活的空间介入,创造性使用工业设备遗存,跳脱日常的空间体验,让啤酒厂最终成为整合公共文化生活的城市装置与构建文化生产的舞台。
Following the notion “Space as Exhibition”, URBANUS started with the rediscovery and transformation of the spatial features of the site and renovated the remaining industrial structures and facilities with flexible and creative use of spatial interventions and integrations, leading to an out-of-the-ordinary spatial experience. It has effectively transformed Kingway Brewery into a public cultural platform of new urban life.
▼从工厂到实验厂,构建文化生产的舞台,From factory to laboratory – staging for cultural production© URBANUS

啤酒厂拥有独特的工业建筑空间体验,然而其零散的厂房遗存在场地中无法形成完整的空间序列。都市实践采用整合、插接、介入的改造策略,将场地与西侧路面1.65米,东侧约3米的高差形成的底座转化为空间叙事的基座统合原本散落的体量;以整体的力量与周围大尺度的新城市环境取得平衡。
The industrial architecture of Kingway Brewery provides a unique spatial experience,yet its remaining structures are scattered and unable to form a coherent spatial sequence. URBANUS applies the renovation strategies of integrating, plugging in, and intervening in the existing structures. The plinth which measured 1.65 meters above the street on the westbound and 3 meters on the east is utilized as a base by scooping out volumes, coalescing the originally scattered volumes to achieve a balance with its large-scale urban surroundings.
▼基地范围示意,Site area©URBANUS

▼南侧鸟瞰图,South aerial view©TAL

“基座”重新组织交通成为文化空间及展示工业建筑的舞台。基座顶部为室外展区串联各建筑,内部结合现状地下空间开挖一系列下沉庭院、通道与活动空间,创造出一条空间叙事主线。场地东侧的封闭立面打开数个空间形态不一的出入口, 266米长的街道被激活。
The plinth becomes a unified exhibition platform of industrial architectures, with exterior exhibition spaces dotted theme gardens and an interior of excavated courtyards, pass-ways and recreation areas, creating a lineage of spatial narrative. The closed facade on the east side of the plinth has several entrances with various spatial orientations and characteristics. As result, a 266-meter-long street comes to life.
▼局部鸟瞰,Partial aerial view©TAL

▼零散的厂房遗存,Fragmented industrial remains in 2019© URBANUS

▼基地分析及策略,site analysis and strategies© URBANUS

▼改造后的街景,Street view after renovation© 胡康榆(直角建筑摄影)

©TAL

▼街景局部,Partial view© 胡康榆(直角建筑摄影)

改造后的啤酒厂工业遗存新空间自南端以城市广场为叙事之开篇,经过A、B、C、D系列建筑及装置的改造或加建,至北端再次以城市广场作为结尾。A座瞭望塔作为从南广场进入工遗场地的标志性建筑物,拥有极佳的观景视野,是对被拆除的水塔的精神重塑。
The narrative of the new Kingway Brewery begins with the city square on the south end, moving past buildings A, B, C, D, and ends with another public square at the northern end. The observation tower, Building A, is a Mnemosyne landmark at the south entrance. It possesses an excellent vista from a distance and embodies the legacy of a demolished water tower on the southern square.
▼改造策略,Renovation strategies© URBANUS

▼西立面局部,Partial west elevation© 胡康榆(直角建筑摄影)

©TAL

▼东昌路沿街立面局部,Partial elevation on Dongchang Road© 胡康榆(直角建筑摄影)

©TAL

▼南侧入口,South entrance© 胡康榆(直角建筑摄影)

▼下沉庭院序列入口,Entrance of sunken courtyards©TAL

▼观景塔室内,Interior of vista tower©TAL© 胡康榆(直角建筑摄影)



▼观景塔楼梯,Stairs in the vista tower© 胡康榆(直角建筑摄影)

▼观景塔窗景,View from vista tower© 胡康榆(直角建筑摄影)


凿开B座污水站、C座曝气池建筑物原密闭的水池空间,削去表面瓷砖,裸露高耸的混凝土结构下方,红色手工砖似火焰蔓延,覆盖台阶与地面。在B座顶部加建300平方米的钢结构盒子展厅,其泡沫铝板外饰面的金属质感与主体混凝土的厚重完美融合。在C座曝气池顶部,金属铸铝杆件的拼接加以迷幻的灯光造就出一个金色构筑物,似啤酒泡泡在悦动。
The renovation also uncaps the sealed space of the wastewater pool of Building B and the aeration tank of Building C, peeling off the spotted tiles on the blunt concrete, and exposing the perpetual sphere of the industrial relic. The floor and stairs are covered with handcrafted flame-colored bricks. A 300-square-meter metal exhibition hall was constructed on top of Building B. The porous texture of foamed aluminum adds a harmonious finishing touch with the dominance of concrete. On the top of the aeration tank of Building C, the casted aluminum structure with the shimmering lighting is reminiscent of the rising golden bubbles of a beer.
▼B栋南立面,South elevation of B tower© 胡康榆(直角建筑摄影)

▼B栋内部空间,Interior of B tower©TAL© 胡康榆(直角建筑摄影)


© UABB, 胡康榆(直角建筑摄影)

挖开B、C座中间埋在地下的圆形沉淀池,清理覆土,现出直径18米的混凝土水堡,改造为被地面廊道与空中钢桥环绕的景观花园,人们游走其间;在厚重裸露的池壁上开孔,窥探中心花园秘境,触摸感受工业遗存的空间魅力。
The excavation of a sedimentation tank between Building B and C exposed its 18-meter-diameter concrete shell, which has been transformed into a scenic garden with both ground and aerial walkways that allow visitors to take a stroll in the garden, peek through the heavy holes drilled into the concrete walls, discover the secret withheld by the garden and experience the spatial magic of an industrial relic.
▼空中连桥,Aerial walkway©TAL

© 胡康榆(直角建筑摄影)

© UABB, 胡康榆(直角建筑摄影)

©TAL


▼原沉淀池改造后,Sedimentation tank after renovation© 胡康榆(直角建筑摄影)



©TAL

© 胡康榆(直角建筑摄影)

▼C栋下沉广场,Sunken courtyard of C tower©TAL


▼“在地铸造”展览装置,Installation “Casting On Site”©TAL

© 胡康榆(直角建筑摄影)

▼“在地铸造”展览装置内部,Inside “Casting On Site”© 胡康榆(直角建筑摄影)

© TAL

▼C栋顶部连桥,Aerial walkway of C tower© 胡康榆(直角建筑摄影)

D栋是最具标志性的工业遗存场景,屋顶矗立33个白色筒仓,穿过楼板进入室内现身为巨大的不锈钢倒椎体,悬挂在天花板上,下方是密集有序的管道,我们有选择性地结合展览叙事予以保留或改造。D1改造为多功能厅,同时在屋顶加建两层展厅。D2/D3部分保留原有罐体设备管道,生产车间变身为众声喧哗的啤酒馆。
Building D is the most symbolic industrial structure on site, with 33 white stainless steel fermentation tanks on the roof, protruding into the building like inversed cones hanging from the ceiling. Below are densely organized pike networks. With the renovation, D1 is transformed into a multi-functional auditorium. A two-story exhibition hall is added to the roof. Part of the tanks and pipelines is preserved in D2/D3 and the former production site is turned into a hustling bar.
▼D1栋南立面,South elevation of D1 tower© 胡康榆(直角建筑摄影)

▼D1栋立面局部,Partial elevation of D1 tower©TAL

▼多功能厅,Multifunctional hall©TAL

▼D栋出入口台阶,Entrance steps of D tower© 胡康榆(直角建筑摄影)

▼D1栋室外平台,Viewing platform of D tower©TAL

▼啤酒馆,Beer-bar©TAL

▼展厅,Exhibition space©TAL

D4屋面,拔掉中间三个直径7.5米的筒仓罐体,成为户外剧场,自然光从洞口进入室内形成聚光空间,适合展览或表演。切开筒仓进入罐体,加建旋转钢楼梯、电梯等垂直交通,剥去室内瓷砖和吊顶,混凝土天花板上的倒锥形罐体与裸露的混凝土结构还原出建筑空间的工业气场;顶部以连桥穿过罐体形成空中连廊。其中一个拔出的罐体被卧倒在E栋屋顶,成为空间装置。
On the roof of Building D4, three tanks in the middle, each with a diameter of 7.5 meters, were removed to make space for an open-air theater surrounded by the high silos; natural light is let into the lower floor from above, making the space suitable for exhibitions and performances. Tiles and suspended ceilings were removed, and the inverted conical tanks with the unveiled concrete structures on the interior restore the industrial atmosphere. An aerial walkway is also built to connect all the remaining tanks. One of the removed tanks is laid down to become a portal to the cultivated memory on the rooftop of Building E.
▼室外展场,Open air gallery©TAL

▼筒仓户外剧场,Silo theater©TAL

▼筒仓之间的楼梯,Stairs between the Silos©TAL

▼筒仓夜景,Night view©TAL

D5栋为四层的原酵母回收间。一层天花板局部切掉,以台阶联通一二层作为展示及休息区。屋顶加建一个钢结构红色盒子,与南边A栋遥相呼应,盒子北侧落地玻璃窗,引入山体公园的绿色,成为工遗建筑群北侧面向城市的窗口。
Building D5 was once a four-story yeast recycling line. The first floor ceiling is partially cut off to allow a large stairway connecting the first and second floor, which serve as both display and resting areas. A steel structured box covered with red tiles is added to the roof of D5, which echoes with Building A in the south. Its floor-to-ceiling glass windows open to scenes of the mountain park and the city in the north.
▼穿过筒仓内部的空中连桥,Aerial walkway through the silos©TAL

▼D5栋室内,Interior of D5 tower© 胡康榆(直角建筑摄影)

▼D5栋东北侧外观,Northeast view of D5 tower©TAL

2022年12月10日第九届深港双年展在改造后的金威啤酒厂开展。展场空间即成为深双的“零号展品”。 今天深圳城市中心向西发展,以商业服务行业为经济主体的罗湖区需要寻找新的发展点。我们希望通过工遗改造延续城市记忆的同时让所在城市街区从单一生产的工厂区域转变为多元文化艺术交融的生活地标。
On December 10, 2022, the 9th Shenzhen-Hong Biennale (UABB) was held in the newly renovated Kingway Brewery, instantly making it ”the first and foremost” project of the biennale. Today, the urban center of Shenzhen is shifting westward, and Luohu District, once known for its service industry, is aspired for new prospect of growth and development. We hope that renovation project will preserve the memory and legacy of the city and transform traditional industrial complex into new living landmarks for converging culture and art.
▼东昌路沿街立面局部,Partial elevation on Dongchang Road© 胡康榆(直角建筑摄影)

▼观景塔北立面,North elevation of vista tower©TAL

▼空中连桥夜景,Aerial walkway night view©TAL

▼街道层夜景,Night view© 胡康榆(直角建筑摄影)

▼总平面图,Master plan© URBANUS

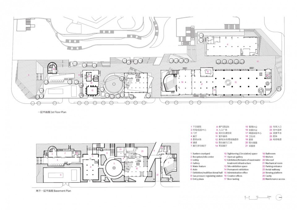
▼地下一层、一层平面图,Basement Plan, 1st Floor Plan© URBANUS

▼二层、三层平面图,2nd & 3rd Floor Plan© URBANUS

▼四层、顶层平面图,4th Floor & Roof Plan© URBANUS

▼剖面图,Section© URBANUS

金威啤酒厂改造
项目地点:深圳罗湖
设计时间:2019-2022
建设时间:2021-2022
用地面积:11,025 m2
建筑面积:12,309 m2
建设单位:广东粤海置地集团有限公司
设计:URBANUS都市实践(www.urbanus.com.cn)
主持建筑师:孟岩
建筑改造设计
项目经理:张海君(深化实施)吴然(投标)
项目建筑师:文汀(深化实施)Milutin Cerovic(投标)
项目组:倪若宁 程知谛 苑瑞哲 董文涵 岳然 林燕玉 廖国通(深化实施)| 郑植 岳然(投标)| 李睿 Rachael H Gaydos 黄婧娴 王誉初 林侃 高晴月 陈以宁 张丞杰 周杰 (实习)
景观设计组 | 项目建筑师:张雪娟 | 项目经理:李冠达 | 项目组:朱江晨 高宇峰
研究及策展
吴然(研究总监)| 吴锶莹 刘雨欣(执行策展)| 王沁雪(投标、深化、策展)| 莫思飞 朱宏瑞(投标)| 宋羽 彭元麓 (实习)
UABB相关展览
UABB“即地制造”常设展板块
学术指导:孟岩
策展团队:吴然 牛功(SANS三思), 吴锶莹 刘雨欣
视觉设计:挪挪
展览“再造车间:原金威啤酒厂工业遗存改造设计档案”
项目经理:张海君
设计团队:苑瑞哲 董文涵 王沁雪 | 彭宇新(技术支持)
展览“即地方法”
研究策划及展览设计团队:吴然,吴锶莹,阳芮馨,牛功(SANS三思)
空间装置“在地铸造”
设计团队:文汀 张海君 孙鹏程 苑瑞哲 倪若宁 林侃 高晴月
展览“(垃圾时空)时间介质”
展览板块:寰宇对话
子板块:寰宇城市
参展人:孟岩 × 李睿
设计团队:李睿 | 丁笑 董文涵 | 孟楚薇(个人艺术家)
施工图合作:中国建筑科学研究院有限公司
室内合作:Studio 10 深圳市十间设计咨询有限公司/深圳九思室内设计有限公司
C栋“在地铸造”空间装置技术支持及实施:上海大界机器人科技有限公司
幕墙设计:深圳市团河幕墙工程设计咨询有限公司
标识设计:张烁设计文化传播(深圳)有限公司
灯光合作设计:北京远瞻照明设计有限公司
“垃圾时空”灯光合作设计:角度照明(中山)有限公司
“再造车间”展厅灯光赞助:上海企一实业(集团)有限公司
现场照片 ©UABB ©粤海置地 ©URBANUS都市实践 摄影:胡康榆(直角建筑摄影)、TAL、张超、URBANUS都市实践
Kingway Brewery Renovation
Location: Luohu District, Shenzhen, China
Design: 2019-2022
Construction: 2021-2022
Site Area: 11,025 m2
Floor Area: 12,309 m2
Client: Guangdong Yuehai Land Holdings Limited
Architect: URBANUS(www.urbanus.com.cn)
Principal Architect: Meng Yan
Building Renovation
Project Manager: Zhang Haijun (Design Development), Wendy Wu (Bidding Phase)
Project Architect: Wen Ting (Design Development), Milutin Cerovic (Bidding Phase)
Team: Ni Ruoning, Cheng Zhidi, Yuan Ruizhe, Dong Wenhan, Yue Ran, Lin Yanyu, Liao Guotong (Design Development) | Zheng Zhi, Yue Ran (Bidding Phase) | Li Rui, Rachael H Gaydos, Huang Jingxian, Wang Yuchu, Lin Kan, Gao Qingyue, Chen Yining, Zhang Chengjie, Zhou Jie (Internship)
Landscape Design | Project Architect: Zhang Xuejuan | Project Manager: Li Guanda | Team: Zhu Jiangchen, Gao Yufeng
Research & Curation
Curation Team: Wendy Wu | Wu Siying, Liu Yuxin (Executive Curation) | Wang Qinxue (Bidding, Development, Curation) | Mo Sifei, Zhu Hongrui (Bidding Phase) | Song Yu, Peng Yuanlu (Internship)
UABB Relative Exhibitions
Making On Site UABB Permanent Section
Academic Consultant: Yan Meng
Curator: Wendy Ran Wu
Curation Team: Neill Mclean Gaddes (SANS), Siying Wu, Yuxin Liu
Visual Design: noynoy
Remaking Factory: The Design archive of the Kingway Brewery’s regeneration
Project Manager: Zhang Haijun
Curation and Exhibition Design: Yuan Ruizhe, Dong Wenhan, Wang Qinxue | Peng Yuxin (Technical Support)
MOS Methodology Exhibition
Research & Design Team: Wendy Wu, Siying Wu, Ruixin Yang, Neill Mclean Gaddes (SANS)
Cast-aluminum Installation
Design Team: Wen Ting, Zhang Haijun, Sun Pengcheng, Yuan Ruizhe, Ni Ruoning, Lin Kan, Gao Qingyue
“Space/Time Agency” Exhibition
“Cosmic Cities” of “ Cosmologic Dialogue” Section
Exhibitor: Meng Yan × Li Rui
Curation and Exhibition Design: Li Rui | Ding Xiao, Dong Wenhan | Meng Chuwei (Individual artist)
(LDI) Structure/ MEP (Mechanical, Electrical, Plumbing) Collaborator: China Academy of Building Research
Interior Design: Studio 10 Co., Ltd. / Shenzhen Jiusi Interior Design Co., Ltd.
Technical Support and Construction of Cast-aluminum Installation: RoboticPlus.AI
Curtain Wall Design: TUANHOOC
Graphic Design: SURE Design
Lighting Design: zdp (z design & planning)
Lighting Design for “Space/Time Agency” Exhibition: JODU
Sponsor in Light: Shanghai KEEY Group Co., Ltd.
Photos ©UABB ©GDH ©URBANUS
Photographers: Right Angle Image, TAL, Zhang Chao, URBANUS
More:都市实践。更多关于他们:URBANUSon gooood