Wutopia Lab设计的上海历史博物馆满坡栗咖啡馆,于2023年2月在博物馆西楼一楼落成开放。
Piazza in a room, the Mapoly Coffee in Shanghai Historical Museum, designed by Wutopia Lab will be opened in February 2023 on the first floor of the museum’s West Building.
▼视频,Video©CreatAR Images
咖啡,上海
Coffee and Shanghai
上海有世界上最多的咖啡馆,你可以找到日式,韩式,美式,台式或者东南亚的咖啡馆,甚至在永康路上还可以发现一间破败但还维持骄傲的80年代台湾日式咖啡馆,但就是没有上海的咖啡馆。不过上海的咖啡馆历史却很悠久,张爱玲1945年发表在《天地》杂志上的《双声》一文,打头便讲自己同好友出门,不论干什么,最后的终点大抵找一家咖啡馆。那时的上海咖啡馆是城市中的“公共空间”,提供咖啡点心之余,它可以是舞厅,可以是会议室,也可以是图书馆,是上海的信息中心,是日常的社交场所。
“作为人 作为人 真是不错啊”
You can find Japanese, Korean, American, Taiwanese or Southeast Asian cafés, and you can even find a run-down but proudly maintained 1980s Taiwanese Japanese café on Yongkang Road, but there is no such one that represents Shanghai. However, Shanghai has a long history of cafés. In Eileen Chang’s essay “Double Voices” published in Tiandi magazine in 1945, she began by saying that when she went out with her friends, no matter what they did, they would always end up in a café. At that time, cafés in Shanghai were communal spaces in the city, serving beverages and snacks, but they could also be dancing halls, meeting rooms, libraries, information centers, and everyday social places.
▼项目概览,overall of the project©CreatAR Images

咖啡,广场
Coffee and Piazza
咖啡馆平面是一个刀把型。文物局要求不得改动外立面。加之西楼是原跑马厅的马厩,所以立面的窗子都是高窗而且要求都是磨砂玻璃,这造成室内采光不足同时无法把室外的风景引入室内。
The plan of café is shaped like a knife-handle. The bureau of cultural heritage requested to preserve the facade. In addition, the west building is the former stables of the horse racing hall, so the windows of the façade are all high and require frosted glass, which causes a lack of indoor lighting and exterior views.
▼分析图,analysis diagram© Wutopia Lab

咖啡馆被封印在西楼一楼里。我突然想,如果我把外墙内立面看成外立面,那么咖啡馆的主要空间就不是室外了吗?我把失去风景的注意力转移到室内,这样的室内室外化的处理可以解除封印。
The café is sealed in the first floor of the west building.It suddenly occurred to me, if I regard the interior façade as exterior, isn’t the main space outdoor? Such exterized-interior could lift the seal.
▼咖啡馆被封印在西楼一楼里,the café is sealed in the first floor of the west building©CreatAR Images

▼外立面细部,details of the exterior facade©CreatAR Images


▼前厅被转化为灰空间,the vestibule turned into an ambiguous space ©CreatAR Images

那么室内中心应该是啥,要知道中心还有一根巨大的柱子。最具社交性的场所在城市类型中是欧洲的小广场。我决定参考《建筑模式语言》,用各种建筑部件组合成一个抽象的广场植入西楼一楼的室内而创造一个欢快的社交场所,一个上海的咖啡馆。
The interior space is actually hard to deal with since there is also a huge column in the center. The most public place in the urban typology would be those small squares in Europe. I decided to create a cheerful communal place, a Shanghai café, by combining various building components into an abstract square implanted in the interior of the first floor of the West Building, referring to A Pattern Language (Christopher Alexander, Murray Silverstein, and Sara Ishikawa, 1977).
▼中心的巨大柱子,the huge column in the center©CreatAR Images


▼欧洲小广场似的社交氛围,the social atmosphere of a small European square©CreatAR Images

▼中央的柱子改成带有许愿池的纪念碑,the central pillar was repurposed as a monument©CreatAR Images

中央的柱子改成带有许愿池的纪念碑,背后刻有我的小说片段。围绕着它,有台阶,柱廊,带壁炉的舞台,作为阳台的玻璃包厢。可以有鲜花,咖啡,一点酒,爱情,八卦,宠物,脱口秀,突然一曲阿尔罕布拉宫的回忆以及即兴的探戈。喧闹,欢快以及隐藏的嫉妒。
“昨天不过是今天的回忆,明天不过是今天的梦想。”
The central pillar was repurposed as a monument with a wishing pool, behind which a segment of my novel is inscribed. Around it, there are stairs, a colonnade, a stage with a fireplace, and a glass box as a balcony. There can be flowers, coffee, a little wine, love, gossips, pets, stand-up comedy, a sudden song of memories of the Alhambra and an impromptu tango. There can be hustle, cheerfulness as well as hidden jealousy.
“Yesterday is but today’s memory and tomorrow is today’s dream.” (The Prophet, Kahlil Gibran, 1923)
▼许愿池,the wishing pool©CreatAR Images

▼台阶与作为阳台的玻璃包厢,stairs and a glass box as a balcony ©CreatAR Images

一段微型城市
A clip of the micro-city
顾客从黄陂南路过街楼进入,原先需要从咖啡馆和公共卫生间公用的前厅抵达咖啡馆,我们决定拆除三扇玻璃门,把前厅变成灰空间,一个呼应室内广场柱廊的外廊。由此推开大门上几步进入被称为博物馆的咖啡馆吧台区。黑色的吧台区是刀把的把手部分,服务空间占去主要面积。我们把过道变成展览区和散座。大门的一侧是是用绿色手工砖打造的一个外卖等候区,同时也是一个和上海历史博物馆合作的小型画廊,你会惊喜地看到外卖咖啡会从一个暗藏的画框中递出来。
When customers entered from the South Huangpi Road arcade, they originally had to reach the café through a common vestibule and public restrooms. We decided to remove the three glass doors and turn the vestibule into an ambiguous space, a porch echoing the colonnade of the indoor plaza. From there, we pushed open the doors and took a few steps up into the bar area of the café. The black bar area is the handle part of the “knife handle”, and the service space takes up the main area. We turn the aisle into an exhibition and casual seating area. On one side of the door is a take-out waiting area made of green handmade bricks and a small gallery in collaboration with the Shanghai Historical Museum, where you will be surprised to see take-out coffee being handed out from a hidden frame.
▼过道转化成展览区和散,theaisle turned into an exhibition and casual seating area ©CreatAR Images

▼绿色手工砖打造的外卖等候区,the take-out waiting area made of green handmade bricks©CreatAR Images

博物馆的尽头是一道不锈钢推拉门,门后是白色柱廊。柱廊地坪和博物馆一样被抬高,这样一来,高窗就变成正常尺度的窗户。从柱廊拾阶而下,就是那白色的广场。站在广场回望,黑色的吧台嵌在白色的柱廊里,我在那里给我留了一个可以躲起来喝一杯旁观广场喜剧的位子。而沿外墙的柱廊放满了低矮的沙发,那是我在伊斯坦布尔的水烟咖啡馆里的印象改写。阳光下,慵懒在柱廊里的烟雾缭绕,生活无非就是这么一些。
At the end of the museum is a stainless-steel sliding door with a white colonnade behind it. The floor of the colonnade is elevated to level with the museum, so that the high windows would fit in the scale of a human being. From the colonnade, the steps lead people down to the white plaza. Looking back from the square, the black bar is nestled in the white colonnade, where people could have a seat to rest and drink while watching the comedy in the square. And the colonnade along the outer wall was filled with low sofas, a rewrite of my impressions from the hookah cafés of Istanbul.Sun shines through the smokes flowing in the colonnade. Being cozy, life is just like that.
▼白色柱廊,the white colonnade©CreatAR Images

▼柱廊地坪和博物馆一样被抬高,
the floor of the colonnade is elevated to level with the museum©CreatAR Images


满坡栗咖啡,从柱廊进入带展厅的博物馆再走到带柱廊的广场。它就是我设想的微型城市的一个片段。把它,这个Piazza in a room放大100倍,就是我理想的城市—上海。
“Nobody learns without getting it won.”
Mapoly Coffee, from the colonnade into the museum with exhibition halls and then walk to the square with colonnade, is a fragment of the miniature city I envision.Scaling up this ‘Piazza in a Room’, it is then my ideal city – Shanghai.
“Nobody learns without getting it won.”
▼由广场看柱廊,viewing the colonnade from the square©CreatAR Images

我要一点装饰
Ornaments
但我的上海不是那种极简主义的上海。她需要一些很节制装饰,是关于记忆和象征的符号。入口敞廊的地面中间镶嵌的是翻修时发现的当年马厩的地砖。在镶嵌黑色吧台的柱廊拱券上还能看到纪念马厩的马蹄铁符号。黑色的博物馆里的高护墙板、珐琅地砖、拼花地板和绿色手工砖在塑造一种真实又不真实的记忆中的上海。而设计灵感来自于咖啡果的彩绘玻璃天花则把这种记忆戏剧化了。
My Shanghai is never minimalist. She needs some very restrained decoration, markers of memories and symbolism. The floor of the entrance gallery is inlaid in the middle with tiles from the stables that were found during the renovation. The horseshoe symbol commemorating the stables can also be seen on the arches of the colonnade in the black bar. The high siding, enamel floor tiles, parquet flooring and green handmade tiles in the black museum are shaping a Shanghai that is both real and unreal in its memory, which is dramatized by a stained-glass ceiling inspired by coffee cherries.
▼由座位区看柱廊拱券中的黑色吧台,viewing theblack bar in the colonnade from the seating area©CreatAR Images

▼舞台区,the stage area©CreatAR Images

▼座位区,seating area©CreatAR Images

装饰也来自于材料,我用黑色木材覆盖了吧台区,用白色石材覆盖了入口敞廊和广场。地面都是白色石材镶拼的弹格路地坪。石材转角包括壁龛都做了连续的折角处理。入口的地面壁龛有着蜡烛,而视线所及的壁龛其实是洞口,隐约可见绿色外卖区和背后的黑色吧台以及白色的纪念碑。这很不建筑师,但装饰从来不是罪恶,是我们需要满足自己的一点小意义。
“Because we need a witness to our lives.”
I covered the bar area with black wood and the entrance gallery and plaza with white stone. The flooring is all white stone parquet with grid line pop-ups. The stone corners, including the niches, are continuously fillet. You can see the ground niche at the entrance with candles, while the niche in sight, representing cave entrance, the green take-out area, the black bar and white monument behind it faintly visible. It’s not very architectural, but decoration is never a sin, it’s the very little bit of meaning we need to satisfy ourselves.
“Because we need a witness to our lives.”
▼由壁龛洞口可隐约看见绿色外卖区,
viewing thegreen take-out area from the niche at the entrance©CreatAR Images

Shall we dance
我是一个面临危机的中年男人,我在历史博物馆里创作的这个咖啡馆满足了我一个年轻时候的愿望,让役所广司或者艾尔帕西诺可以在这里即兴跳一段探戈。我端着香槟酒靠在台阶上有些微醺,台阶上的大门其实是个屏幕,让我的思绪能够穿越。好朋友舞蹈家周吉天,朱丽千在广场里的探戈让我回忆起那个充满可能性又勇敢的90年代。
I am a man facing a middle-aged crisis. But creating this café, where Yakusho Hiroshi or El Pacino could improvise a tango, Ifulfilled my dream from my youth time. I leaned against the stairs, being a little tipsy with champagne, and the door on the stairs was actually a canvas for my thoughts to linger. The tango in the square by my good friends, dancers Zhou Jitian and Zhu Liqian, reminded me of the 90’s, a time of possibilities and bravery.
▼咖啡馆中的舞蹈场景,dance scene in a cafe ©CreatAR Images

▼柱廊为舞台提供了优雅的背景,the colonnade provides an elegant backdrop for the stage©CreatAR Images

Shall we dance?我不会跳舞,但我想和你笨拙而放恣地一舞,纪念碑上的天花永远是晴天,无论外面刮风下雨。
“All I want from you is another day.”
Shall we dance?Well, I don’t know how to dance, but I want to dance with you awkwardly and clumsily, and the ceiling on the monument will always be sunny, no matter if it is storming outside.
“All I want from you is another day.”
▼于柱廊中游走的舞者,dancers traveling through the colonnade ©CreatAR Images

▼由柱廊看广场中的舞者,viewing the dancers in the square from the colonnade©CreatAR Images


这是我的上海
Shanghai in my eyes
满坡栗咖啡馆可以展示日与夜交替的生活方式的城市,是我的某个上海的片段。我曾经一度失去对上海的信心,也因为在病床上挣扎而唉声叹气。可是当我推开厚重的黑色大门,那个熟悉而勇敢的上海扑面而来。嗯,上海一直活着。
“Sometimes if you love someone, you gotta be strangers to them”
The city where Mapoly Coffee can showcase the alternating day and night lifestyle is a certain clip of Shanghai in my eyes. I had once lost faith in Shanghai and sighed because I was struggling in the hospital bed. But when I pushed open the heavy black doors, a familiar and brave Shanghai came crashing down on me. Well, Shanghai has been alive.
“Sometimes if you love someone, you gotta be strangers to them”
▼室外细部,exterior details©CreatAR Images

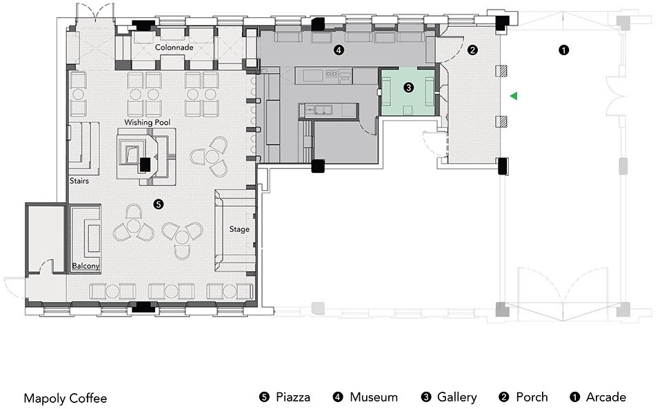
▼平面图,plan© Wutopia Lab

▼定制玻璃花窗图纸,custom pattern stained-glass(Coffee Cherry)© Wutopia Lab

项目信息
项目名称:Piazza in a room/上海历史博物馆满坡栗咖啡馆
设计公司:Wutopia Lab
主持建筑师:俞挺
项目建筑师:孙丽然
设计团队:况舟,潘大力,高博龙(实习)
深化公司:上海呈煜空间设计有限公司
设计团队:戴云峰,郭佳女,吴晓艳,赵如意,崔销销,王彬彬,马川川,张敏敏
照明顾问:张宸露,杜雨轩
材料顾问:孙静
摄影:CreatAR Images
舞蹈:周吉天,朱丽千
业主:福德速(上海)企业发展有限公司
施工单位:万江建设
施工团队:王丽洋(施工总监),陈卫明(项目经理),吴吉顺(队长)
项目地址:中国,上海,上海历史博物馆西楼
建筑面积:170㎡
竣工时间:2022.12
Project Info
Project name: Piazza in a room
Architectural firm: Wutopia Lab
Chief Architect: Yu Ting
Project Architect: Sun Liran
Design Team: Kuang Zhou, Pan Dali, Gao Bolong(intern)
Design Development: Shanghai C-yu Space Design Co., Ltd
DD Team: Dai Yunfeng, Guo Jianv, Wu Xiaoyan, Zhao Ruyi, Cui Xiaoxiao, Wang Binbin, Ma Chuanchuan, Zhang Minmin
Lighting Consultant: Zhang Chenlu, Du Yuxuan
Material Consultant: Sun Jing
Photography: CreatAR Images
Performance: Zhou Jitian, Zhu Liqian
Client: Ford Thru (Shanghai) Enterprise Development Co.,LTD
Construction: ZOOM architecture
Construction Team: Wang Liyang, Chen Weiming, Wu Jishun
Location: Shanghai Historical Museum, West Building, Shanghai, China
Area: 170㎡
Completion:2022.12
More:Wutopia Lab。更多关于他们:Wutopia Labon gooood