这个排屋的独特之处在于非常狭窄的地块(3.8米面宽)和一个非常狭长的后院。客户是一对夫妇,有两个孩子,需要一个四口之家的标准方案。
The unique characteristics of this row house come from a very narrow plot (3.8 meters wide) and a very long back yard. The clients, a couple with two children, need the standard program for a family of four.
▼住宅外观,exterior view© José Hevia

▼建筑与街道,building and street© José Hevia

▼后院概览,overview of the backyard© José Hevia

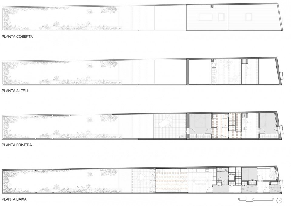
在现有建筑的体量内,我们协商一致布置了三间大小比例相似的卧室。一楼临街道是大儿子的卧室。二楼有两间卧室:一间是夫妇俩的卧室,另一间是小儿子的卧室,各自贴着一侧立面。体量中心布置有两间浴室:一间在二楼,另一间在一楼同时供客人使用。扩大了建筑体量以将客餐厨一体化,并与同层的庭院花园相邻。在屋顶下新增了一个阁楼空间作为额外的多功能房间,可以用作书房或第四间卧室。原有楼梯被保留。不需要停车场。
▼项目区位,site plan © Vallribera Arquitectes

Within the volume of the existing building, we agree to put in three bedrooms with similar sizes and proportions. On the ground floor, looking over the street, the older son’s bedroom. On the second floor, two more bedrooms: one for the couple and the other for the younger son, each located along one of the façades. The center is occupied by two bathrooms: one on the second floor and another on the ground floor, also for guests. The volume of the building is expanded in order to place the kitchen-dining-living room adjacent to the patio-garden, at the same level. A new loft space is added under the roof, which provides and extra multi-purpose room that can be used as a study or as a fourth bedroom. The original staircase is maintained. There is no need for a parking area.
▼住宅入口,residence entrance© José Hevia

▼一层走廊,first floor corridor© José Hevia

▼一层餐厨区概览,overview ofkitchen-dining area on first floor© José Hevia

▼从餐厨区望向客厅及后院,view of living room and the backyard looking from kitchen-dining area© José Hevia

▼从后院望向客餐厅,view of living room and kitchen looking from backyard© José Hevia

房子的面宽在很大程度上决定了功能分布,内部的原有分区似乎直接转化为了方案的布局。为了弥补这种简单性,我们着眼于不同的天花板高度和特性。卧室是光滑的低天花板,刷成白色。房子的公共区域(厨房餐厅、楼梯、书房和多功能房)有高高的天花板,裸露的横梁和拱顶,同样是白色。扩建的部分(客厅和二楼的浴室)则是两个新的木梁与木楼板,为房子增添了暖色的对比。在二楼,这种不同天花高度的对比在由卫生间和楼梯间(2.2米高)通往书房的空间中得到了最充分的表达,在这里原有的坡屋顶净高超过了4米。一架梯子从这里通向阁楼。铺装让步于天花板:整个空间使用相同的粗糙的瓷砖,紧密连接一起。防晒用的卷帘窗帘,尤其是在后院一侧,创造了与铺装相同的效果:它们都是传统元素的现代运用。
The width of the house conditions the distribution to such an extent that the arrangement of the interior partitions seems to translate directly into the layout of the program. This simplicity is compensated by working with different ceiling heights and qualities. The bedrooms have smooth low ceilings, painted white. The public areas of the house (kitchen-dining room, staircase, study, and multi-purpose room) have high ceilings with exposed beams and vaults, also white. The areas of the extension (living room and second-floor bathroom) have two new wooden beam and plank ceilings that add a counterpoint of warmth to the house. On the second floor, this play of different heights reaches its fullest expression at the point where the spaces of the bathroom and stairway (2.2 m high) lead into the study, where the height of the original sloped roof reaches more than 4 meters. From here, a ladder leads up into the loft. The pavement takes a back seat to the ceilings: the space is tied together by using the same rustic ceramic tile throughout. The sun protection, roll-up window shades, especially in the rear courtyard, aim to create the same effect as the pavement: they are traditional elements used in a contemporary way.
▼楼梯间及其木质天花板,staircase and its wooden ceiling© José Hevia

▼二层区域的不同净高,different ceiling height of second floor© José Hevia

▼从二层卫生间望向书房区,view of study area looking from bathroom© José Hevia

▼阁楼多功能房间,multi-used room on the loft© José Hevia

▼通向阁楼区的梯子,a ladder leads up into the loft © José Hevia

▼从阁楼梯子望向净高超过4米的书房,view of study room over 4 meters high looking from loft ladder© José Hevia

▼卫生间细部,detail of bathroom© José Hevia

我们改善了建筑围护结构,以使立面墙体、共用墙体和屋顶达到必要的厚度;建筑开口(窗、门框和防晒帘)经过设计,控制日照得热与保温;策略性地安装了石质构件以提供热惰性,使用木材来提高热负荷性能;保暖、冷却和通风系统都考虑了最佳方案。所有的一切都是为了确保房子的舒适性和能效。
The building envelope is modified to provide the necessary thickness in façades, party walls and roofs; the openings (window and door frames and sun protection) are designed to control heat gains and losses due to sunlight; stone elements are installed strategically to provide thermal inertia, and wood is used to improve hygrothermal performance; the best options are taken into account for heating, cooling and ventilation systems. Everything serves the goal of ensuring the house is comfortable and energy efficient.
▼后院一侧的防晒卷帘窗帘,roll-up window shades in the rear courtyard for sun protection© José Hevia

▼剖面模型,section model© Vallribera Arquitectes

▼平面图,plans© Vallribera Arquitectes

▼剖面图,section© Vallribera Arquitectes

Project: 82SAN Renovation and expansion of a row house in the center of Terrassa
Location: Terrassa, Barcelona
Phase: Finished construction
Gross floor area: 142m²
Design date: 2016
Construction date: 2017-2018
Developer: Private
Architects: Llorenç Vallribera, Aleix Gil (VALLRIBERA ARQUITECTES)
Collaborators: Sergi Ballester, architect; Xavier Delgado, quantity surveying; Jesús González, structural consulting.
Total primary energy consumption: 50.57 KWh/m² per year
Total CO2 emissions: 10.59 KgCO2/m² per year
EPC rating: A
Photographs: ©José Hevia
More:Vallribera Arquitectes,更多关于:Vallribera Arquitecteson gooood