1.
乡村更新后的商务度假圣地
Rural renewal of the business resort
天马山庄(天马村)位于山西晋城市阳城县蟒河镇,地处阳城县南部晋豫两省交界处。这里群山环绕、景色优美。村庄内部,完整自然的传统风貌、北高南低的退台地势和特色的山茱萸林,使天马山庄具备成为风貌独特的山林休闲文旅之地的基础条件。
Tianma Villa (Tianma Village) is located at the junction of Shanxi and Henan province, surrounded by mountains and beautiful scenery. Inside the village, the nature landscape, the terrain with high north and low south, and the characteristic dogwood forest together making Tianma Villa a unique place of leisure and cultural tourism.
▼天马村更新后鸟瞰,Overlook Of Tianma Village After Renovation © 战长恒

而新修的太行一号公路从村庄北侧穿过,为天马村文旅休闲产业进一步发展创造了机遇。而对天马村织补式更新,为探索村庄发展的新路径,建设具有归属感的商务人文精神家园创造了条件。
The newly constructed Taihang Highway No. 1 passes through the village from the north, creating spatical conditions for exploring new development approaches and building a spirit destination for business and culture.
▼更新前天马村建筑及景观,Buildings And Landscape Of Tianma Village Before Renovation© 水木清城廉毅锐工作室

▼天马村更新前鸟瞰,Overlook Of Tianma Village Before Renovation © 水木清城廉毅锐工作室

2.
熟悉又新鲜的交融织补
Mountain Space Weaving
村庄内既有历史的山西传统民居,也有不同历史时期经年累月改造加建的建筑,混杂并存着。因此在更新改造上注重新与旧的交融织补,立意乡村,以织补式激活为手法,对整体环境与重要节点更新,形成串联起的景观流线;力求以最少的改造、最轻的手法,营造熟悉又新鲜的氛围感受。
The village contains a mix of Shanxi traditional residences and buildings that have been renovated and added to over the years in different historical periods. Therefore, through the strategy of “patchwork”, the overall environment and important nodes could be updated to form a landscape streamline, aiming to create both a familiar and unfamiliar atmosphere by minimum intervention and the simplest approach.
▼天马村更新后顶视图,Top view of Tianma Village After Renovation © 战长恒

3.
织补式系统改造,激活空域用地
Weaving Type Renovation System
3.1持续的系统改造,由小及大、由点及面
A continuous transformation strategy, from small to large, from point to point
面对已经有明显动作过的乡村,不论好坏,设计都不大可能也不大应该再次按照新一轮的设计来一个整体的刷新。更有效更友好的方法是首先要分析和找到问题,以小规模、持续性的实践性操作,从景观和简单构筑物入手,再到个别建筑立面最后到建筑功能,用比较小的动作来填补少量不足,或者减去少量多余,尽可能修改空间格局以提升村内流线和氛围作为目标。补短板、填漏洞、塑美景,如同做一次空间和功能的织补。
Considering the countryside that has already undergone significant action, for better or worse, it is unlikely that it could or should be refreshed as a whole again with a new round of design. A more effective and friendly approach would be that, firstly, analyse and identify the problem, and operate on a small, continuous and practical scale, starting with landscape and simple structures, then moving on to individual facades and finally to building functions. It is better to fill in gaps with relatively small movements, subtract the redundancy, and modify the spatial pattern to enhance the flow and atmosphere of the village as far as possible. Making up for weakness, filling in gaps, reshaping the landscape are identified as strategies for spatial and functional weaving.
▼重建乡村公共空间,Reconstruction Of Rural Public Space © 战长恒

3.2织补建筑空间序列,提升整体氛围
Darning the sequence of building Spaces to enhance the overall atmosphere
天马村地势呈北高南低的退台状,在原有台地基础上,随地形改造的叠水、台阶、山茱萸晒台,成为串联天马的景观漫游路径。而路径中,与星空相连的无边界泳池、大槐树下广场、多流线汇聚的中心广场、各建筑围合院落景观等公共空间的序列;点缀的入口处天马星空塔、山茱萸展示工坊、山茱萸餐厅、牛圈酒吧、民宿以及公厕等建筑空间的序列,交互融合成为提升空间氛围的点睛之笔。
A landscape roaming path that links Tianma are formed through topographical transformation with cascading water, steps, dogwood sun terraces, a “infinite” pool connected to the starry sky, and courtyards enclosed by various buildings. The path is dotted by the Tianma Star Tower at the entrance, the square under the Big Sophora Tree, the Dogwood Display Workshop, the Dogwood Restaurant, the Bull Ring Bar, the B&B and the public toilets, together enhancing the spatial atmosphere.
▼空间和功能的织补,Spatial And Functional Weaving © 水木清城廉毅锐工作室

3.3保留原有高差,激活空余用地
Field weaving, activating vacant sites
天马村依山而建,朝南有着广阔的远山视野,村居沿着等高线成组成团地散布民,村内地势高差明显,形成了几个梯田状台地组团。
The village is built alone the mountain on the south, and residences are scattered in clusters along the contour lines, forming several terrace groups.
▼依山而建的民宅,Houses Built On The Mountain © 战长恒

当地已经做过了一部分建筑改造,利用地势建设了一整组大型度假民宿。房子体量、高度有些许变化,但彼此之间的间距变大了,改变了村内氛围,稍显失于疏离。因此我们接手后,在现有基础上,通过改变距离内部空间的填充内容入手,进行环境心理的修正,激活空余用地。
In the last planning progress, we decided to demolish half of the houses, reorganise the terrain and build a large group of holiday lodges. There is a slight change in the volume and height of the houses, but the spacing between them has increased, changing the atmosphere of the village and making it less detached. We therefore started with a psychological correction of the environment by changing the content of the infill of the space within the distance.
▼整体设计草图,Overall Design Sketch ©水木清城廉毅锐工作室

我们在保留高差地形的基础上,将间距的空地再一次沿着高差细分台地,拾阶而下的新建多层浅水池(此村背山高处有水源)、跌落的山茱萸晾晒台、台阶景观步道,将台地细分尺度与不同材质,激活了空余用地。辅以当地石砌与木材结合的座椅与侧山墙的少量木廊架,以景观手法塑造建筑尺度的延展,形成尺度适宜、趣味盎然的室外家具与模糊边界。
We started with changing the filling content of the inner space and revising the environmental psychology. On the basis of keeping the height difference of terrain, we subdivide the open space along the terrain, in order to build a new multi-storey shallow pool (there is water source at the height of the back mountain), a dogwood drying platform, and a stepped landscape trail, subdividing the platform into different scales and materials, by doing so, activating the vacant land. With the seats made of local stone and wood, as well as a few wooden porch frames on the gables, an extension of architectural scale is generated by landscape techniques, forming porous boundaries.
▼拾阶而下的浅水池,A Shallow Pool With Steps © 战长恒

丰富三维的空间内容,减少了疏离感,解决了村内氛围的主要的问题,摆脱了大量的关于房子的土建矛盾。这个织补,可以看作是跨过时间与未曾谋面的同行进行了一次接力的规划。
This rich three-dimensional space content helps to reduce the sense of alienation, solve the main problems of the village atmosphere, and to get rid of a large number of contradictions about houses. This “weaving” can be seen as a relay planning with colleagues who have never met before.
▼空间的织补,Spatial Weaving © 战长恒

4.
重塑乡村公共节点
Reshape Rural Public Nodes
天马村村庄人口逐年减少,目前以老年人居多。人群在地性的消散,逐渐瓦解了曾经熟人社会的结构。曾经的街头巷尾、古井老树,作为乡村集体聚集与感情联系的“大槐树下”,正在失去往日的色彩。现在重建的乡村公共空间是重拾乡村记忆、安放“乡愁”、增强村民凝聚力实现村民共情的重要场所。
The population of the Tianma village has been decreasing year by year and is now predominantly elderly. The dispersion of the local population has gradually resulted in the collapse of the once familiar social structure. The streets and lanes, the old wells and trees, the ” big acacia tree” for gathering and emotional connection are missing. Hence, rebuilding rural public spaces right now could help reviving local memories and “nostalgia”, creating important place to achieve villagers’ empathy.
▼村口的大槐树,The Big Locust Tree At The Entrance Of The Village © 战长恒

4.1景观织补,重塑视觉核心与公共空间
Landscape weaving, reshaping the visual core and public space
在景观设计上注重地形的强化与织补。村庄中心广场与入村主入口之间天然存在较大高差,形成了独特的退台地势,设计充分利用山形水势,重整山村地势引山泉叠落,营造特色生态步行景观廊道,在村庄中心处形成一条中心景观带。
Considering landscape design, we need to pay attention to strengthening and weaving the terrain. The natural height difference in between the village centre square and the main entrance creates a unique retreating terrain. We makes full use of the mountainous terrain, reorganising the landscape and drawing in mountain springs to create a characteristic ecological pedestrian corridor, forming a landscape belt in the centre of the village.
▼中心景观带,Central Landscape Zone © 战长恒

星空与山茱萸构成了天马村独有的景观主题。设计以当地特色药材资源山茱萸为主题,结合丰富的高差与现有的开放空间和屋顶形成一个个层叠的山茱萸晾晒台与观景台,也使得山茱萸晾晒台贯穿整个村庄。远可头顶星空、极目远山,近能观赏茱萸、重拾乡愁。
The starry sky and the dogwood form a unique landscape for Tianma Village. The design is based on the local herbal resource—the dogwood, and combines the rich height differences with the existing open spaces and roofs to form a cascading dogwood drying and viewing platform, which also allows the drying platform to run throughout the village. From a distance, one could see the starry sky and the distant mountains, and from close up, one will enjoy the dogwoods and revive nostalgia.
▼山茱萸晾晒台,Dogwood Drying On The Roof © 战长恒

4.2大槐树景观广场
Big Locust Tree Landscape Square
村口大槐树在现有景观基础上,增加乡村景观家具,置入围合座椅与廊架,改造成为一个村民与游客的聚集地,重塑公共空间留住乡愁记忆。
On the basis of the existing landscape, the village entrance has been transformed into a gathering place for villagers and tourists by adding rural outdoor furniture, such as seating and a veranda, reshaping the public space to retain nostalgic memories.
▼大槐树景观广场,Big Locust Tree Landscape Square © 战长恒

4.3结合灌溉系统 • 兼作无边泳池
COMBINED WITH IRRIGATION • DOUBLE AS INFINITY POOL
发挥自然地形优势的强化织补,结合灌溉系统,引山泉水系叠落,于村庄内改造无边泳池天空之境,提升环境品质,建成后成为拍照打卡人气热点。
Taking advantage of the natural terrain, strengthen the weaving, combine with the irrigation system, lead the mountains and springs to overlap, create a limitless swimming pool and sky in the village, improve the environmental quality, and become a popular hot spot for taking photos after completion.
▼无边泳池,Infinity Pool © 战长恒

5
空间承载,产业提升
Space Bearing, Industrial Upgrading
5.1功能织补,产业配套
Functional weaving, scene creation, and create spatial strategies for Industrial weaving
整顿村内剩余空间,通过建筑植入、景观塑造、公共空间等途径塑造公共节点,对景观和空间的有形织补,通过公共空间节点设计留住乡愁,补足产业功能,从而完善整体功能,促进了产业和生活功能的无形织补完善发展。利用原有高差,结合现状民居,以新建、改造等手法织补所需的产业配套功能。改牛圈为酒吧驿站、改民居为民宿、公厕等,织补村庄公共服务配套。在建筑空间的基础上,大槐树广场、叠水地势、退台晾晒台、与星空结合的无边界泳池进一步强化空间围拢,加强了村内小距离组团感受,成为了功能上的一次有效提升,使功能与产业产生契合匹配。
Through architectural implantation, reshaping landscape and public space and other means to form public nodes, rectify the remaining space in the village, and to retain nostalgia, complement the service function, thus improving the overall function.The village’s public services are complemented by the transformation of cattle pens into bar stations, and residential houses into home-inns and public toilets. On the basis of the architectural space, the large acacia tree square, the stacked water terrain, the drying platform and the borderless swimming pool combined with the starry sky further strengthen the spatial enclosure and enhance the feeling of small grouping within the village, making the function and industry fit together effectively.
▼公共空间节点设计,Public Space Node Design © 战长恒

5.2原有已建民宿
The Original B&B
村庄内已新建成的度假型民宿,可接待30-50名游客,使村内的公共活动配套服务开始出现需求。
The new built homestay inns in the village can serve 30-50 visitors, which increasing the need for support services for public activities.
▼村内原有已建的民宿,Newly-Built Homestay In The Village © 战长恒

5.3天马星空塔 • 丰富文旅商务业态(团建、会议等)
Tianma Starry Sky Tower • Enrich cultural tourism business forms
新建入口门户标志,承载团建/会议等功能,丰富文旅商务业态形成视觉展示中心。
New entrance portal logo, carrying the functions of group building/meeting, enriching cultural and tourism business forms to form a visual display center.
▼天马星空塔设计草图,Design Sketch © 水木清城廉毅锐工作室

▼村庄入口处天马星空塔,Tianma Star Tower At The Entrance Of The Village © 战长恒

5.4牛圈酒吧、驿站
Cowshed Pub And Stagecoach
在原有牛圈废弃建筑上增加现代材质,同时透明墙壁内填充当地特色的山茱萸,既融入了建筑的现代感,又很好的保留了村庄原有建筑肌理、地方特色。酒吧功能的置入使其变得多元有趣,成为整个村镇独一无二的牛圈酒吧、驿站。
Modern materials are added to the abandoned building of the original cowshed, the transparent wall is filled with local characteristic dogwood. So it not only retains the texture of the original village building, but also shows the modern sense of the building. The bar function is inserted to make it diversified and interesting, becoming the unique cowshed pub in the village.
▼牛棚酒吧驿站,Cowshed Bar Posthouse © 战长恒

5.5山茱萸艺术工坊
Dogwood Display Workshop
充分利用天马村特有的一项突出的产业资源“山茱萸”,它既是一种重要的中药材,又具有景观观赏价值,利用原有建筑改建成具有山茱萸展览参观与艺术工坊的功能、山茱萸特色康养饮食及商品展卖的功能。
The tangible weaving of landscape and space promotes the development of intangible patching of industrial and living condition. Taking advantage of the unique industrial resource of the Tianma Village—the dogwood, which is both an important herbal medicine and a landscape ornament, the original building has been transformed for dogwood exhibition,art workshop, dogwood wellness diet and merchandise showing and sale.
▼山茱萸展示工坊,Dogwood Display Workshop © 战长恒

5.6山茱萸体验餐厅•当地特色餐饮
Cornus Experience Restaurant• Local Specialties
新建山茱萸展示工坊,强化补充产业载体。并在村庄边缘建设三组民宿织补村庄肌理;拆除破败建筑改建山茱萸主题餐厅,补充村庄特色餐饮康养产业功能。
Build a new cornus display workshop to strengthen and supplement the industrial carrier. And build three groups of homestays at the edge of the village to weave the texture of the village; Demolition of dilapidated buildings and reconstruction of dogwood theme restaurants will complement the functions of the village’s characteristic catering and health industry.
▼设计草图,Design Sketch © 水木清城廉毅锐工作室

▼山茱萸餐厅,Dogwood Restaurant © 战长恒

6.
天马星空·再出发
Tianma Starry Night,Starting Again
通过置入产业、丰富特色业态,发展地方商业、提升生态和农林业等要素空间,织补并丰富了产业结构,增加了就业和收入可能,从根本上提升村镇的活力、增强年轻人居留粘性,增大外来投资可能性。通过促进村镇经济发展,最终实现对乡村文化的传承与保护。
By incorporating industries, enriching the speciality businesses, developing local commerce, enhancing ecological and agroforestry elements, enriching the industrial structure, increasing employment and income, and fundamentally promoting the vitality of the village and town, attracting more young residents, and increasing the inward investment. By promoting the economic development of villages, it will also ultimately lead to the preservation and protection of rural culture.
▼节假日游人如织的天马村,Full Of Tourists On Holidays ©水木清城廉毅锐工作室

▼天马星空图平面图,First Floor Plan © 水木清城廉毅锐工作室

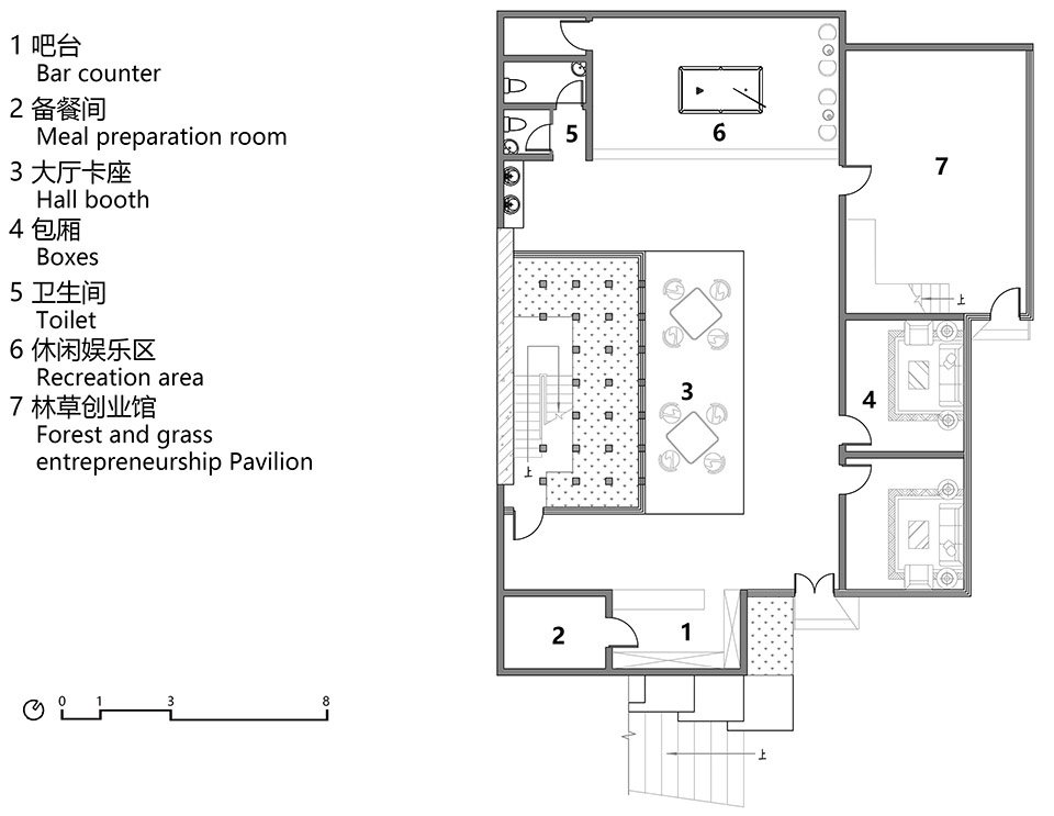
▼牛圈酒吧首层平面图,First Floor Plan © 水木清城廉毅锐工作室

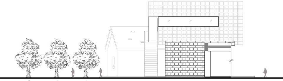
▼牛圈酒吧南立面图,South Elevation © 水木清城廉毅锐工作室

▼山茱萸餐厅首层平面图,First Floor Plan © 水木清城廉毅锐工作室

▼山茱萸餐厅南立面图,South Elevation © 水木清城廉毅锐工作室

项目名称:天马村庄织补式更新改造
项目类型:建筑设计,更新
设计方:北京水木清城建筑设计咨询有限公司
联系邮箱:cmcity@126.com
完成年份:2021.10
设计团队:廉毅锐,李丹,卢鹏鹏
项目地址:山西阳城
建筑面积:2822㎡
摄影版权:战长恒
客户:阳城县国有资本投资运营有限公司
More:北京水木清城建筑设计咨询有限公司(邮箱:cmcityoffice@126.com),更多关于:cmcityofficeon gooood.