在鹿特丹的屋顶公园坡下,住宅项目“The Hudsons”已经建成。该项目增加了5栋建筑,包括118套单户住宅、24套公寓和2个商业空间,位于Bospolder-Tussendijken区。20世纪初的Bospolder-Tussendijken区经过几十年的重建,最近的计划旨在将更多的中高收入群体融入到文化高度多样化的社区中。 “The Hudsons”精心设计,为实现这一愿景做出了贡献。
At the foot of the Roof Park in Rotterdam housing project The Hudsons has been realized. The development adds 5 building blocks with 118 single-family homes, 24 apartments and 2 commercial spaces to the Bospolder-Tussendijken district. The early 20th-century district of Bospolder-Tussendijken has been undergoing restructuring for decades. The more recent plans aim to integrate more mid- and high-income groups into a district with a culturally highly diverse population. The Hudsons contributes to this ambition with great care.
▼鸟瞰位于屋顶公园坡脚下的The Hudsons住宅项目,aerial view of the project located at the foot of the Roof Park© Sebastian van Damme

The Hudsons位于Bospolder-Tussendijken区和未来将被改造为创新居住与工作区的Merwe-Vierhavens港口(M4H)之间的边界上。该计划旨在与Bospolder-Tussendijken区典型的马赛克般的建筑体量相协调。在该提案中,建筑场地被划分为较小的实体,确保其在规模、形式和类型学上与邻里中现有的建筑群、街道和广场无缝过渡。
▼项目区位示意图,location of the project©Orange Architects

The Hudsons is located on the border of the Bospolder-Tussendijken district and the raw Merwe-Vierhavens harbour (M4H), which will be redeveloped in the coming years into an innovative living and working area. The plan is designed to harmonize with the mosaic of building volumes that are typical of the Bospolder-Tussendijken district. In the proposal, the development location was cut up into smaller entities that in scale, form and typology ensure a seamless transition to the existing building blocks, streets and squares in the neighbourhood.
▼住宅外观,exterior view© Sebastian van Damme

▼从街角望向住宅区,block exterior viewing from street corner © Sander van Wettum

▼建筑外立面,facade of the building© Sebastian van Damme

▼另一侧建筑立面,facade of another side© Sebastian van Damme

这五个封闭的建筑体块,每个都有自己独特的特点和各自区分的住房规划,都在一楼有庭院,在地下有停车场。所有庭院都有独特的布局,具有更集体或私密的结构。建筑的外表皮采用带有纹理的砖砌细节,从街区到公园一侧变得更加开放,颜色也逐渐改变。建筑融合了20世纪的红砖建筑与轻盈的公园的特点。
▼设计概念示意图,design concept©Orange Architects

Five closed building blocks, each with its own character and highly differentiated housing program, a courtyard on the first floor and a car park underneath. The courtyards all have a unique layout, with a more collective or private structure. The outer skin of the blocks is detailed in profiled brickwork that gradually becomes more open and changes colour from the neighbourhood side to the park on the other side. The blocks blend with both the red brickwork architecture of the 20th-century district and lightness of the park.
▼内部路径通向隔壁屋顶公园与街区,routes through to the neighbouring Roof Park and street© Sebastian van Damme


建筑最终呈现出一个高度整合的设计,有许多内部路径通向隔壁屋顶公园。这五个建筑体块允许各种公寓类型通过联排实现,而不对城市规划的一致性产生影响。设计还确保了屋顶公园的绿色特征可以深入到社区中。
The result is a highly integrated design with plenty of routes through to the neighbouring Roof Park. The five building blocks allow a variety of apartment types to be realized side by side without having an impact on the coherence of the urban plan. The design also ensures that the green character of the Roof Park can penetrate deeply into the neighbourhood.
▼建筑的外表皮采用带有纹理的砖砌细节,the outer skin of the blocks is detailed in profiled brickwork© Sebastian van Damme

▼临街立面细节,detail of the facade facing street© Sebastian van Damme

▼立面砖砌细部,details of the profiled brickwork© Sebastian van Damme


可持续性是The Hudsons一个重要的主题,并已完全融入整体设计概念中。这五个建筑块配备了共用光伏太阳能板、绿色屋顶和各种嵌套设施。公寓装备有全电力家电,不使用化石燃料。在“The Hudsons”中,还融入了数个不同规模的社会可持续性举措。在建筑体量层面,所有住宅都围绕着5个庭院组织,配有私人和公共花园。这些屋顶花园为居民提供了一个熟悉的环境,在这里孩子们可以安全地玩耍,邻居们可以更好地认识彼此。建筑体量之间的无车通道和房屋前的区域被设计为居民的聚会场所和社区内儿童的游乐区。
Sustainability is an important theme for The Hudsons and is fully integrated into the concept. The five building blocks are equipped with collective PV panels, green roofs and various nesting facilities. Since the apartments are fitted with all-electric amenities, there will be no use of fossil fuels. Several socially sustainable aspects are incorporated in The Hudsons, on various scales. At block level, all homes are organized around 5 courtyards, with private and communal gardens. These roof gardens form a familiar environment for residents, where children can play safely and neighbours get to know each other better. The car-free passages in between the blocks and the encroachment zones in front of the houses have been designed as meeting places for residents and as a play area for children from the neighbourhood.
▼街区内部公园,details of the profiled brickwork© Sebastian van Damme

▼住宅内部概览,overview of the residence interior© Sebastian van Damme

计划中的两个商业空间位于社区中心轴线的两侧,是最显著的位置, Bospolder-Tussendijken区的居民由这里进入屋顶公园,在美丽的夏日晚上可以享受到晚霞风光。
Two commercial spaces have been designed in the most prominent places of the plan; on either side of the central axis through the neighbourhood. This is the location where the inhabitants of Bospolder-Tussendijken enter the Roof Park, to enjoy the late afternoon sun on beautiful summer evenings.
▼建筑一角,corner of the building© Sebastian van Damme

▼总平面图,site plan©Orange Architects

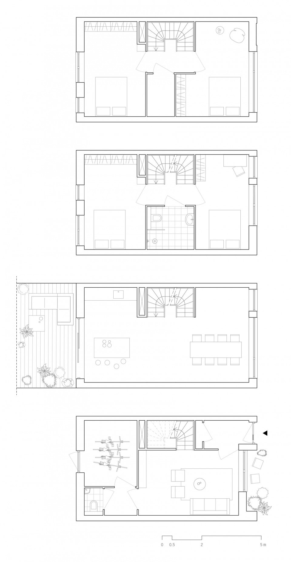
▼平面图,plans©Orange Architects

▼完整立面图,elevation of the entire project©Orange Architects

▼单体立面图,elevations of the building blocks©Orange Architects


Name: The Hudsons
Location: Bospolder-Tussendijken, Rotterdam
Design: 2016
Realisation: 2022
Size: 29.100 m2
Architect: Orange Architects
Team: Jeroen Schipper, Tess Landsman, Paul Kierkels, Julija Osipenko, Angeliki Chantzopoulou, Fung Chow, Lars Fraij, María Gómez Garrido, Rutger Schoenmaker
Assignment: Tender, 1st prize
Client: ERA Contour & BPD Gebiedsontwikkeling
Contractor: ERA Contour
Advisors: Pieters Bouwtechniek, Nieman,
Huygen Installatie Adviseurs, CULD, INBO
Visual: De Beeldenfabriek
Photography: Sebastian van Damme, Sander van Wettum
More:Orange Architects 更多关于他们:Orange Architects on gooood