“市集”the bazaar源自马来语意为市集,位于美食林立的宏济巷。我们的设计愿景是创造一个温暖又不失随意的小餐厅。我们希望这个空间是热闹的,富有生气的,唤起人们对美食和美酒的热爱和欣赏。
Located in the foodie paradise of Hongji Lane, “the bazaar” is a charming little restaurant inspired by its Malay meaning of “marketplace”. Our design goal was to create a warm and welcoming space that was lively and energetic, inspiring people to enjoy good food and drinks.
▼项目概览,overview of the project ©季光

▼入口门头区域,entrance and foyer area©季光

设计的开放式门头,给予空间更多的自由度。模糊了餐厅内与外的界线,并非将其与外面完全隔绝。正是我们所期望区别于正式餐厅的“冷气”,营造一个温暖又随意的空间,让来者以轻松自在的状态走进来,在热闹充满烟火气的氛围和轻盈雅致的空间下享受美食与佳肴。
Our open entrance design blurs the borders between inside and out, creating a relaxed atmosphere that’s perfect for a casual dining experience. We wanted to create a cozy and fun space where guests could relax, unwind, and indulge in some delicious food and drinks.
▼室内概览,interior overall©季光


▼卡座区域,booth area©季光

▼温暖又随意的就餐空间,a cozy and fundinning space©季光

纸灯,亦成为了重要的气氛制造者,不仅渲染了环境,更改变了空间的意义和人们对空间的感知。这些“发光的雕塑”散发出的柔光,在空间挥洒温馨和惬意,为食客们提供了舒适的就餐环境,在身与心的双重放松下,食客们或把盏言欢、或闭目解乏。
One key element of our design is the use of soft lighting and artful paper lanterns by Issey Miyake, which help to create a warm and inviting ambiance. The soft glow of these “glowing sculptures” adds to the comfort and relaxation of the dining experience, creating an intimate setting where guests can chat with friends or simply take a moment to unwind.
▼纸灯的柔光为食客们提供了舒适的就餐环境,softglow of paper lanterns adds to the comfort and relaxation of the dining experience©季光


▼卡座空间概览,overview of the booth space©季光

▼卡座局部,detil of the booth space©季光


the bazaar主打云贵川融合菜,室内设计旨在反映这种混合:墙壁采用了三种不同肌理的艺术涂料;餐桌采用定制石材与木材,不同材质穿插,整个空间更具层次感,使建筑更接近市集的概念。在梧桐树下,热闹非凡的“市集”中,重归人间烟火。
Our menu focuses on fusion cuisine from Yunnan, Guizhou, and Sichuan, so we designed our interior with materials that reflect this mix of cultures. For example, we used three different types of textured paint on the walls, while custom stone and wood tables add depth and character to the space, making it feel more like a bustling market. Overall, “the bazaar” is the perfect spot to enjoy some delicious food and drinks in a warm and welcoming environment – so come grab a table under the Paulownia tree and enjoy the lively atmosphere of our marketplace-inspired restaurant!
▼酒柜与出餐口,wine cellar and food outlet©季光

▼走廊与卫生间细节,detail of the corridor and toilet©季光

▼夜景外观,appearance at night©季光

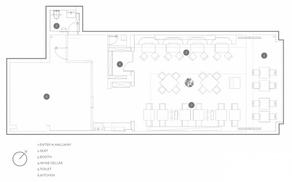
▼平面图,plan© wooom studio

项目名称:the Bazaar
项目类型:餐饮空间设计
设计方:wooom studio
联系邮箱:329136186@qq.com
项目设计:付楚楚
完成年份:2023
设计团队:wooom studio
项目地址:成都
建筑面积:153㎡
摄影版权:季光
材料:艺术涂料、定制石材、木材
More:物禾木木 更多关于他们:wooom studio on gooood