每个场地都有它自身的优势与劣势,并且每个建筑师都试图在设计的过程中充分利用场地的优势,摒弃劣势,该建筑的设计也是如此。房屋的正面朝西,其立面组成了坚固的街景,侧面和后面与临近的建筑相连,使得建筑密度很高。幸运的是房屋的南侧面向道路对面的一片开阔的田野,这是该场地拥有的一项优势。并且设计者认为将房屋好的和坏的一面都展现出来才是最清晰的表现手法。
Every site has its good and bad aspects. And every architect tries to design the building to take advantage of the good things whilst at the same time shielding it from the bad. This house is no exception. On the front the house faces west and a hard streetscape. The side and rear is built up with neighbouring houses close and densely built-up. Fortunately the south boundary of the house faces an adjoining road and a large open field and this is the ‘good’ side. And the design of this house is perhaps the clearest expression of the dichotomy between the good and bad.
▼项目概览,Overall view © Derek Swalwell

▼周边街道环境,Surrounding context © Derek Swalwell

▼房屋正面,Front facade © Derek Swalwell


▼房屋南侧,Southside facade© Derek Swalwell


房屋的结构被混凝土外壳包裹,延续了建筑从前到后逐渐变窄的梯形形状。所有三个“劣势”面都相对坚固,将房屋与西侧的邻居们隔离开来。在“优势”的一面,建筑的设计是完全开放的,居住者能够获得开敞的视野和空间。房屋的顶部有一个倾斜的网状混凝土结构,在玻璃材质的的立面上形成阴影,同时绿色植物从孔洞中显露出来。
A concrete shell wraps around the structure of the house, following the trapezoidal shape of the house which narrows from front to back. All the 3 ‘bad’ sides are relatively solid, shielding the house from the western side and neighbours. On the ‘good’ side, the house is completely open, offering views to the open space. The house is also perforated at the top with a slanting concrete screen, offering shade to the glass façade and at the same time revealing greenery thrusting through the perforations.
▼车库入口,Entrance © Derek Swalwell

▼立面的玻璃材质与绿植,Glass material and green plants © Derek Swalwell

▼入口处摆放在水景中的绿植,The bonsai tree sits amidst a water feature © Derek Swalwell

▼户外泳池,Outdoorc swimming pool© Derek Swalwell

▼位于二层的室外连廊,Outdoor corridor on thefirst floor © Derek Swalwell

▼开敞的室内空间,Open interior space © Derek Swalwell

▼浴室,Bathroom © Derek Swalwell

▼夜览,Night view © Derek Swalwell

与混凝土外壳和筛状结构这种精准的几何形状相对应的是一些列的曲线形露台。露台从汽车门廊的屋顶开始,蜿蜒曲折地延伸到另一边。露台的其他层次也采用了这种手法,在游泳池和室外露台的上方营造出郁郁葱葱的户外绿地。入口处,一颗盆景树被摆放在水景之中,前来的游客都会被惊艳到。
A counterpoint to this precise geometry of the concrete shell and screen, are a series of curvilinear terraces. They start as the roof of the carporch, and sinuously curve its way to the side. Other terraces at different levels take on the theme, to create a lush outdoor green space overhanding the pool and outdoor terraces. At the entrance, a bonsai tree sits amidst a water feature, surprising the visitor behind the concrete wall.
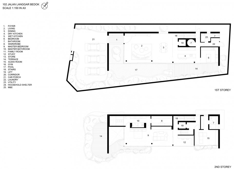
▼首层与二层平面图,ground floor and first floor plan© HYLA Architects

▼阁楼与地下室平面图,attic and basement plan © HYLA Architects

▼立面图,elevations © HYLA Architects

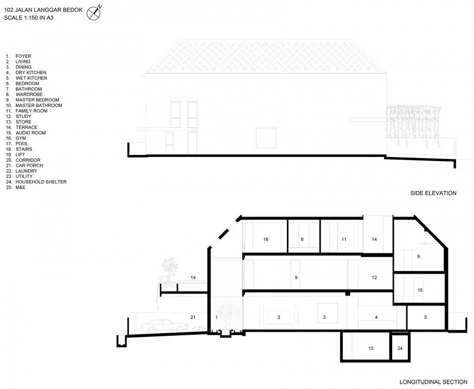
▼立面图与剖面图,elevation and scetion © HYLA Architects

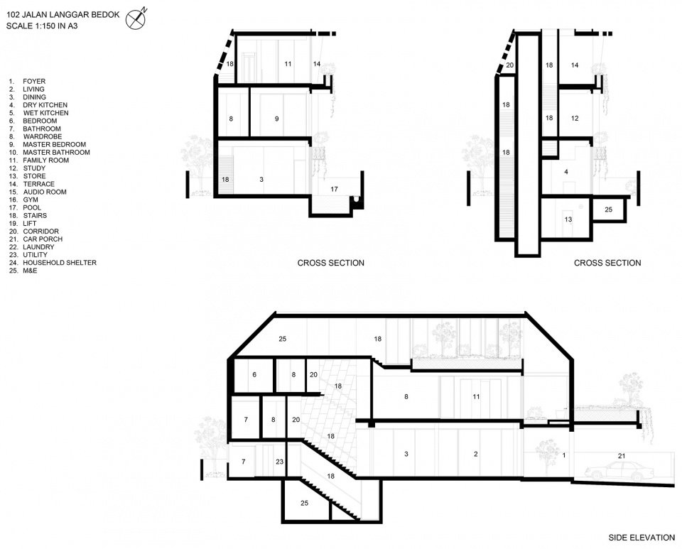
▼剖面图,sections © HYLA Architects

Name: Concrete Yin Yang
Type: 2 storey detached house with basement, attic and swimming pool
Location: Jalan Langgar Bedok, Singapore
Site Area: 478 m2
Gross Floor Area: 527 m2
Status: Completed 2022
Architect: HYLA Architects
Principal Architect: Han Loke Kwang
Assistant Architects: Tiffany Ow, Jacelyn Pau, Thomas Ong
Main Contractor: : Emma Groups Construction Pte Ltd
Structural Engineer: GCE Consulting Engineers
Landscape: Nyee Phoe Flower Garden Pte Ltd
Interior: Graceful Décor Pte Ltd
Photographer: Derek Swalwell
More:Hyla Architects。更多请至:Hyla Architectson gooood