尽管会伴随着大规模的拆迁与废料的产生,但在社会的发展中,建筑活动仍然是不可或缺的。因此,当代建筑思维必须围绕可持续性、材料和资源的回收发展。本项目就是对该理念的一次实践,展馆“容器”中承载的是对建筑可持续发展的“希望”。
In spite of colossal demolition and the debris it creates, building activity continues to remain indispensable. Architectural thinking must evolve around sustainability, recycling materials and resources. The pavilion is a container of hope.
▼项目概览,overall of the project© Niveditaa Gupta

本项目建立在双重叙事的基础上:一方面,它从那些被无情拆除的建筑碎片中重生而来;另一方面它又展现出建筑的诗意,以一种真诚的方式展现出建造建筑的材料与工艺,这些材料和工艺往往隐藏在建筑的外表之下,不为人知。
It is built on dual narratives – one of the debris from ruthless demolition, and another of the poetics of construction – an honest admission of materials and methods of making buildings which often remain hidden under its skin, unknown.
▼展馆完全由回收材料建成,the pavilion is made entirely of recycled materials© Niveditaa Gupta

▼可移动遮阳装置,removable sunshade device© Niveditaa Gupta


▼细部,details© Samira Rathod Design Atelier


展馆的设计灵感源自Kochi当地传统建筑,单坡屋顶直触地面,下方形成了一处巨大的开放空间。这座临时结构没有采用任何混凝土基础,因此显得格外轻盈。展馆拆除后的所有材料都可以进行回收,并在其他场所得到重新的组合与再利用。
The building unfolds as a large space under a singular roof that touches the ground, inspired from the many roofs of Kochi. This temporary structure treads lightly, as it stands without any concrete footings, and may be dismantled to retrieve all of its material that may be reused or re-assembled again elsewhere.
▼单层单坡屋顶的建筑形式,the architectural form of single pitched roof© Niveditaa Gupta

▼入口立面细部,details of the entrance facade© Samira Rathod Design Atelier


▼几乎接触到地面的单坡屋顶,the pitched roof that almost touches the ground© Samira Rathod Design Atelier

▼屋顶与天窗细部,details of the roof and the skylight© Samira Rathod Design Atelier

▼顶视图,top view© Samira Rathod Design Atelier

本项目所采用的材料与建造方法,正是上文所述的建筑理念的体现,它以一种富有美感的姿态,呈现出建筑领域所面临的痛苦、风险和挑战。
It is this material and method, we want to celebrate, and bring forth the pain, risk and challenges that are faced in the manifestation of an architecture, an outcome we deem beautiful.
▼内部空间概览,overall of interior© Niveditaa Gupta

▼室内承重结构,load-bearing structure © Niveditaa Gupta

▼柱子细部,details of the columns© Niveditaa Gupta


▼入口与围护结构细部,details of the entrance and the enclosure© Niveditaa Gupta


▼其他功能布局,different layout© Niveditaa Gupta

▼活动场景,event scenario© Niveditaa Gupta

▼细部,details© Niveditaa Gupta


▼遮阳装置反射着周围的环境,the shading devices reflect the surrounding environment© Samira Rathod Design Atelier

▼搭建过程,construction details© Samira Rathod Design Atelier


▼视频,video© Samira Rathod Design Atelier
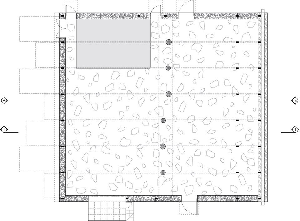
▼平面图,plan© Samira Rathod Design Atelier

▼立面图,elevations© Samira Rathod Design Atelier


▼剖面图,section© Samira Rathod Design Atelier

▼剖面细部,detailed section© Samira Rathod Design Atelier

Project Name:The Container (for Kochi Muziris Biennale 2023)
Office Name:Samira Rathod Design Atelier
Office Website: http://www.srda.co/
Social Media Accounts:@samira_rathod (Instagram)
Contact email:srda@srda.co
Firm Location:Mumbai
Completion Year: 2023
Gross Built Area (m2/ ft2): 5,000 sq. ft.
Project Location: Fort Kochi, Kerala
Program / Use / Building Function: Pavilion
Conceived and designed by Samira Rathod Design Atelier
Lead Architects: Samira Rathod
Lead Architects email:srda@srda.co
Project Team: Fenil Soni, Neethulakshmi, Kiran Keluskar, Devadathan
Structural Design: Studio Struct
Shutter Mechanics: Studio Motionworks
Main Contractor: Galaxy Tenso
Photographer
1.Photo Credits: Sridhar Balasubramaniam
Photographer’s Website:
Photographer’s e-mail: irdhasrii@gmail.com
2.Photo Credits: Niveditaa Gupta
Photographer’s Website: https://niveditaagupta.myportfolio.com/projects
Instagram: https://www.instagram.com/niveditaagupta
Photographer’s e-mail: guptaniveditaa@gmail.com
Materials:
1.Construction debris from nearby sites
2.Waste granite from quarries
3.Coir
4.Fishing nets
5.Geogrid
6.Brick bat
7.Cement
8.Wire mesh
More:Samira Rathod Design Atelier 更多关于他们:Samira Rathod Design Atelieron gooood