BA是一家新法式面包为产品核心的连锁烘焙品牌。
BA is a chain bakery brand with new French bread as its core product
▼项目概览,overview© 日野摄影工作室

本次项目位于重庆龙湖时代E馆,也是BA在山城的首家旗舰店。品牌选址重庆市中心商业街区,希望向更多新顾客提供美味的产品与高品质的消费体验。我们从BA的品牌发展史出发:将BA与法式面包的相遇、融合、发展三个阶段,对应地标相连接。从法国到昆明再到重庆的轨迹,成为本次设计的线索。提出“山山而川 · 浪漫而来”的设计概念:以连绵的山川连接时空,以浪漫主义态度发酵品牌特质。
This project is located in the E pavilion of Chongqing Longfor Paradise Walk, which is also the first flagship store of BA in the mountain city. The brand is located in the downtown commercial district of Chongqing, hoping to pro-vide more new customers with delicious products and high-quality consumption experi-ence. Starting from the brand history of BA in short: Encountering in France, Integrating in Kunming, and Developing in Chongqing. In this case, the track from France to Kun-ming and then to Chongqing becomes the clue of this design. Therefore, the design concept is proposed as “Never Ending romances”, which is an abstraction that romance is coming from thousands of miles away, through time and space.
▼店面,storefront© 日野摄影工作室

▼商店内部,store interior© 日野摄影工作室

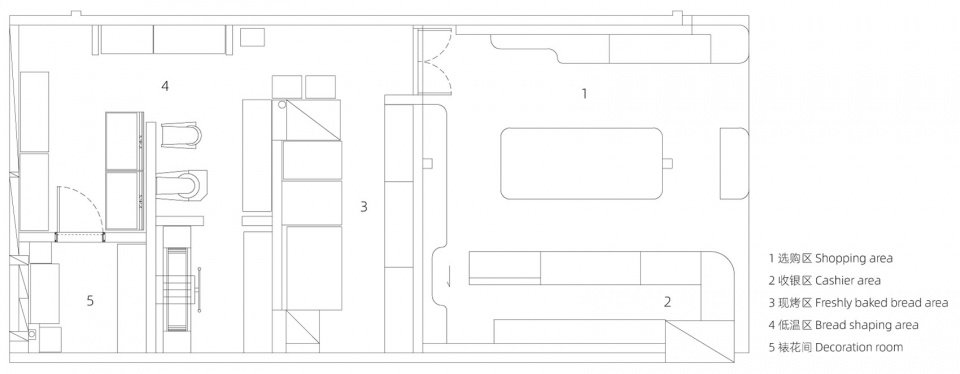
布局:空间整体为环形动线布局,满足本店每日高出货量。并为顾客提供完整的产品选择可能性,让面包与顾客的距离更近。
Layout: the whole space is circular moving line layout, to meet the high daily shipments of our store. In the meantime, it also provides customers with a full range of product options, bringing the bread closer to the customer.
▼环形动线布局,circular moving line layout© 日野摄影工作室

▼货柜细部,detail of the showcase© 日野摄影工作室


造型:室内空间以交汇的穹顶造型为主体,构成一处具有仪式感的空间。店内墙面采用天然石材干挂铺装。让天然的素材与人为的造型设计相融合,把自然的原生魅力与热爱生命的浪漫主义态度融入空间。面包与山川的这次相遇,形成了饱满而又沉浸的五感空间。
Modeling: The interior space is dominated by the intersecting dome shape, forming a space with a sense of ceremony. Apart from that, the wall of the store adopts natural stone with dry-hanging pavement, so that natural materials and artificial modeling de-sign are integrated. In this case, the original charm of nature, and the romanticism comes from the passion for life are also integrated into the space. This encounter between bread and mountains forms a full and immersive space of five senses.
▼交汇的穹顶造型,the intersecting dome shape © 日野摄影工作室


细节:空间中的天然石材成为面包最好的烘托,配合灯光布置让产品更加立体醒目。品牌的视觉像音符一般跳跃于墙面之上,仿佛指挥着从后厨到前场这一场生生不息的面包之歌。
Details: The natural stone in the interior space becomes the best foil for bread, with the lighting arrangement to make the bread more stereoscopic and eye-striking. Additionally, the vision of the brand jumps on the wall like a note, as if commanding an endless song from the kitchen to the front.
▼面包展示架,displayed bread© 日野摄影工作室

▼天然石材成为面包最好的烘托,the natural stone in the interior space becomes the best foil for bread© 日野摄影工作室


如BA主理人所言“这是一场法式浪漫与中国山地文化的融合,演绎优雅不失野性的独特魅力”。
As the director of BA said, “This is a fusion of French romance and Chinese mountain culture, showing the unique charm of elegance and wildness”.
▼平面图,plan© 勉强设计事务所

项目名称:「BA」新法式烘焙 品牌空间设计
项目时间:2022.04—2022.06
项目地点:重庆市渝中区龙湖时代天街E馆1F
项目面积:110㎡
设计方:勉强设计事务所
项目设计:黎俊波 唐文琦 高兴 王慧
空间摄影:日野摄影工作室
Project Name: [BA] New French baking brand space design
Duration: 2022.04-2022.06
Location: 1F in E Pavilion of Longfor Paradise Walk, Yuzhong District, Chongqing
Area: 110㎡
Designer: Whatever Design Office
Project Design: Junbo Li, Wenqi Tang, Xing Gao, Hui Wang
Space photography: RIYE Photography
More:勉强设计事务所(Contact:whateverdesign@yeah.net) 更多关于他们:Whatever Design Office on gooood