垂直住宅坐落于葡萄牙波尔图市,是一栋独栋家庭住宅。住宅所在场地位于城市闹事当中,为了将所有功能囊括在这个狭长的场地之中,设计采取了垂直发展的形式。
Casa Vertical is a single-family house located in the city of Porto, Portugal. The project intends to accommodate the functional program on a narrow plot in the downtown area of the city.
▼项目外观,external view of the project© Ivo Tavares Studio

竖向发展的建筑结构以相同的比尺度和比例与建筑外立面相互对应。设计参考了典型的“波尔图城市住宅”的立面构成,设有垂直的开窗、三段式立面,以及屋顶飞檐。同样地,立面的构成也暗示了经典的建筑结构,例如底座、轴和柱头的划分。统一的表面处理以及立体的立面线条加强了住宅的整体特征。
The verticality of the construction follows the street front, in the same scale and proportion. The house facade refers to the typical “Porto urban house” elevation composition, with its vertical windows, the tripartition of the facade and the cornice top. Likewise, it alludes to the classical structure of composition, with the demarcation of the base, shaft and chapiter. The monolithic character is reinforced by the uniform finish and the stereotomy lines of the facade.
▼三段式的沿街立面,the tripartition of the facade and the cornice top © Ivo Tavares Studio


▼主入口,main entrance© Ivo Tavares Studio


▼仰视檐口,looking up to the cornice top© Ivo Tavares Studio

住宅内部空间以垂直方向组织,以相互交错堆叠的半层形式围绕中央楼梯发展。中央楼梯统一了室内的设计,楼梯扶手如同折纸艺术一般在空间中徐徐展开。
The organization of the various spaces is done vertically and develops around a central staircase with the rooms distributed in half floors. The staircase unifies the intervention, where the guardrail unfolds like an origami piece.
▼入口玄关与底层梯段,
entrance porch and the first floor stairs © Ivo Tavares Studio

▼空间以半层的形式围绕楼梯展开,
the space is spread out around a staircase in the form of a half story© Ivo Tavares Studio

▼二层梯段细部,details of the staircase of the second floor© Ivo Tavares Studio




▼三层梯段与细部,details of the staircase of the third floor© Ivo Tavares Studio


▼四层梯段与大面积的采光窗口,staircase of the fourth floor and large area of windows © Ivo Tavares Studio


▼梯段与走廊,staircase and hallway© Ivo Tavares Studio



▼俯视楼梯,overlooking the staircase© Ivo Tavares Studio

▼仰视楼梯井,looking up to the stairwell© Ivo Tavares Studio

▼底层露台,roof top terrace© Ivo Tavares Studio

社交空间的设计着重于空间中的视觉交互,旨在在一系列连续而自主的房间中创造出平行的空间体验。客厅阳台设有大面积的开窗,为半地下室中的办公空间引入了充足的自然光线。
The social spaces communicate visually, allowing several parallel experiences in contiguous and autonomous rooms. The semi-basement office is illuminated by the large window that crosses the balcony of the living room.
▼二层客厅,living room on the second floor© Ivo Tavares Studio


▼二层餐厅,dining room on the second floor© Ivo Tavares Studio


▼三层厨房,third floor kitchen© Ivo Tavares Studio



▼半地下书房,semi- ground floor office© Ivo Tavares Studio


▼书房细部,details of the office© Ivo Tavares Studio


▼仰视室内阳台,looking up to the interior balcony© Ivo Tavares Studio

▼细部,details© Ivo Tavares Studio


私人空间位于较高的楼层,享有充足的私密性。水泥地面,以及软木质的门、橱柜,以及楼梯护栏,在材质上增强了住宅的统一性。厨房台面与卫生间内则采用了大理石。
The private spaces, located on the higher floors, enjoy a design that guarantees privacy. Raw materials such as cement on all floors and soft wood for doors, cabinets and guardrails reinforce the unity of the residential project. Marble stone is used in kitchen countertops and sanitary installations.
▼卧室,bedroom© Ivo Tavares Studio



▼其他卧室,other bedroom© Ivo Tavares Studio


▼浴室,bathroom© Ivo Tavares Studio


设计保留了原建筑的旧墙体,从半地下办公空间到屋顶,整个建筑的形式仿佛经过了一次巧妙的提炼,为居住者创造出光线充足、多样化的生活空间,让这栋住宅能够以恰当的节奏适应日常生活和家庭活动。
From the office’s semi-basement, where the old walls of the preexisting building were kept, to the rooftop, the architecture is refined, creating living spaces that are varied, well-lit, with adequate rhythms for everyday life and family events.
▼顶视图,top view© Ivo Tavares Studio

▼项目外观夜景,night view of the project© Ivo Tavares Studio


▼一至三层平面图,first to third floor plan© Tsou Arquitectos

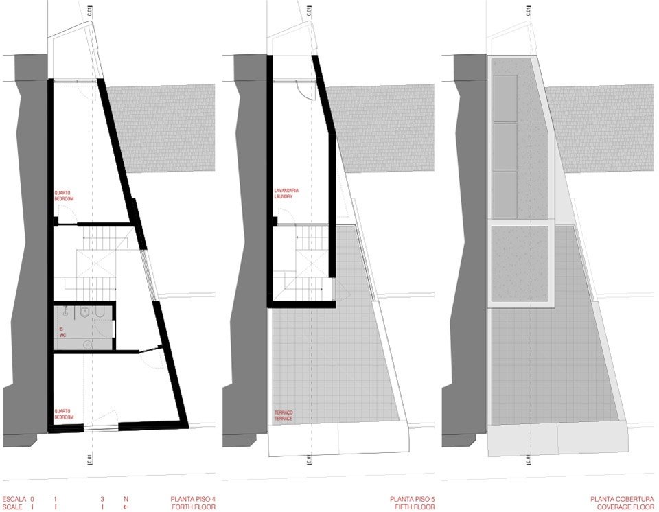
▼四至顶层平面图,fourth to coverage floor plan© Tsou Arquitectos

▼立面图,elevations© Tsou Arquitectos


▼剖面图,section© Tsou Arquitectos

Project name: Casa Vertical
Architecture Office: Tsou Arquitectos
Main Architect: Tiago Tsou
Website: http://www.tsouarquitectos.com/
E-mail: info@tsouarquitectos.com
Facebook: http://www.facebook.com/Tsouarquitectos/
Instagram: http://www.instagram.com/tiago_tsou/
Location: Rua Cunha Júnior, Porto Portugal
Year of conclusion : 2021
Total area: 230 m²
Architectural photographer: Ivo Tavares Studio
Website : http://www.ivotavares.net/
Facebook: http://www.facebook.com/ivotavaresstudio/
Instagram:http://www.instagram.com/ivotavaresstudio/
More:Tsou Arquitectos。更多关于他们,请至:Tsou Arquitectos on gooood