项目背景
The project’s context
国家重型汽车工程技术研究中心,位于济南市高新区的中心地带,北临汉峪金谷,紧靠舜奥公园,坐拥便利的交通和良好的景观。项目用地面积22861平方米,总建筑面积为145516.21平方米,塔楼幕墙高度:96m,结构顶板高度89.85米。
The National Heavy Vehicle Engineering and Technology Research Center is located in the center of Jinan High-tech Zone, adjacent to Hanyu Golden Valley in the north, and close to Shunao Park, with convenient transportation and good landscape. The project covers an area of 22861 square meters, with a total building area of 145516.21 square meters, a tower curtain wall height of 96m, and a structural roof height of 89.85 meters.
▼项目概览,Overall view © 方健

设计理念
Design ideas
总部办公强调效率与体验相结合,在我们之前参与设计汉屿金谷的高楼林立的周边环境中,通过极简的悬浮体量与丰富的内部空间的强烈对比,形成一定的标识性,让人过目不忘。我们希望通过塑造有活力的、更高品质的人性化办公空间,激发重汽的创新之心,相信未来会有更多的创意在这里产生。
The headquarters office emphasizes the combination of efficiency and experience. In the surrounding environment where we participated in the design of the high-rise buildings in Hanyu Golden Valley before, through the strong contrast between the extremely simple suspended volume and the rich internal space, it forms a certain mark, which is unforgettable. We hope to stimulate the innovation of CNHTC by creating a more dynamic and high-quality humanized office space, and believe that there will be more creativity here in the future.
▼建筑外观,Exterior view© 方健

▼研究中心与周边建筑,TheResearch Center andthe surrounding buildings© 方健

总体布局
General Layout
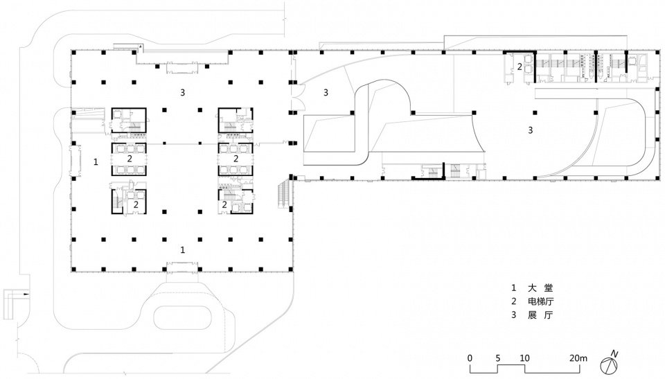
项目基地呈东西向狭长“L”型,西低东高,项目基地呈东西向狭长“L”型,在功能布局上,将办公塔楼布置于西北角,突出主要形象,企业展厅沿东西向水平布置,拓宽展示面。建筑在外观上整体呈极简的几何形体关系,办公塔楼如同纯粹的白色立方悬浮于裙房之上,与一期建筑形成一种新旧对话,体现中国重汽高效的企业文化。水平裙房首层为企业展厅,其上为会议中心及食堂,通过悬挑的体量将东侧地面空间释放给园区及城市,形成人性化的灰空间。
▼分析图-形体生成,Analysis – process©CCDI 21设计工作室

▼街道层人视,Perspective from the street level© 方健

The project base is a long and narrow “L” shape from east to west. In terms of functional layout, the office tower is located in the Northwest Angle to highlight the main image. The enterprise exhibition hall is horizontally arranged along the east-west direction to broaden the display area. The overall appearance of the building presents a minimalist geometric relationship, with the office tower floating like a pure white cube above the podium, forming a dialogue between the old and new with the first phase of the building, reflecting the efficient corporate culture of China National Heavy Duty Truck Corporation. The first floor of the horizontal podium is the enterprise exhibition hall, and above it is the conference center and cafeteria. The suspended volume releases the ground space on the east side to the park and the city, forming a humanized gray space.
▼入口雨棚,Entrance canopy© 方健


立面控制
General Layout
建筑以绿建二星为标准,采用超白玻三银Low-E玻璃。外部极简的精准建造,以及隐藏式开启扇的可呼吸式幕墙,既保证了立面的干净完整,同时解决了办公空间自然排烟和自然通风的问题。塔楼与裙房采用两种尺度和方向的竖向三角杆件,创造一种独特的韵律。三角形的阳极氧化板装饰线条形成遮阳,环保节能。而且阳极氧化铝板的材料应用,强调建筑稳定、有力的气质,入口雨棚采用布纹不锈钢,强调金属质感,进一步提升整体的视觉效果。在泛光设计上,隐藏式灯槽使建筑立面更为纯粹,通过洗墙的泛光形式,见光不见灯,灯光投射到三角斜面上,营造一种高级内敛的灯光效果。
The building is based on the standard of Green Building Two Stars and adopts ultra white glass with three silver Low-E glass. The minimalist and precise construction of the exterior, as well as the breathable curtain wall with concealed opening fans, not only ensure the cleanliness and integrity of the facade, but also solve the problems of natural smoke exhaust and ventilation in office spaces. The tower and podium adopt two vertical triangular members of different scales and directions, creating a unique rhythm. The triangular anodized board decorative lines form a sunshade, which is environmentally friendly and energy-saving. Moreover, the material application of anodized aluminum plate emphasizes the stable and powerful temperament of the building, and the entrance canopy adopts cloth patterned stainless steel, emphasizing the metallic texture, further enhancing the overall visual effect. In terms of floodlighting design, the hidden light groove makes the building facade more pure. Through the floodlighting form of washing the wall, the light is cast onto the triangular slope, creating a high-level and introverted lighting effect.
▼建筑立面,Building facade© 方健

▼项目采用超白玻三银Low-E玻璃,The building adopts ultra white glass with three silver Low-E glass© 方健

▼立面近景,Facade close-up view© 方健


内部空间
Inner space
简洁的外观内具有丰富的内核。建筑内部通过多层次的共享空间,营造效率与体验并重的氛围,激发员工的创造力。
The concise appearance has a rich kernel inside. The interior of the building creates an atmosphere that emphasizes both efficiency and experience through multi-level shared spaces, stimulating employees’ creativity.
▼天井,Patio© 方健


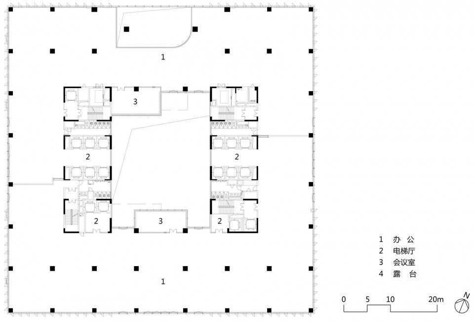
服务空间与被服务空间界面完整清晰。方形塔楼内创造一个六至十八层竖向通高的天井,在物理环境上,增加了采光,并强化自然通风,提高了舒适度,减少过渡季节的能耗。视觉上,贯穿的入口室内中庭与室外的内天井形成了戏剧化的框景效果。围绕着天井在东西两侧布置核心筒,核心筒电梯厅正对天井,打破一般办公楼封闭的电梯厅效果,提升员工出入电梯厅的舒适感;塔楼卫生间均为明卫,细条纹的U玻保证了私密性,更满足了采光的需要。
The interface between the service space and the serviced space is complete and clear. The square tower creates a six to eighteen story vertical raised courtyard, which increases lighting and enhances natural ventilation in the physical environment, improves comfort, and reduces energy consumption during the transition season. The core tube is arranged on both sides of the east and west around the courtyard, with the elevator hall facing the courtyard, breaking the closed effect of the elevator hall in general office buildings and improving the comfort of employees entering and exiting the elevator hall. The bathrooms in the tower are all Ming Wei, and the fine striped U-glass ensures privacy and better meets the needs of lighting.
▼大堂,Lobby© 方健

梭形的细密金属百叶给中央庭院带来了细腻的光影变化,结合中庭的井格形天窗,经过过滤的阳光洒入中庭,将建筑变成了一个捕光的机器。内天井南北两侧如百宝阁一般错动的会议室体量,形成了丰富的具有体验感的庭院空间,错位的露台让办公人员能够就近到达邻近的花园平台接触自然绿化,呼吸新鲜空气、沐浴冬日暖阳。
The shuttle shaped dense metal blinds bring delicate light and shadow changes to the central courtyard, combined with the well shaped skylights in the atrium, filtered sunlight is poured into the atrium, turning the building into a light harvesting machine. The staggered size of the conference rooms on both sides of the inner courtyard, like the Baibao Pavilion, creates a rich and experiential courtyard space. The misaligned terrace allows office staff to reach the nearby garden platform to access natural greenery, breathe fresh air, and bathe in the warm winter sun.
▼中庭,Atrium© 方健

▼中庭平台,Atrium terrace© 方健

▼北侧边庭,Northside courtyard© 方健

塔楼在面向主干道的北侧设置了九至十八层的通高边庭,象征企业总部与城市对话的窗口,弧形错位的边庭挑空空间,寓意着重型汽车中轴承齿轮的相互咬接互动关系;多种活化办公空间,进一步丰富内部办公的体验。 边庭立面采用拉索玻璃幕墙,超过一千平的光电玻璃,作为城市舞台给银灰色的纯净悬浮建筑体量带来了一抹未来的科技感。
The tower has a nine to eighteen story high side courtyard facing the north side of the main road, symbolizing the dialogue window between the enterprise headquarters and the city. Diverse public spaces further enrich the experience of internal office work. The fa ç ade of the side courtyard adopts a cable glass curtain wall, with over a thousand square meters of photoelectric glass. As a city stage, it brings a futuristic sense of technology to the silver gray pure floating building volume.
▼建筑外观,Exterior view© 方健

▼傍晚的立面,Facade view in the evening© 方健

▼总平面图,Site plan©CCDI 21设计工作室

▼首层平面,Plan 1F©CCDI 21设计工作室

▼十二层平面,Plan 12F©CCDI 21设计工作室

▼1-1剖面,Section 1-1©CCDI 21设计工作室

▼2-2剖面,Section2-2©CCDI 21设计工作室

项目名称: 国家重型汽车工程技术研究中心
建筑事务所/公司/机构/单位: CCDI 21设计工作室
事务所/公司/机构/单位网站: http://www.ccdi.com.cn/
项目完成年份:2022
建筑面积:1445516.21㎡
项目地址: 山东济南高新区舜华南路东侧、龙奥北路南侧
主创建筑师: 王浪
主创建筑师邮箱: wang.lang@ccdi.com.cn
摄影师: 方健 思康建筑摄影
摄影师邮箱: sk@fangphoto.com
项目参与者
设计团队: 王浪、黎宇明、金艾、聂昌宁、李瑶、陈虎、吴昊、曹宇胜、王韵菁、付凌峰、郝紫葶
委托方:中国重汽集团济南动力有限公司
结构设计: 赵勇、龚成、陆祖法、陆挺、黄伟
景观设计: 李静、邓洁丽、马婷婷、陈诚、张森俊、王强
机电工程师:朱永斌、焦培荣、孙俊鸿、杨德志、张李智、胡琼芳、农情宇、王励、刘康荣、杨纪超、吴干文、冯倩倩
施工方: 中国建筑第八工程局有限公司
Project name: National Heavy Vehicle Engineering Technology Research Center
Project type: Office
Design: CCDI GROUP 21 Design Studio
Website: http://www.ccdi.com.cn/
Design year:2020
Completion Year:2022
Leader designer & Team:Architects:Lang Wang;Yuming Li;Ai Jin;Changning Nie;Yao Li;Hu Chen;Hao Wu;Yusheng Cao;Yunjing Wang;Lingfeng Fu;Ziting Hao. Structural Engineers:Yong Zhao;Cheng Gong;Zufa Lu;Ting Lu;Wei Lu.Landscape Designers:Jing Li;Jieli Deng;Tingting Ma;Cheng Chen;Senjun Zhang;Qiang Wang.MEP Engineers:Yongbin Zhu;Peirong Jiao;Junhong Sun;Dezhi Yang;Lizhi Zhang;Qiongfang Hu;Qingyu Nong;Li Wang;Kangrong Liu;Jichao Yang;Ganwen Wu;Qianqian Feng.
Project location:Shunhua South Road, Licheng District
Gross built area:1445516.21 ㎡
Photo credit: Jian Fang
Clients:SINOTRUK Jinan Power Co., Ltd
Materials:Anodized aluminum plate;Three silver hollow Low-e glass;Photoelectric glass
More:CCDI 21设计工作室