项目概况|Project Overview
东莞水乡功能区是广东省级重点发展片区。在未来规划中,水乡功能区被定位为高质量统筹发展示范区域。本案是水乡功能区管理机构的先行形象重点建筑。为了能完美达成设计目标,业主将所有设计项目以总包形式委托给团队,在“限价设计”的要求下,达成建筑、室内、景观一体的“交钥匙”工程。
The Dongguan Shuixiang Area is a crucial development area at the provincial level in Guangdong. The Shuixiang Area is a model area for high-quality integrated development in future planning. This project is the first image-critical building for the Water Township Functional District management organization. To achieve the design goal perfectly, the owner entrusted all the design projects to the team in turnkey, under the requirement of “limited price design,” to achieve a “turnkey” project of architecture, interior, and landscape.
▼项目概览,Overall view © 罗汉工作室

业主对项目期望很高,他想建筑既符合岭南气候特点,又不落传统俗套,能展示出现代建筑的活力,体现出水乡片区新气象。
The owner had high expectations for the project. He requests the building to meet the characteristics of the Lingnan climate without falling into traditional clichés and to show modern architecture’s vitality and reflect the Shuixiang area’s new atmosphere.
▼项目主入口,Project Main Entrance© 罗汉工作室

园区规划|Overall Planning
水乡科创产业园整体项目占地约为53亩,在3.5的容积率下,规划空间并不宽裕。已建成的一期,都是不超过4层的低层建筑,占用了将近一半的场地,导致后续的建设用地捉襟见肘。所以,当业主委托我们做二期建筑单体研究的时候,我们首先想到要从园区的整体规划入手。
The whole project of Shuixiang Science and Innovation Industrial Park covers an area of about 35333 ㎡, and with a plot ratio of 3.5, the planning space is not generous. Moreover, the completed Phase I, which are low-rise buildings with no more than four stories, occupy nearly half of the site, resulting in a stretched land for subsequent construction. Therefore, when the owner commissioned us to do a single building study for Phase II, we first thought of starting with the overall planning of the park.
▼场地现状,Site Status© 森磊国际

我们坚持单体建筑是整体园区的一个部分,它不是独立存在的,只有规划好项目整体合理性,才是确定本期单体的最佳方式。于是我们重新确定了园区的主入口位置、重新规划车行流线与人行流线、重新拟定车辆停放方案、重新定义园区的景观核心。这样从整体入手,理性有序的工作方式,有力地支撑了二期单体如此设计的合理性,增强了业主持续开发的信心。这一举措也成功让我们获得了本案的设计权。
We insisted that the monolithic building is a part of the overall park, it does not exist independently, and the best way to determine the monolithic of this phase is only to plan the general rationality of the project. So we redefined the location of the park’s main entrance, re-planned the vehicular and pedestrian flow lines, redrafted the vehicle parking scheme, and redefined the landscape core of the park. This rational and orderly way of working holistically supported the rationality of such a design for the Phase II monolith. It enhanced the owner’s confidence in the continued development. This initiative also successfully allowed us to obtain the design rights for this case.
▼项目分期,Project Phasing© 森磊国际

水乡科创二期工程作为园区主要的配套,要求建筑能满足日常使用多种功能的复合需求。这里包括了能同时满足300人参与的大型多功能厅、服务园区的预约式会议中心、配套食堂、餐饮、行政办公中心。
As the main support of the park, phase II of the Shuixiang Science and Technology Project requires the building to meet the compound demand of multiple functions for daily use. This includes a large multi-function hall that can meet 300 participants simultaneously, a reservation-based conference center serving the park, a supporting cafeteria, catering, an administrative office center.
▼功能分析,Functional Analysis© 森磊国际

我们细致分析了每项功能的使用要求,疏散要求,并最大程度合理安排其交通位置后,在竖向上将每项功能叠加起来。做到层层专属功能互不干扰,使用效率最高。例如,使用人员多、疏散压力大的多功能厅设计在首层,使用起来非常高效。随着楼层的增加,西向河道景观的视线条件也逐步提升,所以,将会议与接待的专区设置在八层,以便人员能欣赏到最美的江景。做到把最好的景观提供给最大使用量的人群。
After carefully analyzing each function’s usage and evacuation requirements and arranging its traffic location to the maximum extent reasonable, we superimpose each function in the vertical direction. The highest efficiency is used to make the layer-exclusive functions not interfere with each other. For example, the multi-function hall with many users and high evacuation pressure is designed on the first floor, which is very efficient. As the floor increases, the sight conditions of the west-facing river view are gradually improved, so the particular area for meeting and reception is set on the eighth floor so that personnel can enjoy the best river view. It is done to provide the best view to the people who use it the most.
▼项目外观,Project Appearance© 罗汉工作室

立面细节|Elevation details
业主偏向于简洁有力的现代建筑。所以我们在设计本案造型的时候,力求以雕塑感带出整体效果,用大的、实的墙面与虚的、轻的玻璃幕碰撞产生强烈的反差。沉重的混凝土被轻盈的玻璃体提升至空中;出挑阳台带出的钝角折线,层层交错,灵感来源于水波的滚动。设计让混凝土这样厚重的材料如丝带般在空中飘舞,伸向远方……最终形成一个具有现代艺术特质,又蕴含水乡地域特色的体量。
The proprietor prefers clean and robust modern architecture. Therefore, when we designed the shape of this case, we strived to bring out the overall effect with a sculptural sense, using the large, solid walls to collide with the imaginary, light glass curtain to produce a strong contrast. The soft glass body lifts the heavy concrete into the air; the blunt folds brought out by the protruding balcony are interlaced in layers, inspired by the rolling of water waves. The design allows such heavy material as concrete to float in the air like a ribbon, reaching far into the distance. …… finally forms a volume with modern artistic qualities but also contains the regional characteristics of the Shuixiang area.
▼外观近景,Facade close-up view© 罗汉工作室

建筑形体能清晰被从水乡大道来往车辆辨识出来,撑起作为水乡功能区的门户标识作用。
The building form can be recognized by the traffic coming and going from Shuixiang Avenue, and it serves as a gateway to the Shuixiang functional area.
▼首层人视,Perspective from the ground level© 罗汉工作室

项目的西面是东江的支流,江面宽阔,视野良好。但岭南地区午后的西晒又是让人难熬的时段。在本案的设计中,为了让使用者既能享受西面最好的景观,又能不受日晒之苦,采取了主、被动遮阳的复合措施。
To the west of the project is a tributary of the Dongjiang River, with a wide river and a good view. However, the afternoon sun in Lingnan is a difficult time for people. Therefore, in the design of this case, to allow users to enjoy the best view to the west while not suffering from the sun, a composite measure of active and passive sun shading is adopted.
▼阳台剖透视图,Balcony section perspective view© 森磊国际

▼阳台节点,Balcony node© 森磊国际

结合造型所需要的折板形成层间的遮蔽主体,再配合窗上横向百叶,和局部竖向木格栅,构成了建筑物主要的立面。玻璃幕墙及其杆件选择了颜色很浅的高级灰,有效避免了热量的吸收。西向是主要的景观面,也是西晒的重灾区。所以,向西的每一层都设计了出挑很大、各层宽窄不同的露台,一方面为欣赏落日提供了最佳的位置,另一方面形成的深远阴影为西侧的外窗提供了有效的遮蔽。
Combined with the folding panels required for the modeling to form the main body of shading between floors, the horizontal louvers on the windows, and the local vertical wooden grilles, the main façade of the building is formed. The glass curtain wall and its poles are chosen in a very light color of high-grade gray, effectively avoiding heat absorption. The west-facing facade is the main view surface and the hardest hit by the west sun. Therefore, each west-facing floor is designed with a large protruding balcony with different widths on each floor, which provides the best location to enjoy the sunset on the one hand, and the deep shadows formed on the other hand provide effective shading for the exterior windows on the west side.
▼阳台,Balcony© 罗汉工作室

▼立面细节实拍,Elevation detail real shot© 罗汉工作室

▼立面细节,Facade detailed view© 罗汉工作室


下午强烈的西晒被格栅遮挡,形成斑驳的光影,为内部空间带来一片阴凉。景观设计最多的想法是出现在各层宽窄变化的阳台、露台上。本来想打造一个丰富的“巴比伦空中花园”,受限于经费的制约,只好放弃了阳台花园的实施,是本案很大的遗憾。
The intense afternoon western sun is shaded by the grille, creating dappled light and shadows that bring shade to the interior spaces. Most ideas for the landscape design are found in the balconies and terraces that vary in width from floor to floor. Initially, we wanted to create a rich “Babylonian sky garden.” Still, due to financial constraints, we had to give up the implementation of the balcony garden, which is a great regret in this case.
▼阳台格栅,Grille© 罗汉工作室

▼阳台实景,Balcony exterior view© 罗汉工作室

结构体系|Structural System
项目的使用功能丰富,空间结构复杂。其中比较困难的是首层多功能厅的结构设计。业主要求可同时容纳300人参与会议的无柱大厅,而它的设置在首层,是结构的重要部位。要实现无柱大空间就需要抽去4根柱子,普通的梁抬柱转换方式会导致抬梁很高,占用过多竖向空间,再考虑吸音吊顶厚度,则多功能厅层高就会显得压抑,不但导致室内效果不佳,同时抬梁的配筋量大,比较费钱。在“限价设计”的要求下,我们要选择既节约费用,又能达到空间效果美观的结构方案。经过与总工的多次沟通,我们大胆地采用了斜柱方案,将首层被抽掉的4根柱子,做成斜柱,调整好倾斜的角度,竖向跨越2层,有效地解决了首层的大空间问题,且不影响其他层的使用。
The project has rich usage functions and a complex spatial structure. One of the more difficult parts is the structural design of the multi-function hall on the first floor. The owner required a column-free hall that could accommodate 300 people to participate in meetings simultaneously. It was set on the first floor, an essential structure part. To realize the column-free space, four columns need to be removed, and the ordinary way of converting beams to columns will lead to remarkably high beams, taking up too much vertical space, and considering the thickness of the acoustic ceiling, the floor height of the multi-function hall will look depressing, which will not only lead to poor indoor effect but also the amount of reinforcement of the beams is large and costly. Under the “limited price design requirement,” we must choose the structural plan to save cost and achieve a beautiful space effect. After many times of communication with the chief engineer, we boldly adopted the inclined column scheme, which made the four columns on the first floor into inclined columns and adjusted the inclination angle to span two feet vertically, effectively solving the problem of ample space on the first floor and not affecting the use of other floors.
▼结构模型图,Structure model© 森磊国际

▼二三层施工现场,Construction site of 2nd and 3rd floors© 森磊国际

室内空间|Interior Space
室内设计延续建筑设计的理念和色调。采取浅色的新中式风格。入口大堂设计稳重大气;餐厅空间轻松温馨;办公区域现代时尚;党政会议室严肃端庄。
The interior design continues the concept and color palette of the architectural design. It adopts a light-colored neo-Chinese style. The entrance lobby is designed with a stable atmosphere; the restaurant space is relaxed and warm; the office area is modern and fashionable; the party and government meeting room is solemn and dignified.
▼首层报告厅,First-floor lecture hall© 罗汉工作室

▼办公室内,Office Internal© 罗汉工作室

结语|Conclusion
水乡科创中心作为一个以“建筑师负责制”指导下的设计总承包实践项目,从设计到施工的各个阶段,团队都在深度参与。跳出了国内建筑师只关心主体建筑设计内容的狭隘认识,将“建筑师”的龙头主导作用发挥到了每个子项工程当中,很好地把控了设计效果,又管控了工程的投入。
As a design general contracting practice project under the guidance of an “architect responsibility system,” the team is deeply involved in all stages, from design to construction of the Shuixiang Science and Technology Center. It is out of the narrow understanding that domestic architects only care about the main architectural design content, and the leading role of “architect” is played in each sub-project, which controls the design effect well and the project’s investment.
▼夜间外观,Exterior view at night© 罗汉工作室

▼夜间鸟瞰,Aerial view at night© 罗汉工作室

这种“建筑师负责制”坚持以项目落成效果作为第一准则的实践,为我们积累很多有效的“建造”经验,也将成为团队日后所有落地项目的实施方式。
This practice of “architect in charge,” which insists on the project completion effect as the first criterion, has accumulated much practical “construction” experience for us and will become the implementation method for all future team projects.
▼施工现场,Construction site© 森磊国际

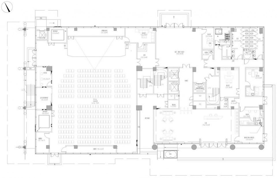
▼一层平面图,Plan 1F© 森磊国际

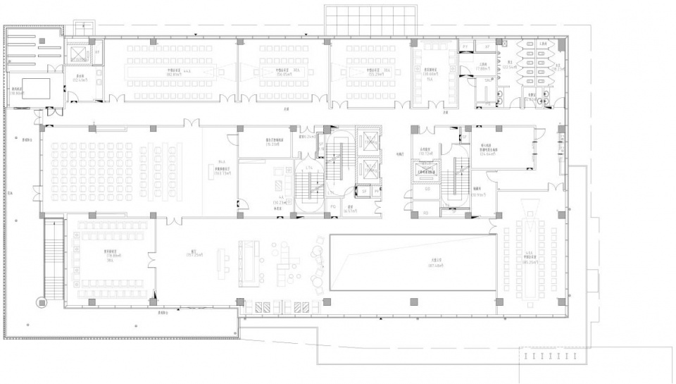
▼二层平面图,Plan 2F© 森磊国际

▼三层平面图,Plan 3F© 森磊国际

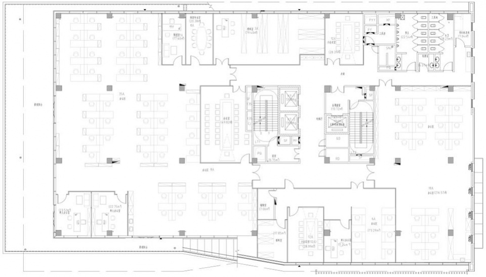
▼办公层平面图,Plan office© 森磊国际

▼剖面图,Section© 森磊国际

项目名称:东莞水乡科创中心5号科研楼
项目地点:东莞市水乡功能区
建筑类型:办公、生产
用地面积:35154.66m²
总建筑面积:153697.98m²
二期建筑面积:12518.4㎡
容积率:3.5
设计单位:森磊国际
设计团队:
主创建筑师:熊炜
设计总包管理:熊炜、曹珂
建筑方案设计:郑欣雨、朱传璟、雷玮婷、刘婷
建筑施工图:金建平、伍俊明、颜海青、卢柏承、张宏伟
结构:霍勇贤、吴嵬、孙佳为
电气:程祝安、王红爽、罗艳华、杨静、方培培
给排水:王灵莉、张炳师、王心可、唐倩倩
智能化:程祝安、朱炳坤、谭建涛
暖通:李波、吴茜、冯梦楠
景观:徐天乐、 李昱、练庆伟、 吴燕成 、吴浩武
开发业主:东莞水乡置业管理有限公司
摄影:罗汉工作室
Project Name: Dongguan Shuixiang Science and Technology Phase II
Project Location: Dongguan Shuixiang Functional Area
Building type: Office, Produce
Land area: 35154.66m²
Total construction area: 153697.98m²
Phase II building area: 12518.4m²
Volume ratio: 3.5
Design Unit: Senlei International
Design Team:
Lead architect: Xiong Wei
Design General Contract Management: Xiong Wei, Cao Ke
Architectural scheme design: Zheng Xinyu, Zhu Chuanjing, Lei Weiting, Liu Ting
Architectural drawings: Jin Jianping, Wu Junming, Yan Haiqing, Lu Baicheng, Zhang Hongwei
Structure: Huo Yongxian, Wu Wei, Sun Jiawei
Electrical: Cheng Zhu’an, Wang Hongxiang, Luo Yanhua, Yang Jing, Fang Peipei
Water supply and drainage: Wang Lingli, Zhang Bingshi, Wang Xinke, Tang Qianqian
Intelligent: Cheng Zhu’an, Zhu Bingkun, Tan Jiantao
HVAC: Li Bo, Wu Xi, Feng Mengnan
Landscape: Xu Tianle, Li Yu, Lian Qingwei, Wu Yancheng, Wu Haowu
Development Owner: Dongguan Water Township Property Management Co.
Photography: Luohan Studio
More:森磊国际