场地不同层次的叠加,将内部空间的丰富性、景观性以平面的方式构成于外立面。建筑入口前移得到的过渡空间,消解了入口动线与街道人群动线的冲突。场地内的功能布局以原结构为基础,保留建筑力量感的同时强调了零售空间的公共性。
By superimposing several juxtaposed layers of the site, Some Thoughts amplified rich contents and urban social realm within Dikka Bakery’s interior into the exterior in complanate forms. To generate a transitional space, entrance of the building was created by extending a part of the building directly into street, eliminating the conflicting circulation between streets and patrons. Engaging with the architectural force embedded in the project, the new functions were planned based on the original structure, addressing the notion that retail space is for public use.
▼店铺外观,Exterior view© SFAP

▼入口,Entrance© SFAP

▼二层空间,Upper floor© SFAP

在本案中,零售空间的公共性与包容性是通过光线与建筑尺度之间的相关性来赋予的。建筑二层楼板的切割在空间中留出了一个巨大的自然采光空间,顶部软膜通过零部件建立的秩序来接近一种丰富且理性的状态。柔和的光线穿过顶棚结构,空间犹如一个滤光器,大众在建筑内将体验到的是一种松弛的状态。
▼设计示意,Dikka Bakery – diagram©Some Thoughts

The openness and inclusiveness of Dikka Bakery Store are endowed through the correlation between lights and its architectural scale. To introduce natural lights, existing floor slabs on the second floor were cut open as a massing strategy. The soft light flows along the shelter-like structure, enabling the space to work as a light filter. Traversing through the two-story building with design that speaks to ample natural elements, the visitors’ s experience completes at a rather relaxing and chill ambiance.
▼首层展示区和休息区,Display area and rest area on the ground floor© SFAP

▼首层电动屏墙,Electronic screen© SFAP

▼楼梯,Staircase© SFAP

▼首层屏墙和座位细节,Detailed view© SFAP


▼展示区和柜体细节,Display and counter details© SFAP


设计师以基础的逻辑为店铺打造了合理又多样化的陈列设置。扫码支付机器以灵活的方式嵌入台面,使台面整洁的同时不失效率。一层与二层商品的传递工作用电梯代替,美观的同时避开了店员与客群在动线的冲突。
A set of reasonable and diverse display shelves customized for the store has been employed based on formal logic. The scanning payment machine is inserted into the table, proposing flexible usage and visual appreciation under effective conditions. The elevators, positioned across the first floor to the upstairs, deliver products and form the visual focal point of the space, as well as avoiding circulatory conflicts between staff and customers.
▼通高空间,Full-height space© SFAP

▼楼梯间,Stairs


▼二层视角,View from the upper floor© SFAP

▼屏幕和支付区细节,Screen and checkout area details© SFAP


▼收银台和传递电梯,Check out counter and transmission elevator© SFAP


▼二层商品陈列区,Display area© SFAP

▼陈列区和柜台,Display area and checkout counter© SFAP

▼室内细节,Interior details© SFAP


在这个狭小的空间内台下设置了购物篮双向收、取的柜体,将店员后勤工作与顾客动线在动态上做出分流。在本案中,我们设计的灯具、电梯、POS机嵌入盒以及双向收纳柜都是在思考如何将“标准化”向“体验性”“趣味性”做出转变,并达成同样的效率。
In this narrow space, a cabinet with two-way shopping baskets is set up under the platform, which dynamically divides logistics work of store staff from the customers’ movement. Extra thoughts involved in the project includes the lighting fixtures, elevators, inserted POS boxes, and two-way storage cabinets, our strategy amounted to transforming “standardization” to “experiential” and “playfulness”, while achieves the same functioning efficiency.
▼商品陈列区,Display area© SFAP

▼室内装置元素细节,Installation details© SFAP




对自然的理解使Dikka Bakery的产品避开了常规意义的烘焙,充满“零食感”的产品适用于更多场景与时段。正因如此,我们选择“有机”的材料携带着自然的属性,辅助产品去呈现可感知的品牌调性。
Dikka’s understanding towards nature allow the production for their unconventional bakery, suitable for divergent occasion and needs. The concept and material section are inspired in part by their snack-like bakery, as in a palette of organic materials with inherited natural attributes were employed to celebrate the brand’s value in a more perceptive manner.
▼屏幕和灯具细节,Screen and lighting fixtures© SFAP

▼楼梯栏杆细节,Handrail detailed view© SFAP

▼室内装置元素细节,Installation details© SFAP


▼门店立面,Store front view© SFAP

▼轴测分解图,Axon diagram©Some Thoughts

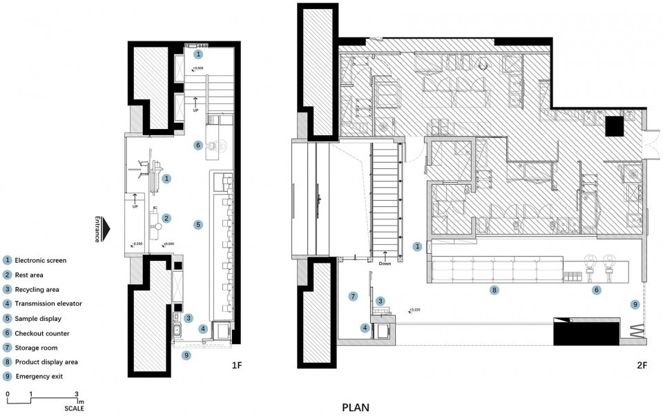
▼平面图,Floor plan©Some Thoughts

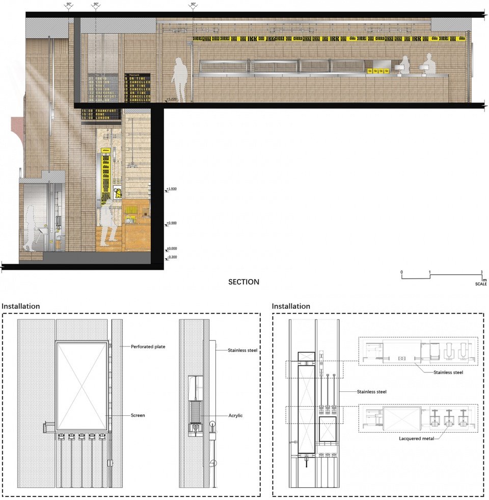
▼剖面图1,Section 1©Some Thoughts

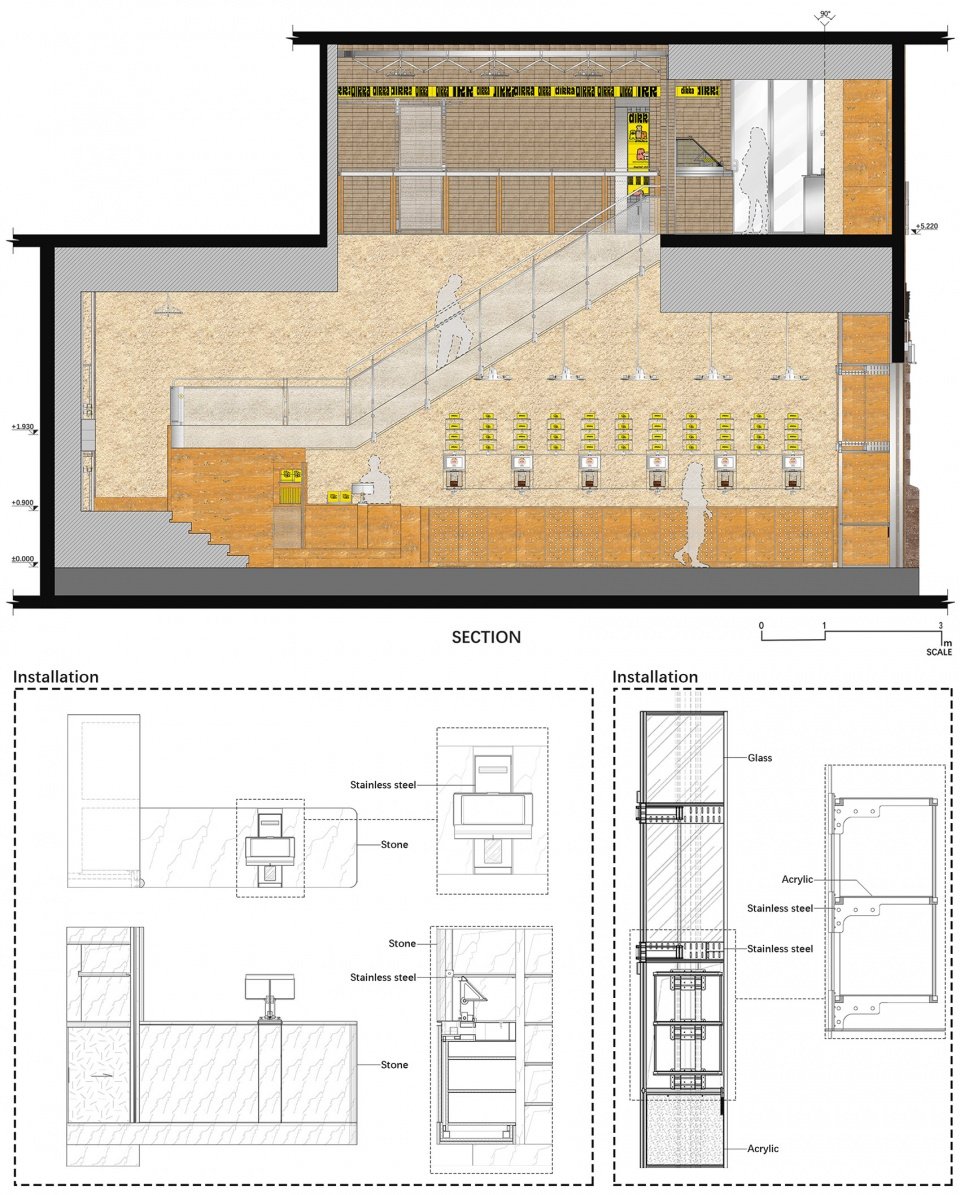
▼剖面图2,Section 2©Some Thoughts

项目名称:Dikka Bakery
项目地点:上海市黄浦区淮海中路939号
空间与陈列设计:Some Thoughts空间设计工作室
工作室网站:somethoughts.cn
媒体问询:press@somethoughts.cn
主持设计师:李京泽
设计师:向国
项目业主:上海仰望星空餐饮管理有限公司
主要用材:水磨石(上海毅渤科技有限公司)、水纹亚克力(LUXFACE)、肌理漆(上海斯惠涂料有限公司),贝壳水洗石、贝壳石子肌理涂料、陶土砖-结烧石、乱纹不锈钢(普婪恩实业)
室内面积:120㎡
设计时间:08/2022-11/2022
建造时间:12/2022-2/2023
道具制作:上海缇琪实业有限公司、杭州古雅商业展示道具有限公司
摄影:SFAP
撰文及图纸由Some Thoughts提供
Project Name: Dikka Bakery
Location: 939 Middle Huaihai Road, Shanghai
Interior and Installation Design: Some Thoughts
Studio Website: somethoughts.cn
Press Enquiry: press@somethoughts.cn
Principal Designer: Jingze Li
Design Team: Guo Xiang
Client: dikka
Materials: water textured acrylic, texture paint, shell washed stone, shell stone texture paint, clay brick – sintered stone, random textured stainless steel, terrazzo
Floor Area: 120㎡
Design Period: 08/2022-11/2022
Construction Period:12/2022-2/2023
Prop Man:Shanghai Tiqi Industrial Co., Ltd., Hangzhou Guya Commercial Props Co., Ltd
Photograph:SFAP
Project description and drawings provided by Some Thoughts
More:Some Thoughts空间设计工作室。更多关于:Some Thoughts on gooood