先锋社区位于市桥之心,自古以来承担着番禺政商中心的城市职能,是千年番禺历史文化的缩影。先锋社区拥有显赫的宗族聚落文化和丰富的工商贸易文化遗存。21世纪以来,因番禺积极融入广州主城区发展,向北形成经济、教育、居住集聚区,导致番禺城市重心北移,市桥的功能和空间日渐衰落,成为番禺城市发展的洼地,旧日荣光不再。
在中国全面推进城镇老旧小区改造的背景下,本项目以历史文化保护与集体回忆再现为导向,探究不同于一般老旧社区微改造的新路径、新思路。
▼视频,Video
Located in the center of Shiqiao sub-district of Panyu, Xianfeng Community has been the political and commercial center of Panyu since ancient times and is the epitome of Panyu’s history and culture for over a thousand years. Xianfeng Community has prominent clan settlement culture and rich industrial and commercial trade cultural relics. Since the 21st century, Panyu District has been actively integrated into the development of the main urban area of Guangzhou, forming an economic, educational and residential agglomeration to the north, which has led to the shift of the urban center of Panyu to the north, and the function and space of the city bridge has gradually declined, becoming a depression for the urban development of Panyu. The old glory is no longer.
Under the background of China’s comprehensive promotion of the renovation of old urban communities, this project is launched to preserve the history and culture of the sub-district and reproduce its collective memories, and explore new paths and new methods of micro-renovation that are different from the general practice.
▼先锋社区位置及历史时间轴,Location and Timeline

▼项目鸟瞰,Aerial View© 杨毅衡

01. 多时代建筑风貌保护利用
Protection and utilization of Architectural styles in different eras
社区内汇聚了清代至近现代多个历史时期的风貌建筑群,是市桥历史演变的空间样本。包括传统镬耳房、蚝壳墙、清代民居、五六十年代的红砖房、坡屋顶建筑、现代各类公共、民房、集合住宅建筑等;拥有小尺度、致密紧凑的充满岭南风情的古巷、精致的浮雕、与新城区街道尺度形成鲜明的对比。
The community has preserved many architectural complexes which can be dated back to the Qing Dynasty or modern times, including buildings with wok-ear gables walls, Oyster shell wall, folk houses in the Qing Dynasty, red brick houses in the 1950s and 1960s, pitched roof buildings, modern public, private houses, collective residential buildings, etc. These buildings have small, dense and compact ancient lanes full of Lingnan style and exquisite reliefs, which form a sharp contrast with the street scale of the new urban area.
▼多时代建筑风貌,Multiple Periods of Architectural Style

▼传统镬耳房,Traditional Wok Ear House© 杨毅衡

▼传统建筑立面,Traditional Facade© 杨毅衡

项目在规划上尊重原有街区历史风貌,保留传统街巷肌理;从街区提取传统青砖等风貌片段元素,形成街区协调统一的建筑形象;细分立面尺度,改变原有现代建筑粗放的立面风格,形成连续统一的历史风貌街区。
In terms of planning, the project highly respects the original street style and retains every traditional street. Extract elements such as traditional blue bricks from the block to form a harmonious and unified architectural image of the block. Subdivide the facade scale, change the extensive facade style of the original modern buildings, and form a continuous and unified historical style block.
▼改造后,After Reconstruction© 杨毅衡

对场地部分带有岭南特色的民居进行保护修缮,对周边违建加建建筑进行拆除或改造,重现历史空间的完整性和连续性。
The project has protected and repaired some residential buildings with Lingnan characteristics on the site, and demolished or renovated the surrounding buildings in addition to the illegal ones, thus reproducing the integrity and continuity of the historical space.
▼对旧建筑的立地保护,Protection of Old Buildings© 杨毅衡

▼装置艺术,Installation Art© 杨毅衡

社区北部原先面向外部空间的界面因为红砖残旧,过于围蔽显得消极,通过拆除封堵建筑物的围墙,使建筑面向环城西路开放,便人流于通达,我们也在先锋原有的特色砌砖形式上进行新形式的改变,使红砖建筑更具魅力。
The interface of the northern part of the community originally facing the external space is too negative because of the old red brick and enclosure. By removing the wall blocking the building, the building will be opened to the Huancheng West Road, making it easy for people to get around. We will also change the original characteristic brickwork form of Xianfeng to make the red brick building more attractive.
▼环城西路沿街面,Along the street of Huancheng West Road© 杨毅衡

▼环城西路沿街面,Along the street of Huancheng West Road© 杨毅衡

▼砖砌细节,Brickwork details© 杨毅衡

▼砖墙细节,Brick details© 杨毅衡

02. 集体情感为纽带,民众共同缔造
Public Participation with the collective emotion as the link
先锋社区作为市桥的老中心,改造以来吸引了社区内外群众、专家、企业的关注,积极参与到改造过程中去。
改造过程中,居民积极参与到社区组织的共同缔造活动,从社区交通、公服、开敞空间、灯光照明、游览标识、文化展示等多方面,为提升社区环境品质和公共服务水平提出建议。
As the old center of Shiqiao, Xianfeng Community has attracted the attention of the people, experts and enterprises inside and outside the community since its transformation. People actively plan the ways and methods of participating in the transformation.
During the transformation process, residents actively participated in the co-creation activities organized by the community, and put forward suggestions for improving the quality of the community environment and the level of public service from the aspects of community transportation, public service, open space, lighting, tourist signs, cultural display, etc.
▼改造前,Before reconstruction© 杨毅衡

社区内的部分私房业主也正在按照规划设计导则对其房屋进行自主改造。针对社区内年久失修丧失功能的私人产权房屋,设计以保护与尊重的态度为其专门制定了加固方案。居民在改造过程中获得强烈的社区认同感、归属感、获得感和幸福感。
Some private house owners in the community are also carrying out independent renovation of their houses according to the planning and design guidelines. For the private property houses in the community that have been out of repair for a long time and lost their functions, the design has developed a special reinforcement plan with the attitude of protection and respect. In the process of transformation, residents have a strong sense of community identity, belonging, acquisition and happiness.
▼改造后,After Reconstruction© 杨毅衡

▼社区居民,Community residents© 杨毅衡

03. “记忆——空间——功能”融合体系
Integrated System of “Memory–Space–Functions”
我们以多时代建筑风貌为触媒,创造性地提出了“记忆——空间——功能”融合体系。通过先锋居民的口述,将先锋文化故事、居民情感记忆、特色业态融入到相应时代的建筑中,形成4个记忆主题分区,5段记忆体验路径,对8个重要记忆节点,34栋公房进行精细化设计。实现记忆情感、原真空间、特色业态的匹配与融合,形成时空一体的场所体验。
Architectural styles of different eras serve as the catalyst in creatively proposing an integrated system of “memory – space – functions”. Based on the oral history of local residents, the planning integrates the cultural stories, residents’ memories and featured business formats into buildings of various eras. With four memory zones, five memory paths, as well as eight elaborately designed key memory nodes and 34 state-owned houses, the planning reproduces integral and continuous historical spaces, making the local residents’ memories an organic part of the authentic spaces and featured business formats, and offering an experience of place where time and space become a seamless whole.
▼创新与特色,Innovation and Characterstics

▼时空一体的规划结构,Planning Structure of Time and Space Combination

旧先锋小学位处社区中央,属于跨时代交汇中心片区,是社区居委所在地,也是居民活动休闲中心,这里记录了先锋地区从文峰谢公祠、先锋小学到社区居委会的集体回忆,是时空上的古今记忆交接点。但社区内部公共开放空间少,功能单一,体育设施不足,设计希望植入开放性、展示性强的公共服务功能,延展场域记忆。
The old Xianfeng Primary School is located in the center of the community and belongs to the cross-era intersection central area. It is the location of the community residential committee, and also the leisure center for residents. It records the collective memories of Xianfeng Community from ancient times to the present, and it is an intersection of memories in time and space. However, the public open space within the community is small, the function is single, and the sports facilities are insufficient. The design hopes to open and display-oriented public service functions are implanted to extend the memory of place.
▼孩童在社区广场玩耍,Children playing in the community square© 杨毅衡

▼社区广场,Community Square© 杨毅衡

▼社区组团中的居民生活,Residents’ life© 杨毅衡

设计打开原有建筑的格局,通过结构加固、部分楼板切除等相关技术,将大型公共空间植入到原有先锋小学的空间框架中。串联原有分散的建筑体块,开封架空层提升通达便捷的情况下,让空间的尺度开放性以及吸引力得到提升。同时将提取的传统建筑形式注入到社区服务的组团设计中,使居民在接触这些社区服务的组团时,能感受到老番禺的传统风貌。
The design opens the pattern of the original building, and embeds the large public space into the space frame of the original Xianfeng Primary School through structural reinforcement, floor cutting and other related technologies. The original scattered building blocks are connected in series, and the openness and attractiveness of the space are improved under the condition of convenient access of Kaifeng overhead floor. At the same time, the extracted traditional architectural forms are injected into the design of community service clusters, so that residents can feel the traditional style of old Panyu when they contact these community service clusters.
▼改造后,After reconstruction© 杨毅衡

▼明清民居-姑婆屋,The residential buildings from Ming and Qing Dynasties© 杨毅衡

为了展示先锋和番禺的文化历史,项目以一个雪白的大盒子,将博物馆组团进行包裹,以突出历史文化在这建筑场地的独特性。转角的两个展示面以弧形穿孔铝板镶嵌在窗洞上,在这些形式不一的弧形穿孔铝板立面,展示着先锋和番禺文化历史的瑰宝。这个带有独特窗口的白色盒子,我们称呼它为“市桥之窗”。
In order to show the cultural history of Xianfeng and Panyu, the project will wrap the museum group in a large white box to highlight the uniqueness of historical culture in this building site. The two display surfaces at the corner are inlaid in the window opening with curved perforated aluminum sheet. In these different forms of curved perforated aluminum sheet, the treasures of Xianfeng and Panyu culture and history are displayed. This white box with a unique window is called “Window of Shiqiao”.
▼市桥之窗,Window of Shiqiao© 杨毅衡

▼市桥之窗,Window of Shiqiao© 杨毅衡


落地变化
Implementation effect
先锋社区的空间环境吸引力不断提升。近一年来,文创产业自发培育、吸引“老番禺居民”重返先锋,艺术家和创客积极进驻。历史记忆、历史空间和产业业态融合促进的机制初见成效。
As result of the increasingly improved community environment, cultural creative industries have been spontaneously fostered in recent one year, which has attracted former Panyu residents to move back and artists and start-ups to move in. The mechanism to integrate historical memory, historical space and industrial development has started to generate positive results.
▼市桥之窗夜景,Window of Shiqiao by night© 杨毅衡

▼夜景,Night Scene© 杨毅衡

▼小巷夜景,Night Scene© 杨毅衡

▼场地平面图,Site plan

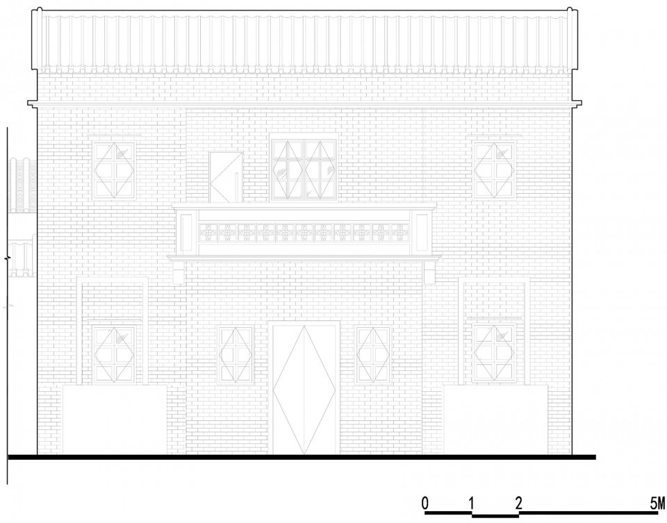
▼前锋大街十巷1、2、3、5号、前锋大街38号民居改造后立面图,Elevation1

▼前锋大街十巷1、2、3、5号、前锋大街38号民居改造后立面图,Elevation 2

▼先锋大街15、17、19号立面图,Elevation3

▼先锋大街15、17、19号剖面图,Short Section2

▼先锋巷十八巷57、59、61、62号、环城西路39号民居新建墙体立面和剖面图,elevation and section

▼先锋小学18号立面图,18-Xianfeng primary School Elevation 1

▼先锋小学20-1号楼-改造立面图,20-1-Xianfeng primary School Elevation

▼先锋小学20-2号立面图,20-2-Xianfeng primary School Elevation 2

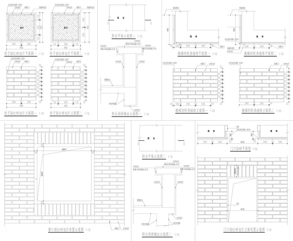
▼红砖墙大样,Wall Construction Detailing

项目名称:广州番禺市桥先锋社区微改造
设计方:广州市城市规划设计有限公司&广州市竖梁社建筑设计有限公司
公司网站:http://gzlarc.com/;http://www.ateliercns.com/
联系邮箱:1245721463@qq.com
项目设计 & 完成年份:2019年&2022年
规划设计团队:刘洁、余倩雯、余灏深、涂文、杨毅衡、赵逸靖、黄雅文
建筑设计团队:宋刚、钟展宁、郭萌、石芊、陈榆沅、马环宇、付柳杨、周灿田、龙伟豪、谢勇斌、钟悦余、杨岭兰、陈嘉明、朱尹昊、胡颖诗、梁杰鹏、刘房栋(实习)、唐小涵(实习)、周琳绘(实习)
项目地址:广东省广州市番禺区市桥街道
建筑面积:8710平方米(改造建筑面积)
摄影版权:杨毅衡
客户:广州市番禺区人民政府市桥街道办事处
More:竖梁社。更多关于他们:Atelier cnS on gooood