概况
Overview
无锡梅里遗址博物馆坐落在梅里古镇内,西侧是悠悠千载泰伯庙,北侧是流淌不息伯渎河。在古镇建设中发现的商周时期梅里遗址像是注定要在这里,为“泰伯奔吴”、“江南肇端”的故事做出一个穿越千年的注脚。于是,这处因地段所限而仅有不到两千平方米的小馆,自始至终,都紧紧围绕讲好吴地起源故事的核心而展开设计。
Wuxi Meli Site Museum is located in the ancient town of Meili, with the millennia-old Taibo Temple sitting on its west side and Bodu River flowing on the north side. The Meili site unearthed during the ancient town development dates back to the Shang and Zhou dynasties. It seems to be destined to add a footnote to the stories of “Taibo Running to Wu” and “the Beginning of Jiangnan” through thousands of years. The design of the project, which is less than 2,000 square meters due to its location, has therefore, from start to finish, centered around telling the founding story of Wu culture.
▼主入口夜景,Night view of main entrance© 陈旸

共生
Symbiosis
这处为商周时期遗址而建的无锡梅里遗址博物馆,本身位于城市建成区,又是身处建设中的仿明清风格商业街镇之中,其建筑设计走向尤为值得探讨:造型风格是远追先秦,还是近仿明清?功能设定是以历史展览为主,还是要融入商业街巷?以及,一处紧邻河岸的遗址,当与现在社区化的日常生活如何并置?
▼总平面图,Site plan© 止境设计工作室

The Wuxi Meili Site Museum, built for the archaeological site of the Shang and Zhou dynasties, is situated in an urban built-up area and amongst archaized commercial buildings of the Ming and Qing dynasties. It is particularly worth exploring which direction the architectural design should head towards: should the style of the museum imitate the pre-Qin period or match the Ming and Qing dynasties? Should the main function of the museum be historic exhibitions or commercial activities as a part of the district? Furthermore, how should the ancient site adjacent to the riverbank be integrated into modern community-based everyday life?
▼博物馆与伯渎河沿岸街区,Museum and the blocks along the Bodu River© 陈旸

▼从伯渎河对岸回望博物馆,Looking back at the museum from the other side of the Bodu River© 陈旸

▼博物馆与相邻建筑,Museum and adjacent buildings© 陈旸

经过反复斟酌,设计团队明确了设计思路:
一、从建筑史角度而言,商周建筑形象缺乏实存和明确材料支撑,而明清商业街区项目文脉并不清晰,都不足取。最终定位仍应立足现代建筑风格,反映当代的遗产阐释理念和建筑技术能力,与周边城市区域的公众生活相衔接。
二、博物馆作为商业街区中的公益性项目,功能设定应当兼顾文化遗产阐释的学术性、商业街区功能的相容性和公共活动空间的日常性,充分建立学术和公众的连接。
三、项目位于商业街区中心地带,建筑外型体量应适当考虑街巷肌理尺度及与周边建筑的形式协调。
With careful deliberation, the project team clarified the concept of the design:
1. From the perspective of architectural history, the Shang and Zhou period architectural image lacks support from clear existing documents while the cultural vein of the commercial district imitating the Ming and Qing dynasties is ambiguous. Thus, neither of the styles is suitable for the project. The final design concept is based on a modern architectural style, in reflection of the contemporary interpretation of heritage and the building technology excellence, while maintaining a close tie with the public life in adjacent urban areas.
2. Being a public welfare project in a commercial district, the museum should manifest its academic value in cultural heritage interpretation, its compatibility with the commercial district, and its essential role as a public space, establishing the connection between academia and the public.
3. The project is in the center of a commercial district. The form and the volume of the building should give due consideration to the texture and the scale of the district and harmonize with the surrounding buildings.
▼博物馆与伯渎河沿岸街区,Museum and the blocks along the Bodu River© 陈旸

▼博物馆东侧景观广场,Landscape square on the east side of the museum© 陈旸

▼博物馆与周边的仿古建筑,Museum and surrounding archaized buildings© 陈旸

确定的三条思路为后续设计指明了路径,也得到了业主方的充分理解和支持。项目从方案的磨合细化到施工图的多专业综合设计,再到施工环节,均进展得比较顺利。
The three confirmed ideas guided the paths for the sequent design and gained full understanding and support from the client. The project progressed smoothly in all aspects including the refinement of the scheme, the multi-disciplinary integrated design of the construction plan, and the construction process.
▼博物馆与伯渎河沿岸街区模型,Model of museum and the blocks along the Bodu River© 制作: 艺创模型;摄影:陈旸

▼模型鸟瞰视角,Model of Bird’s eye view© 制作: 艺创模型;摄影:陈旸

空间
Space
建筑内外空间的布局围绕整体参观流线展开。博物馆规模不大,按照常规的博物馆功能区面积比例,两千平米规模的博物馆其展览面积在一千平米左右,且包括一个较大的遗址原状展厅。因此参观流线为单线式,按策展分主题依次呈现,观众从进馆到出馆一路前行,无需走回头路。
The building’s layout of the internal and external space is organized around the designed visitor flow. The museum is of a modest scale. According to the conventional proportion of the functional areas in a museum, the display area of a 2,000 square meters museum should be around 1,000 square meters, including a large exhibition hall for the archaeological site. Therefore, the flow of the visitors is designed to be a single line, along which different themes of the exhibition are presented in sequence according to the curation. Visitors can thus walk all the way from the entrance to the exit without having to backtrack.
▼主入口,Main entrance© 陈旸

▼从广场看向博物馆,Looking towards museum from square© 陈旸

项目难点是建筑入口在背离伯渎河的商业小镇中心广场一角,而遗址坑又紧邻河岸,整个流线需要串联所有展厅,最终回到中心广场一侧。经过反复铺排平面,结合室内布展组织,设计采取了上下两层空间回转串接的方式,不但把各个展厅首尾连接起来,最后从二层文创商店出馆,又经过了位于遗址展厅正上方屋面的临河观景平台,再下行重新回到博物馆入口近旁,完成了一趟流线闭合且体验丰富的旅程。
The difficulty of the project is that the entrance of the building is at the street corner of the commercial district central square, which is away from the Bodu River, while the site pit is situated close to the riverbank. The tour flow needs to connect all exhibition halls and finally circle back to the central square side. After repeatedly laying out all the possible plans with consideration of the indoor exhibition curation, the team adopted a rotating route design which links the upper and lower floor and connects all exhibition halls. After exiting from the cultural and creative gift shop on the second floor, visitors can walk past the rooftop viewing deck above the site exhibition hall and go downstairs back to the museum entrance, completing a full tour circle with a rich and diverse experience.
▼博物馆与伯渎河沿岸街区,Museum and the blocks along the Bodu River© 陈旸

▼西侧观景台阶与二层室外平台,Viewing steps on the west side and outdoor platform on the second floor© 陈旸

▼西侧观景台阶与斜坡,Viewing steps and slopes on the west side© 陈旸

馆内利用单侧的坡屋顶在中部设置了两层贯通的展区,使空间更为生动。馆外二层,与出口处坡顶下设置了开敞式共享空间,便于游客遮风躲雨和观看近旁河道上的水幕表演,同时也使建筑整体形态虚实相生,生动通透,很适合江南地区的气候特征。另外屋面观景平台作为室外公共空间,不仅很适合赏观河景,更把地面广场“抬升”到屋面,把建筑物占用的场地又还给了公众。
The single-sided sloped roof of the museum provides an opportunity to set up a two-story atrium for exhibition, making the space more flexible. Outside the building, a shared open space has been created on the second floor under the pitched roof at the exit, which offers visitors shelter from wind and rain and a viewing platform for watching water shows on the nearby river. The open-air space also contradicts the building volume, demonstrating the aesthetic value of blankness and fullness, transparent and vivid, fitting the climate characteristics of the Jiangnan region. In addition, the roof platform is a perfect outdoor venue for enjoying the river view. By “lifting” the public square up to the roof level, it returns the space occupied by the building to the public.
▼从观景大台阶望向对岸,Looking to the other side of the river from the viewing steps© 陈旸

材料
Material
博物馆的外观材料,除了屋面仿青瓦的深灰色直立锁边金属屋面板外,主要只有一种灰色的凝灰岩(洞石),之所以选用这种材料,最主要的原因是其青灰色彩和质感的沉着细腻,与我们想表达的建筑“历史感”在气质上非常吻合。
The main exterior material of the museum, except for the standing seam charcoal grey metal roof panels that imitate traditional Chinese blue tiles, is grey tuff (travertine). The main reason for choosing this material is that its blue-grey color with calming and delicate texture matches the “historical sense” embedded in the building.
▼南立面与建筑间的步道,South facade and the walkway between buildings© 陈旸

▼博物馆与周边的仿古建筑
Museum and surrounding archaized buildings© 陈旸

前文曾提及,商业街中仿传统民居风格的商店多为江南地区常见的粉墙黛瓦木窗形式。为了与这些背景建筑既相区别又有所贴近,选用了这种灰色石材,作为黑与白之间的过渡色彩,使建筑造型不至于太突兀,易于融汇于周边的街巷之中。
As previously mentioned, the buildings in the commercial district mostly imitate the traditional residential architecture style featured with white walls, dark roofs, and wooden windows commonly seen in the Jiangnan region. In order to distinguish the museum from these background buildings while remaining consistent in style, the grey tuff was chosen. Its transitioning grey color between black and white alleviates the abruptness of the architectural form and helps the building blend in with the ambient environment.
▼清晨运送木料的船只,Ship carrying timber in the early morning© 陈旸

▼从桥下回看博物馆,Looking towards museum under the bridge© 陈旸

通过对这种石材不同的磨光处理,促使其产生深浅色差,墙面石材的分块也有意采取了五种(后简化为三种)宽窄长短不同的规格,这些色彩和规格的组合差异为整个墙面带来生动细腻又自然的变化,水平拉通的墙面分缝更使其呈现出一种地层叠压的感觉,也是对考古工作的一种隐喻。在雨天,这种略有孔隙质地并不是非常坚硬的石材受雨之后,随天气状态而显现的干湿变化,增添了一抹契合为江南水乡气质的、氤氲朦胧的意蕴。
Treated with different polishing measures, the grey stone is able to show various shades of color. Stones used on different sections of the wall were intentionally assigned five (later simplified to three) specifications of width and length. Combinations of stones in diverse colors and specifications bring about vivid, delicate, and natural variations of the entire wall. The horizontally drawn wall slits resemble the overlapping strata, which is also a metaphor for the archaeological work done on the site. On rainy days, the slightly porous and not very hard stone displays dry and wet changes subjecting to the weather conditions, adding a touch of the dense and lingering ambience that fits the temperament of the Jiangnan water town.
▼玩耍中的儿童,Children at play© 陈旸

历史
History
遗址博物馆营建的最终目的是保护遗址和向公众阐释遗址。怀着这样的初衷去认识这一项目,博物馆的展陈设计也是设计流程中的重要一环。由于在建筑设计过程中,已经充分考虑后期展陈流线和空间的变化,并且具有一些展陈手法的构想。因此在真正进行到展陈设计阶段时,整体的叙事框架已经大致构建完成。
The ultimate goal of building the Meili Site Museum is to preserve the site and interpret it to the public. With this in mind, the exhibition and display design of the project is also a significant part of the process. During the architectural design stage, the visiting flow and the spatial changes were fully considered with corresponding exhibition and display techniques. Therefore, the overall narrative framework has largely been completed in the exhibition and display design process.
▼一层展厅,Exhibition hall© 陈旸

展览策划“序厅”、“吉光片羽”、“泰伯奔吴”、“至德名邦”、“沧海桑田”和“遗址现场”六个板块。在永久展厅内,从考古发掘过程切入,对梅里遗址的聚落源流、文化交流、出土器物、历史传说、运河环境、文化精神等诸多侧面娓娓道来。通过对于透明显示屏、电子沙盘、多媒体屏幕等现代展陈技术适度应用,使遗址故事的讲述更加生动鲜活。
The exhibition is divided into six sections: “Prologue”, “Fragments of Treasured Relics”, “Taibo Running to Wu”, “The Greatest State of Virtue”, “Vicissitudes of Time”, and “The Site”. In the permanent exhibition hall, starting from the process of the archaeological excavation, multiple aspects of the Meili site are introduced, including the origin of the settlement, cultural exchange, excavated artifacts, historical legends, the canal environment, and cultural spirit. With the application of modern exhibition technologies such as transparent displays, electronic sand tables, multimedia screens, etc., the stories of the site are told more vividly.
▼入口大厅,Lobby© 陈旸

▼一层展厅,Exhibition hall© 陈旸




离开永久展厅,由坡道移步至玻璃盒子式的放映厅内观看影片。影片放映结束后,通电玻璃的变幻将为观众带来一点小惊喜,自然地切换到遗址现场的环境中去。遗址现场展厅中,观众可以穿梭于遗址周遭的参观步道上,阅读遗址;亦可透过玻璃幕墙看到与遗址形成息息相关的伯渎古河。
Leaving the permanent exhibition hall, visitors can walk along the ramp to the glass box-like screening room to watch films. After the film screening, the transformation of the energized glass will bring a little surprise to the audience by smoothly switching to the site environment. In the site exhibition hall, people can experience the site on the surrounding walkways and read about the site from the didactic panels. Through the glass wall, visitors can also overlook the ancient Bodu River, which is closely related to the formation of the site.
▼遗址展厅与屋面观察窗© 陈旸
Site exhibition hall and observation window on the second floor viewing platform

▼遗址展厅与临河步道,Site exhibition hall and riverside path© 陈旸

▼遗址展厅与上二层台阶,Site exhibition hall and stairs to second floor© 陈旸

▼遗址展厅,Site exhibition hall© 陈旸

▼遗址土保护施工过程,Construction documentation of site exhibition hall with original site soil© 止境设计工作室

展厅内地面与墙面主要采用深灰和浅灰色,力求简单素雅,衬托作为绝对主角的出土器物与解说图文。同时文字与墙面的黑白对比,又与江南印象很好地进行了呼应。
The floors and walls inside the exhibition halls are mainly in dark and light grey, aiming for simplicity and elegance to set off the excavated artifacts and didactic panels that are the absolute highlights of the museum. In the meantime, the contrast between black texts and white walls echoes the Jiangnan impressions.
▼多媒体厅,Multimedia hall© 陈旸

▼从台阶回望遗址展厅,Looking back towards site exhibition hall from stairs© 陈旸

社区
Community
现代城市发展中的新建筑,不论其类型,都应当对促进社区营造和公众交流有所贡献。梅里遗址博物馆恰巧身处拉动经济和促进消费而建设的新商业街镇中,对此更是责无旁贷。因此设计的一个初衷就是除了博物馆外,还要为社区营造一处开放式的活动场所,而且是无障碍全天候任何人都可以轻易到达的场所,将城市空间真正还给民众。
New buildings in modern urban development, regardless of their types, should contribute to community empowerment and public communication. The Meili Site Museum, which locates right amid a new commercial district that was built to boost the economy and stimulate consumption, bears an unshrinkable responsibility to do so. Therefore, one of the initial design objectives is to create an open space for the community in addition to the museum. The open space should be accessible to anyone at any time, giving the urban space back to the people.
▼在下沉景观平台休息的游客,Tourists resting on the sunken landscape platform© 陈旸

遗址现场展厅因为紧邻伯渎河,并且作为博物馆二层出口的衔接空间,非常合适设置屋面平台广场。平台面积虽然有限,但通过景观设计做了地面化处理,除适当栽植小灌木外,还有意设置了可以观察下面遗址的观察窗。
The exhibition hall of the site is an ideal venue for a rooftop plaza owing to its adjacency to the Bodu River and function as a joint at the exit of the museum. Despite the limited area, the roof platform has incorporated landscape design to look more similar to a ground-level plaza. In addition to the planting of small shrubs, observation windows have been specially set up for people to experience the site below.
▼二层开敞式共享空间,Shared open space on the second floor© 陈旸

▼二层观景平台,Viewing platform on the second floor© 陈旸

▼博物馆与周边的仿古建筑,Museum and surrounding archaized buildings© 陈旸

平台二十四小时开放,东西两侧的楼梯无需通过博物馆,就可以直接由两侧的街面到达,其中西侧大楼梯还结合可观水幕的看台式台阶嵌入了一条坡道,方便居民推儿童车通行。
The platform is open 24 hours a day. People can reach the platform via the stairs on both the east and west sides from the street without passing through the museum. The grand staircase on the west side also has a ramp embedded along the stairs with deep threads designed as bleachers for people to sit on and watch the water show. The ramp is convenient for residents in wheelchairs or parents carrying baby strollers.
▼西侧观景台阶与斜坡,Viewing steps and slopes on the west side© 陈旸

▼望向伯渎河,Looking towards Bodu River© 陈旸

屋面平台一侧结合建筑坡顶设置了木制休息看台,为这一场所提供了更多的活动可能性。可惜该平台未能与周边拱桥及商铺进一步连接,以打通更为丰富的游憩空间,引以为憾事。
On one side of the roof terrace, a wooden resting platform has been set up in conjunction with the sloped roof of the building, creating more possibilities for activities in this place. It is however a pity that the terrace could not further be connected to the nearby arched bridge and commercial buildings to open up a richer recreational open space.
▼临河步道的内凹休息区,The recessed rest area along the riverside path© 陈旸

▼正在观察室内遗址的游客,Tourists observing the indoor site© 陈旸

遗址现场展厅北侧临河有一条狭窄的通路。我们在通路中段将展厅向内凹进了三角形的区域,既做为博物馆的一处应急疏散出口,更为临河的公共通道营造了一处扩展节点,便于游人在此小憩,避免了建筑对于河畔通行路的压迫。这个三角形室外区域的墙体有意用落地玻璃做透明分隔(此墙面北,不会因阳光直射影响遗址本体),散步经过的人也许会惊觉玻璃内外远古遗址和现代商街的差异,一墙之隔古今千年,历史之于今天意味着什么?
To the north side of the site exhibition hall stretches a narrow path along the river. We managed to keep a triangular area in the middle section of the path by retreating the exterior wall of the exhibition hall, creating not only an emergency evacuation exit for the museum, but also an extension node on the waterfront path, which provides visitors with a rest place and prevents the oppression feeling of the building against the riverside path. The triangular outdoor area is intentionally separated by floor-to-ceiling glass (facing north, no direct sunlight through the glass wall will damage the site). People walking by may be surprised by the exhibition of the ancient site and the modern commercial district on the two sides of the glass wall. A wall pulls thousands of years apart, asking what does history mean to us today?
▼从桥上回看博物馆,Looking towards museum on the bridge© 陈旸

▼屋顶平面图,Roof plan© 止境设计工作室

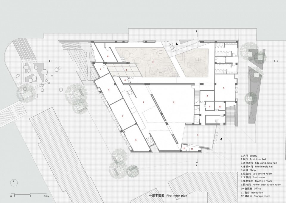
▼一层平面图,First floor plan© 止境设计工作室

▼二层平面图,Second floor plan© 止境设计工作室

▼东立面图,East elevation© 止境设计工作室

▼南立面图,South elevation© 止境设计工作室

▼西立面图,West elevation© 止境设计工作室

▼北立面图,North elevation© 止境设计工作室

▼1-1剖面 1-1,Section view© 止境设计工作室

▼2-2剖面,2-2 Section view ©止境设计工作室

▼南立面墙身大样图,South Elevation Wall Section Detail©止境设计工作室

项目名称:无锡梅里遗址博物馆
项目地点:江苏无锡新吴区梅里古镇内
建筑面积:1937.55㎡
设计时间:2019年1月-2020年9月
施工时间:2020年8月-2022年9月
业主:无锡市新吴区梅村街道
设计单位:
中国建筑设计研究院有限公司 建筑历史研究所(建筑方案,室内展陈策划与方案,全程配合)
网站:http://www.arch-history.com
联络邮箱:liujian@cadg.cn
上海中森建筑与工程设计顾问有限公司 止境设计工作室(建筑方案深化,施工图设计,景观方案与施工图设计,土建全程配合)
网站:http://zsa.com.cn/
联络邮箱:atelierdiameter@126.com
设计主创:
刘剑、吴嘉宝(中国院历史所);张男、张晓远(上海中森止境设计工作室)
设计团队:
中国建筑设计研究院有限公司:陈笑鹏、吕文杰(建筑)
上海中森建筑与工程设计顾问有限公司:陈旸、干露、于雅琪、冯琦、郭静瑞、欧仁伟、黄舒婷、汤燚(建筑);唐小辉、侍政、赵征(结构);张慧杰(景观)庞志泉、田涓入、张汝波、余滋斌(给排水);安秋香、马浩然、王建伟(暖通);周英俊、杨禾珣、高春(电气);王黎、严奔驰、徐锦慧(总图);李超(节能)
室内展陈设计:中国建筑设计研究院有限公司、北京筑邦建筑装饰工程有限公司、杭州宇志文化艺术策划有限公司
展陈策划:中国建筑设计研究院有限公司、北京六材工坊文化发展有限公司
展陈多媒体设计:山东朝齐文化传播有限公司
幕墙设计:上海易旋建筑设计咨询有限公司
代建方:无锡隽泰房地产开发有限公司
土建施工方:江苏无锡二建建设集团有限公司
展陈施工方:北京筑邦建筑装饰工程有限公司
幕墙施工方:美华建设集团有限公司
材料及厂家:
照明品牌:ERCO
展柜品牌:中比
钛锌板品牌:秘鲁锌
摄影版权:陈旸(whyseeimage.com)
翻译:苏怡柠
Project Name: Wuxi Meili Site Museum
Location: In Meili Ancient Town, Xinwu District, Wuxi, Jiangsu
Area: 1937.55㎡
Design Period: January 2019 – September 2020
Construction Period: August 2020 – September 2022
Client: Meicun Community Service Center of Xinwu District, Wuxi
Design Companies:
Institute of Architectural History,China Architecture Design & Research Group (Conceptual Design, Interior and Exhibition Planning and Design, Construction Coordination)
Website: http://www.arch-history.com
E-mail: liujian@cadg.cn
Atelier Diameter, ZSA (Design Development, Construction Drawings, Landscape Design, Construction Coordination)
Website: http://zsa.com.cn/
E-mail: atelierdiameter@126.com
Design Principals:
Jian Liu, Jiabao Wu (Institute of Architectural History, CADG); Nan Zhang, Xiaoyuan Zhang (Atelier Diameter, ZSA)
Design Team:
Institute of Architectural History, CADG: Xiaopeng Chen, Wenjie Lv (Architectural Design);
Atelier Diameter, ZSA : Yang Chen, Lu Gan, Yaqi Yu, Qi Feng, Jingrui Guo, Shuting Huang, Yi Tang (Architectural Design); Xiaohui Tang, Zheng Shi, Zheng Zhao(Structural Engineering); Renwei Ou, Huijie Zhang (Landscape Design); Zhiquan Pang, Juanru Tian, Rubo Zhang, Zibin Yu (Plumbing Engineering); Qiuxiang An, Haoran Ma, Jianwei Wang (HVAC Engineering); Yingjun Zhou, Hexun Yang, Chun Gao (Electrical Engineering); Li Wang, Benchi Yan, Jinhui Xu (General Layout Design); Chao Li (Energy Saving Design)
Curatorial Consultant & Exhibition Design: China Architecture Design Institute Co. Ltd, Beijing Truebond Building Decoration Engineering Co.,Ltd., YUniverse Design Office
Exhibition Planning: China Architecture Design Institute Co. Ltd, Beijing Liucai Workshop Culture Development Co., Ltd.
Exhibition Multimedia Design: Shandong Chaoqi Culture Communication Co., Ltd.
Curtain Wall Design: Shanghai Geometry Archi-Design Consulting Co., Ltd.
General Contractor: Wuxi Juntai Real Estate Development Co., Ltd.
Contractor of Main Structure: Jiangsu Wuxi Er-Jian Construction Group Co., Ltd.
Contractor of Exhibition: Beijing Truebond Building Decoration Engineering Co.,Ltd.
Contractor of Curtain Walls: Meihua Construction Group Co., Ltd.
Construction Materials and Companies:
Lighting Brand: ERCO
Showcase Brand: Zhongbi
Titanium Zinc Roof Panels Brand: Verozinc
Photo Credits: Yang Chen (whyseeimage.com)
Translation: Yining Su
More:中国院历史所;上海中森止境设计工作室。更多请至:Atelier Diameteron gooood