关于Malaspina设计公司
Malaspina Design
M2之家是为Malaspina设计开发的一系列项目之一,Malaspina设计公司是美国西海岸俄勒冈州可持续住房行业的领先企业,他们与设计团队取得联系,意在探索位于太平洋西北部理想房屋和当代建筑之间的关系。
M2 House is part of a series of projects developed for Malaspina Design, a leading company in the design of sustainable housing in the State of Oregon, on the West Coast of the USA, which contacted us to explore the limits between the Pacific Northwest dream house and contemporary architecture.
▼项目概览,Overall view© LGM Studio

地理条件
Geography
该项目与场地周边的环境条件有着密切的联系。项目的第一批住宅被设计在Cascades瀑布东边的Bend市,其地貌是位于太平洋西北部连续的针叶森林山脉与大盆地第一座山峰之间的狭长地带,大盆地是一个从爱达荷州南部一直延伸到Mojave沙漠的干旱的内陆盆地。山脉的景色和半干旱地面形成的双重因素共同触发了本次的设计策略——其一是需要解决建筑与壮观且受到保护的景色之间的关系,另一方面,要建造更加可控的、具有国家特色的外观。
The project has a deep link with the environmental conditions of the site. The first homes are located in the city of Bend, east of the Cascades, a strip of territory between the coniferous forests and mountains of the Pacific Northwest and the first foothills of the Great Basin, an arid inland basin that runs from southern Idaho to the Mojave Desert. This dual condition between the views of the mountains and a semi-arid ground triggers the design strategy, which has to resolve the relationship with a majestic and protected landscape, on the one hand, and the construction of more controlled, domestic exteriors, on the other.
▼具有国家特色的外观,Domestic exteriors © LGM Studio

▼房屋位于自然环境中,House in a natural setting © LGM Studio

紧凑与通透
Compact and porous
M2之家被设计成一个连续的空间,并围绕着一系列大小不一的庭院,这些将庭院内外部空间融合在一起。建筑的结构既紧凑又通透,最大程度地减少了占地面积,从而使景观主导了这个区域。
M2 House is designed as a continuous space around a series of patios of different sizes that mix the exterior areas with the interior spaces. The house is both compact and porous, minimizing the footprint and thus allowing the landscape to take over the area.
▼入口处,Entrance© LGM Studio

房屋仅有一个楼层,各类主要功能被设置在不同的高度,为房间提供了不同的角度的远观视野。这样不同层次上的功能便能够与外界环境建立多种关系,从而产生不同的互动方式和相对独立的使用模式。
The house is organized on a single floor that organizes the main uses on different levels, providing different views of the distant landscape. This allows multiple relationships with the outside at different levels, generating different ways of interaction and a certain independence between uses.
▼轴测分析图,axonometric view © FRPO Rodriguez & Oriol

▼室内所有功能都设置在同一层,All functions of the interior are set on theground floor © LGM Studio


景观方面采用了尽可能降低建筑面积的策略,庭院内种植了国内品种的植物,为房屋的公共和私人区域同时创造出独特的环境。
The landscape proposal is based on a minimal footprint strategy. The patios are planted with domestic species, creating very special backgrounds for the different areas of the house, whether public or private.
▼通透的孔洞设计,Porous design © LGM Studio

▼拥有不同角度的远观视野,Distantvision from different angles© LGM Studio

关于系统
Systems
这座房屋使用了传统的木质框架结构——轻捷型构架,并将其建造在放置主要设施的梯田状混凝土板上。
由大地色调的铝制复合板覆盖的外立面非常的封闭,根据不同角度的阳光照射,其颜色略显不同。一些外部的开口处由改良的杉木框架构成。房屋露台部分的立面框架镶板上涂有浅灰色的泥浆,使其变得非常透明。
The house is built using a traditional wooden frame structure -balloon frame- on a terraced concrete slab-on-grade under which the main facilities run.
The exterior façade, very closed, is finished with an aluminum composite panel cladding in earth tones with slight nuances according to the incidence of sunlight. A few exterior openings are framed by modified fir frames. The patios facades, very transparent, are finished with a light-colored stucco applied to the paneling of the framework.
▼木质框架结构,Wooden frame structure ©LGM Studio, Kayla McKenzie

▼建造结构轴测分析图,detailed corner © FRPO Rodriguez & Oriol

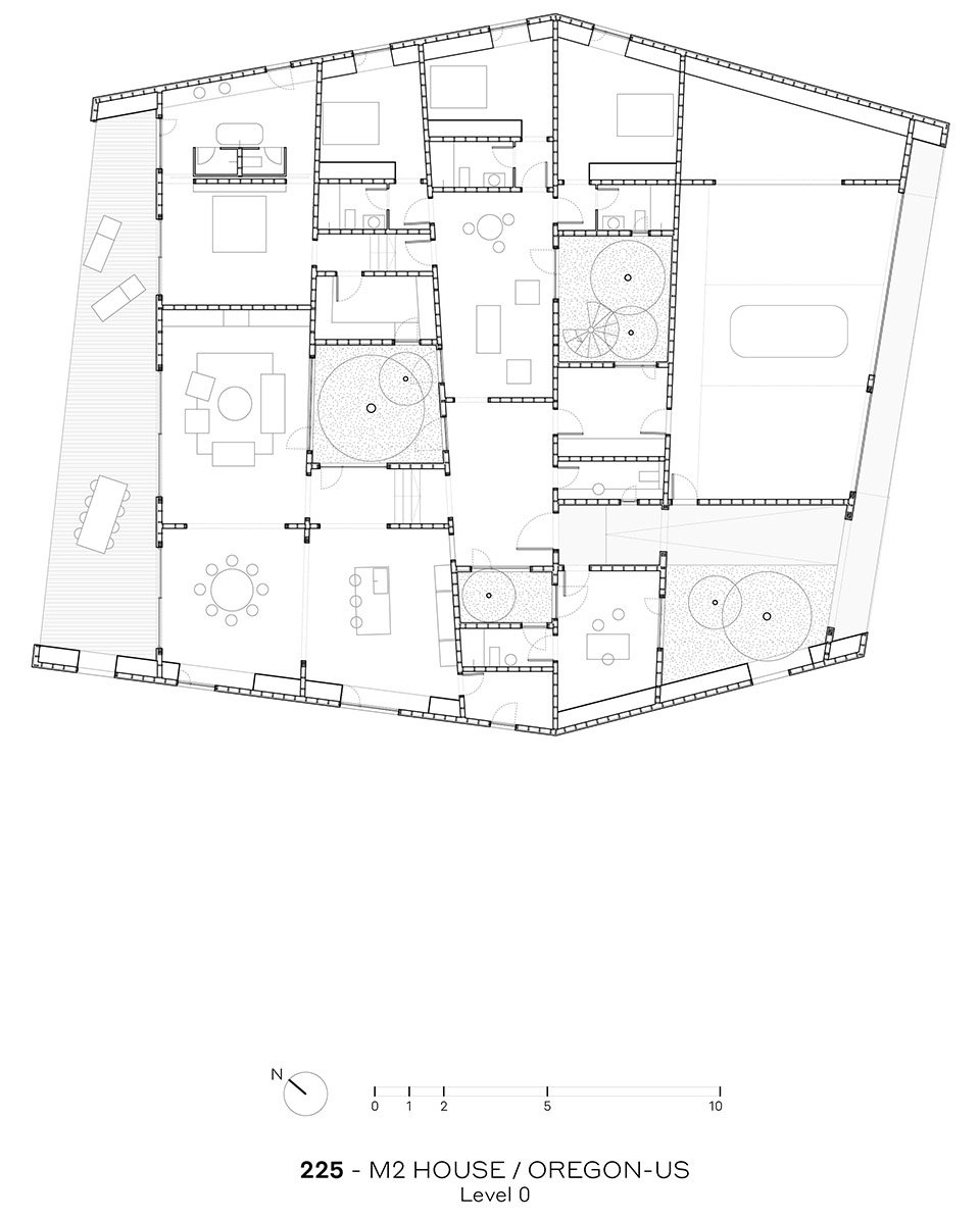
▼首层平面图,ground floor plan© FRPO Rodriguez & Oriol

▼立面图,elevations © FRPO Rodriguez & Oriol

▼剖面图,sections © FRPO Rodriguez & Oriol

M2 HOUSE
Private House, Bend, Oregon-USA
Project 2020
Client: Private
Surface: 850 m2
Location: Bend, Oregon-USA
Project start: 01-2020
Building start: 02-2021
Building end: 03-2022
Project leaders
Pablo Oriol, Fernando Rodríguez
Collaborators
Ricardo González
Malaspina design/Jennifer Steward
Consultants
Bighorn Construction, Mike Szabo Landscape
Images
LGM Studio, Kayla McKenzie
More:FRPO Rodriguez & Oriol。更多请至:FRPO Rodriguez & Oriol on gooood