置身于公共空间中的银行
A Bank in a Public Space
随着金融科技等新型金融服务的发展,“随时”、“随地”已经成为当今时代的新常态。带着“不再需要传统的银行网点”的危机感,我们开始了设计。作为地区的基础设施企业,银行如何助力地方城市实现可持续发展?阿波银行的客户有哪些群体?应该为客户提供怎样的价值?我们就今后银行网点的理想状态进行了彻底的讨论。
This project began with a palpable sense of crisis. With the development of fintech and new financial services, the convenience of “anytime”, “anywhere” has become the norm. The upshot is that sometime in the future, traditional bank branch buildings will no longer be needed. In order to realize a sustainable regional city, what is required of a bank that is also part of a region’s infrastructure? Who are Awa Bank’s customers? What kind of value does it provide to customers? To this end, thorough discussions were held about the future of brick-and-mortar bank branches.
▼建筑外观,exterior view of the project© 铃木文人写真事务所

▼街道视角,street view of the project© 铃木文人写真事务所

▼开放的建筑立面,open facade of the bank©日建设计

历时一年的讨论,最终得到的答案是“成为认同阿波银行所提供价值的人们的伙伴”。我们认为,以公共空间为中心的结构非常适合本项目,现有客户自不必说,也会吸引当地居民和游客积极造访。希望打造一个真正面向大众开放的银行网点,实现顾客、地区和银行的“三方共赢”。
▼手绘图,sketch©日建设计

A year of discussions finally yielded an answer: “partnership” for those who share Awa Bank’s values. With this in mind, creating a public space at the center of the building was determined to be appropriate. The space could attract current customers, and also local residents and tourists, resulting in a truly open bank branch that would create a “win-win-win” relationship between customers, the community, and the bank.
▼室内空间概览,interior of the project© 铃木文人写真事务所

“格调优雅”与“繁华人气”
Dignity and liveliness
创业至今已有123年历史的阿波银行长期以来一直贯彻着“稳健经营”这一理念。我们旨在打造一座能够体现该理念精神,彰显“遵循原理原则、注重信用”、“传承优良传统、挑战未来”的阿波银行旗舰网点。
The bank’s motto, “Sound Management,” has underpinned its 123-year history, and its flagship branch sought an architecture embodying the spirit of this phrase. This meant “following basic truths and principles and paying respect to clients’ trust” and “preserving tradition while challenging the future.”
▼外观夜景,night view of the project© 铃木文人写真事务所


建筑的基本原则是横平竖直,以此为基础的端正框架构成的骨架和完善的模块设计赋予整个建筑以秩序感。结构体作为止水线可达到删繁就简的效果,确保框架上没有其他材料,以提高设计的纯度。根据模块设计的结果,天花板采用600mm+85.7mm的狭缝设计,通过将所需设备安装在狭缝内,同时全部采用地板送风空调系统以去除各种冗杂,呈现出品质上乘且优雅美观的天花板设计。
A framework based on horizontal and vertical architectural principles, along with a thorough modular design, gave discipline to the entire building. The design’s “purity” was enhanced by maintaining clean structural façades, eliminating any exposed rainwater pipes, and ensuring that no incongruent materials were locked into the frame. The ceiling is designed with a 600mm + 85.7mm slit, inside which all necessary equipment has been installed. Air conditioning uses floor ventilation to eliminate clutter, showcasing the elegant ceiling design.
▼外廊,semi-door veranda© 铃木文人写真事务所

我们力求打造一个兼具旗舰网点的“格调优雅”与公共空间的“繁华人气”这两种特性的丰富多彩的建筑。通过后移外装部分使建筑具有进深,并引入商店街的活动。不同高度的楼面均与外部相贯通,借此展示内部的活动。
The exterior of the building is set back to create depth and to draw in the activities of the adjacent shopping arcade. Different floor levels are exposed to reveal the movement that occurs inside. The goal was to create an architecture with a rich spatial duality, where the “dignity” of the flagship office and the “liveliness” of the public coexist.
▼不同高度的楼面均与外部相贯通,different floor levels are exposed to reveal the movement that occurs inside © 铃木文人写真事务所

令人不禁想要漫游其中的建筑
A compelling walkaround tour
无论是否办理银行业务,我们希望为所有来访者提供让梦想更加广阔的“新的邂逅”。将以往按照银行业务内容划分的窗口服务,重新整理为感受速度价值的“快捷服务”和体验先进知识和技能价值的“个人服务”,分别布置于各个楼层。利用可浏览日常生活类图书的“图书馆空间”、既可用作商务会谈也可供学生聚会的“共享办公空间”、拥有二十多年历史的市民画廊“阿波银PLAZA”等遍布建筑处的公共功能,将银行功能连接在一起。采用每半层地面相连的跃层设计,形成四通八达的高度回游空间,让人们为寻找“新的邂逅”而不禁漫游其中。
▼分析图,diagram©日建设计

The design intent was to provide “incidental new encounters” that would expand the aspirations of both people who do business with the bank and those who do not. Counter services previously divided by business category were re-assigned into speedy “quick services” and more knowledge/skill-based “personal services,” and developed on different floors. Public functions connected these services, including a “library space” to facilitate reading, a “co-working space” for businessmen and students to meet, and the “Awa Bank Plaza,” a citizen’s gallery with a history dating back more than 20 years. These areas are scattered throughout the building. A skip-floor layout enables each half-floor to be connected to the next, creating a structure with a high degree of circulation without dead-ends, compelling visitors to circle the premises in search of “new encounters.”
▼通告中庭,atrium© 铃木文人写真事务所

▼“个人服务”空间分别布置于各个楼层,”personal services” spaces are arranged on each floor© 铃木文人写真事务所

▼楼梯,staircase© 铃木文人写真事务所


活动设计
“Activity Design”
建筑只有在人的介入下才有意义,所以我们认为对于人类活动的设计是建筑设计的本质。包括经手触摸后引发下一步行动的家具在内,我们希望通过整体设计,将其升华为充满人情味的舒适建筑。
Architecture takes on meaning only when people are involved. Indeed, activity design is the essence of architectural design. The goal here was to sublimate architecture in a comfortable, human space by designing furniture and other elements that people touch and that determine their behavior.
▼底层大厅,reception hall on the ground floor© 铃木文人写真事务所


家具设计引用建筑模块,极具统一感。同时着眼于人与人的相对方式,展开具有角度的设计。由于相互间不是正面相对,避免了初次见面时的尴尬局促。家具也错开角度进行配置,打造出不会与其他利用者发生视线干扰的相对安心的个人空间。
Furniture design was based on the project’s architectural modules. It imbues a sense of unity, while at the same time focusing on the way people face each other in its angular orientation. Since people rarely face each other squarely, they do not feel a sense of embarrassment when meeting for the first time. In addition, furniture is arranged at an angle, providing a calm personal space where people are not compelled to gaze directly at each other.
▼画廊图书馆般的空间,gallery and library-like space© 铃木文人写真事务所


家具使用德岛县产的木材,并在各处设计了使用德岛传统工艺的家具器物,比如阿波指物(Woodworking joints,不使用钉子等进行接合的木材拼接工艺)的桌子,以及阿波和纸的夹层玻璃等。希望通过内部装饰设计,让来访者能够接触到德岛特有的素材和传统工艺,感受当地引以为傲的传统文化。
Furniture is fashioned from locally-sourced Tokushima Prefecture wood, while fixtures are designed with traditional Tokushima craftsmanship, such as Awa woodwork tables that do not use any nails for joints and laminated glass made with Awa Japanese paper. The goal was to create an interior that would allow visitors to see and feel regional materials and craftsmanship and to feel proud of their hometown.
▼家具使用德岛县产的木材,
furniture is fashioned from locally-sourced Tokushima Prefecture wood© 铃木文人写真事务所

▼由室内看外廊/露台,viewing the semi- outdoor veranda from interior© 铃木文人写真事务所

▼家具细部,details of the furniture©日建设计

▼夜景,night view© 铃木文人写真事务所

▼总平面图,master plan©日建设计

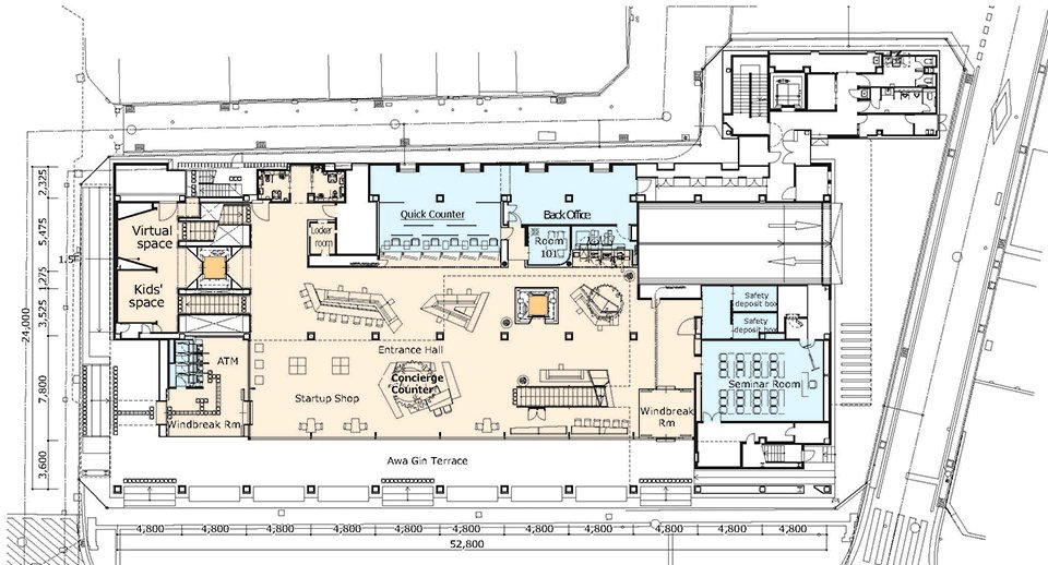
▼一层平面图,1st Floor Plan©日建设计

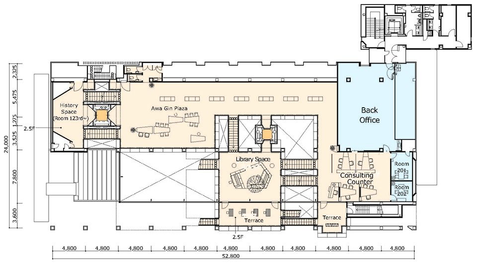
▼二层平面图,2nd Floor Plan©日建设计

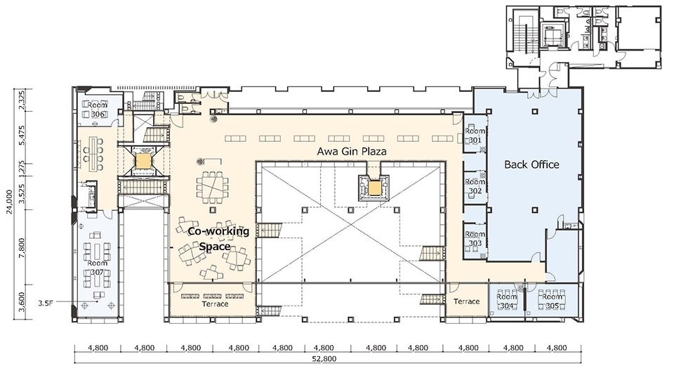
▼三层平面图,3nd Floor Plan©日建设计

▼四层平面图,4th Floor Plan©日建设计

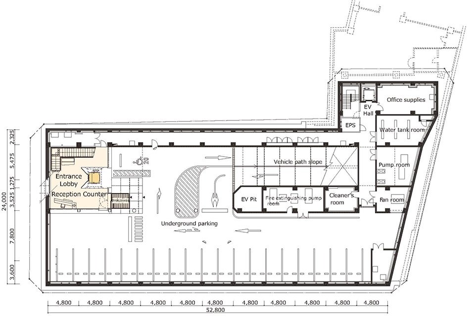
▼地下一层平面图,B1 Floor Plan©日建设计

▼立面图,Elevations©日建设计



▼剖面图,S section©日建设计

▼结构细部,Construction details©日建设计


项目名称:阿波银行总行营业大楼
项目业主:阿波银行
项目位置:德岛县德岛市
主要用途:办公
用地面积:1,775.14 m²
建筑面积:4,974.08 m²
主体结构:钢结构
建筑层数:地下1 层、地上4 层
建筑高度:21.918m
设计单位:日建设计(设计・监理)
竣工日期:2019 年11 月
施工期间:2018 年 3 月~ 2019 年11 月
施工单位: 竹中工务店
项目摄影:铃木文人写真事务所
Building name: Awa Bank Head Office Sales Department Building
Location: Tokushima City, Japan
Main use: Office
Building owner: The Awa Bank, Ltd.
Architect: Nikken Sekkei (design & supervision)
Floor area: 1,775.14 m²
Extended bed area: 4,974.08 m²
Number of floors: one underground, four above ground
Maximum height: 21.918 meters
Main structure: Steel structure
Completion date: November 2019
Construction period: March 2018 – November 2019
Contractor: TAKENAKA CORPORATION
Photographer: FUMITO SUZUKI Photo Studio K.K.
More:株式会社日建设计。更多关于:Nikken Sekkei Ltd on gooood