我一直想创造一个“不典型的”的空间。在商业类项目中,根据委托的业态,经常被要求设计“典型的”空间。这种重视风格的设计,具有快速让人联想到那家店的业态的符号作用,但是由于符号,我们感受到的想象力也受到了很大的限制。因此,这次尽量排除符号的要素,依靠质感和空间来创造一个抽象的空间。
I always want to create a space that is “untypical”. Commercial projects often require a “typical” space according to the requested business category. This kind of style-oriented design has a symbolic effect that gives us a quick image of the business category, but because of this code, the images that we can perceive is also greatly limited. Therefore, this time, I decided to eliminate symbolic elements as much as possible and create an abstract space relying on texture and volume.
▼板前吧台区,The bar area © 锐景摄影


▼板前吧台区细部,Details ofbar area © 锐景摄影


业主的要求是整体暗色调的空间,除此之外,我们尝试利用原建筑非常高的层高来进行设计。从电梯下来后,会出现一个巨大的弧形顶吊下来。入口空间被压缩,之后的空间就会更加伴随着开放感出现。在尽头的墙壁上拼贴非常原始感的石头,形成了与抽象造型的对比。为了使立体性感觉更强,表面涂上了大颗粒的喷漆,用吧台上方粗犷的原木照明模糊地照亮。单间部分也只通过立体操作设计,吧台单间是堆积成直方体的形状,桌子单间是像万神殿一样的穹顶天花上倾泻着光线的设计。卫生间表皮为微水泥,做成了极简主义。
Except for the owner’s request to make the entire space darker, we took the initiative in designing and studying with bold volume manipulation that takes advantage of the high ceiling. When you get off the elevator, you will see a large hanging volume. Once the space is compressed, the space after that appears with an even greater sense of openness. Stones were piled up randomly on the wall at the end to create a contrast with the smooth ceiling. In order to give a stronger feeling of solidity, the surface is spray-painted with large grains, and is dimly illuminated by the light from the rustic log suspended over the counter. The private rooms are also designed with three-dimensional operations. The private room which has sushi counter shaped like a stack of rectangular volumes, and the table private room designed to let light pour in from the pantheon-like domed ceiling. The toilet has a minimalistic finish with only mortar paint.
▼包间,The table private room © 锐景摄影

▼像万神殿一样的穹顶天花板,The pantheon-like domed ceiling © 锐景摄影

▼后厨,Kitchen © 锐景摄影

▼走廊,Corridor © 锐景摄影

现代社会因为大家过于轻易地追求风格,不知不觉就陷入了“应该这样”的共同幻想中,陷入了束缚。大教堂里的中餐馆,寺庙里的高级法式餐厅,山洞里的寿司店,什么都可以。设计是更自由。
Because everyone is looking for a style too easily, without realizing it, they were caught up in a communal fantasy of “this is how it should be” and became tied down. It would be nice to have a Chinese restaurant in a cathedral, a French course meals in a traditional temple, or sushi in a cave. Design is more free.
▼楼梯,Stairs© 锐景摄影


▼建造材料细节,Material details© 锐景摄影

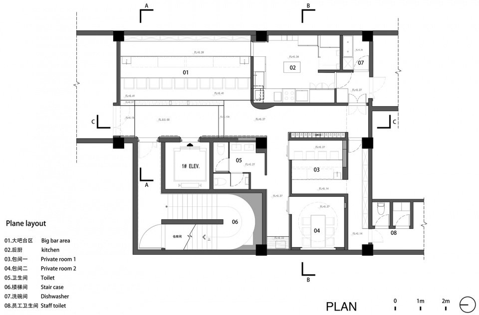
▼首层平面图,plan layout © Tsutsumi & Associates

▼剖面图A-A, B-B,A-A, B-B section © Tsutsumi & Associates

▼剖面图C-C,C-C section © Tsutsumi & Associates

地址:中国北京市
面积:190㎡
室内设计:堤由匡建筑设计工作室(堤由匡、明达、肖阳、洪秀秀)
策划:北京鸣意品牌设计有限公司
机电设计:北京东洲际技术咨询有限公司(石川星明、竹林克宣、山崎隆司)
施工:北京森洋远航建筑装饰有限公司
照片:锐景撮影
竣工:2023年3月
Address:Beijing, China
Area: 190㎡
Interiors design:Tsutsumi Associates
(Yoshimasa Tsutsumi、Mingda, Yang Xiao, Xiuxiu Hong)
Coordinate:Ming Branding Design
Facility Planning:Beijing Dongzhouji Technical Consultation
Construction:Beijing Senyang Yuanhang Jianzhu Zhuangshi
Photographs:Ruijing Photo
Year:March 2023
More:堤由匡建筑设计工作室。更多关于他们:TSUTSUMI & ASSOCIATESon gooood