项目概览
Overall of the project
中冶赛迪积极响应国家碳达峰碳中和政策,受重庆市北碚区生态环境局委托,以设计采购施工总承包(EPC)模式高效建成重庆首个零碳展厅。展厅位于重庆市北碚区缙云山翠月湖畔,属于新时代文明实践生态文明分中心的一部分,项目旨在普及低碳技术,倡导低碳生活,树立低碳样板。
Entrusted by the Chongqing Municipal Ecology and Environment Bureau (Beibei District), CISDI has played an active role in responding to the national call for meeting peak carbon dioxide emissions and carbon neutrality targets, and has built the project to an EPC (engineering, procurement and construction) mode. The project is located at the conservation culture cub-center for the New Era’s cultural advancement program by the Cuiyue Lake in the Jinyun Mountain in Beibei District in Chongqing. It embraces a zero-carbon showroom advocating a low-carbon living concept. It acts as a means of promoting low-carbon knowledge, and stands out as a low-carbon demo.
▼鸟瞰图,Aerial View© 直译建筑


零碳技术体系建设
Formation of zero-carbon technology system
设计师结合“三可、三零”建设原则,通过“三维度、四体系”实现重庆首个真正意义上的“零碳建筑”。“三可”即可零碳、可感受、可展示;“三零”即零能耗、零废水、零废弃物;“三维度”即建筑能耗、建筑废水、建筑废弃物;“四体系”即可再生能源体系、节能体系、水循环利用体系、材料循环利用体系。
The cabin is a real-sense “zero-carbon building” by following a three-achievable, three-zero principle, the first of its kind in Chongqing. It also embodies a three-dimension, four-system philosophy.
The three-achievable: to achieve zero-carbon target, personal experience and demonstration.
The three-zero: resulting in zero energy consumption, zero waste water discharge and zero reject emissions.
The three-dimension: solutions to reduce building’s energy consumption, its waste water and rejects.
The four-system: consisting of renewable energy, conservation, water and material recycle systems.
Highlight technologies applied:
技术一:“光伏+储能+充电桩”一体化的多元互补能源发电微电网系统
1) the micro-grid system generated by integrated multi-complementary energy consisting of “photovoltaic + stored energy + charging pile”
▼太阳能光伏板,Solar photovoltaic panels© 直译建筑

技术二:智能光导纤维式太阳光导入器, 集高科技透镜集光、太阳跟踪、光导传送、安全照具于一体
2) intelligent optical fiber lighting system, accurately introducing solar energy
▼将紫、红外线大幅拦截分离的绿色、环保、清洁的新型健康光源、新型能源,Intelligent optical fiber lighting system © 中冶赛迪


技术三:高效节能围护材料,运用被动式理念
3) High-efficiency and energy-saving enclosures, maximizing passive house conservation result
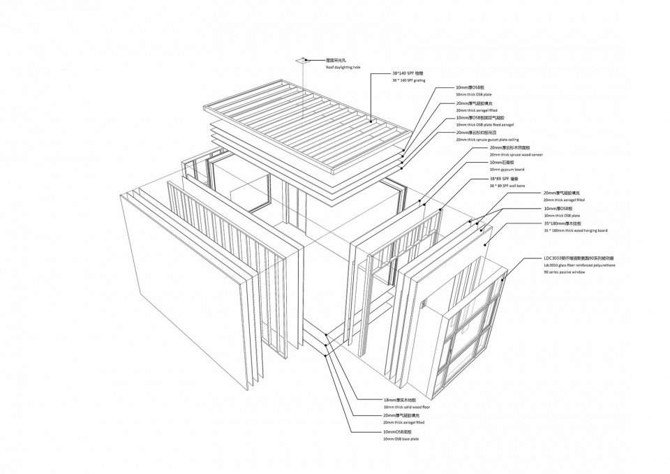
零碳小屋应用了热致调光玻璃、气凝胶保温、零碳集成墙体、聚氨酯节能被动门窗、三层中空LOW-E玻璃等多项创新科技材料技术产品,围护结构节能提升47.15%。
Giving full display of the passive house concept, the cabin’s enclosures have improved its energy conservation by 47.15 per cent. Multiple innovative technologies and materials have been applied – as the thermally switchable glass, the aerogel insulation, zero-carbon integrated walls, polyurethane energy-saving passive doors and windows, and three-layer hollow low-E glasses
▼展厅通透性,Wide-open showroom© 直译建筑

▼零碳小屋维护结构构造,Structural enclosures© 中冶赛迪

▼雨水收集系统,Rainwater collection system© 中冶赛迪

零碳小屋数据中心
Intelligent integration system
零碳小屋一方面配备环境温湿度、空气质量、颗粒物浓度、室内照度的传感器,另一方面配备建筑能耗、发电检测传感器等形成零碳小屋数据中心。室内动态展示系统通过零碳小屋数据中心的系统监测和智慧控制,时刻展示室内环境综合分析、建筑可再生能源综合分析、低碳减排效果相关数据。
The cabin has been equipped with various sensors, which apply new-generation information technology to accurately monitor and visualize outdoor environment and indoor energy consumption. Through the systematic monitoring and intelligent control,the indoor dynamic display system constantly displays the data related to the comprehensive analysis of indoor environment, the comprehensive analysis of building renewable energy and the effect of low carbon emission reduction.
▼动态展示系统,Dynamic display system© 中冶赛迪

▼透视图,Perspective view©直译建筑

▼装饰立柱,Decorative column© 直译建筑

▼立柱细节,Column details © 直译建筑

▼入口,Entrance© 直译建筑

▼入口,Entrance© 直译建筑

▼展厅通透性,Wide-open showroom© 直译建筑

▼小木屋,Log cabin© 中冶赛迪


2021年10月份国务院印发《2030年前碳达峰行动方案》,提出的零碳建筑成为建筑业未来发展新方向。零碳展厅在运行中通过外部及自身可再生能源供电,由于它的能源消耗被自身生产的可再生能源所抵消,成为一种高能效建筑。零碳展厅在建设过程中采用零碳技术建设体系、低碳材料建设,让建筑与人、自然环境更好的有机融合,探索中国零碳建筑发展,成为重庆首个零碳建筑的示范。
In October 2021, The State Council issued the “Carbon Peak Action Plan before 2030”, and the proposed zero-carbon building has become a new direction for the future development of the construction industry. In operation, the zero-carbon exhibition hall is powered by external and its own renewable energy. As its energy consumption is offset by its own renewable energy production, it becomes a highly energy efficient building. The zero-carbon exhibition hall adopts zero-carbon technology construction system and low-carbon materials in the construction process, so as to better integrate the building with people and the natural environment, explore the development of zero-carbon buildings in China, and become the first zero-carbon building demonstration in Chongqing.
▼平面图,Layout plan© 中冶赛迪

▼剖面图,Section view© 中冶赛迪

▼剖面图,Section view© 中冶赛迪

▼墙身大样图,Detail drawing of the wall© 中冶赛迪

项目名称:北碚缙云零碳小屋
项目类型:EPC
设计方:中冶赛迪工程技术股份有限公司
公司网站:http://www.cisdi.com.cn
联系邮箱:Mao.chang@cisdi.com.cn
完成年份:2021年
项目经理:刘瑛
设计团队:常茂、张晓飞、王孝渔、谌渝、张湖苇、邓漪、向聪、冯克亮、赵德强
技术支持团队:吴泽玲、吴敏、杨彬、王晓霞、李舒雅、高玲莉、鄢运强、刘俞、夏荣、陈晨、聶坤程
智能化团队:曾灵、陈成、封真雨、刘意
项目地址:重庆市北碚区缙云山翠月湖旁
建筑面积:133㎡
摄影版权:直译建筑摄影
合作方:重庆赛迪工程咨询有限公司
客户:重庆市北碚区生态环境局
Project name:Carbon-Zero House at Jinyun Mountain in Beibei District, Chongqing
Beibei District, Chongqing
Project type:EPC
Design:CISDI Engineering Co., Ltd
Website:http://www.cisdi.com.cn
Contact e-mail:Mao.chang@cisdi.com.cn
Design year:2021
Completion Year:2021
Leader designer & Team:Liu Ying,Chang Mao, Zhang Huwei, Deng Yi, Shen Yu and Xiang Cong
Technical support team:Wu Zeling, Yang Bin, Wang Xiaoxia, Li Shuya, Yan Yunqiang ,Liu Yu,Xia Rong and Chen Chen
Intelligent application team:Zeng Ling, Chen Cheng, Feng Zhenyu and Liu Yi
Project location:By the Cuiyue Lake in the Jinyun Mountain in Beibei District in Chongqing
Gross built area: 133㎡
Photo credit: Archi-translator
Partner:Chongqing CISDI Engineering Consulting Co., Ltd.
Clients:Chongqing Municipal Ecology and Environment Bureau (Beibei District)
More:中冶赛迪。更多关于:CISDIon gooood