Pointe-à-Pitre法院大楼的巨大尺度象征了法律的力量与权威,而通透的外观则象征了开放的精神与法律的平等与透明。建筑的设计旨在通过这种具有反差感的方式,打破人们对于法院冰冷的刻板印象,以温暖的氛围与清晰的几何体量,将该建筑司法体系的严苛规范中解放出来。
Traditionally large and thick as if to express force and power, the walls of the Courthouse in Pointe-à-Pitre evoke openness and transparency. In this way, the building challenges the ice-cold popular image of courts with an apparent warmth, an immediate readability of its forms, and a liberation from the authoritarian codes of judicial architecture.
▼项目概览,overview©Luc Boegly

在本项目中,建筑与城市肌理以及城市的主要路网保持了高度的连续性,同时也与Pointe-à-Pitre的周边建筑环境完美相融。整个法院中所采用的色调提取于当地的环境色彩,尤其参考了场地对面的政府大楼,而铝制遮阳板则反射了加勒比天空的灿烂阳光。建筑所唤起的轻盈之感在一定程度上也与城市中的其他建筑相互呼应,阳台、柱廊和遮阳篷的巧妙设计创造出一种非凡的在地性与身份认同感。
Built in continuity with the urban fabric and the principal alignments of the city, the Courthouse adapts to its relationship with other buildings in Pointe-à-Pitre. The colours used in the project come from the chromatic environment of Pointe-à- Pitre and in particular from the Prefecture building that faces it, while the varying light reflecting from the aluminum sun blocker comes from the sunshine of the Caribbean sky. The feeling of lightness evoked by the building also seeks a proximity with many other buildings in the city, where the finesse of the balconies, colonnades and awnings make for a remarkable sense of identity.
▼项目与周边环境鸟瞰,aerial view of the project and surrounding environment© Laure Vasconi

▼Dugommier街一侧立面,facade along the Dugommier©Luc Boegly

除体量和线条之外,建筑的力量还归功于材料的选择,设计的理念通过材料语言以有机的方式表达出来。这些材料带来的视觉与空间感受,象征了人们与司法系统之间既不遥远也不冷漠的关系,彰显出一种恰到好处的正义感。
Beyond its volumes and lines, the strength of the architecture owes itself to the choice of materials, through which a certain idea of the building is organically expressed. The materials, thanks to the effects they evoke to the gaze and in terms of physical sensations, express the will to establish a sense of justice that is neither remote nor cold.
▼Duplessis街一侧立面,facade along the Duplessis©Luc Boegly

▼建筑的色彩源自周围环境,
the color of the building derives from its surroundings©Luc Boegly

▼立面细部,details of the facade©Luc Boegly


▼玻璃幕墙与遮阳表皮之间的缝隙空间,
gap space between the glass curtain wall and the shading skin ©Luc Boegly

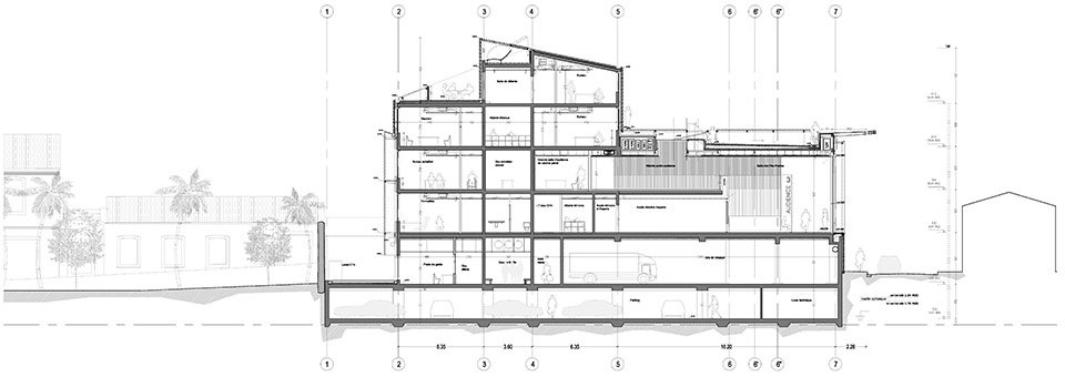
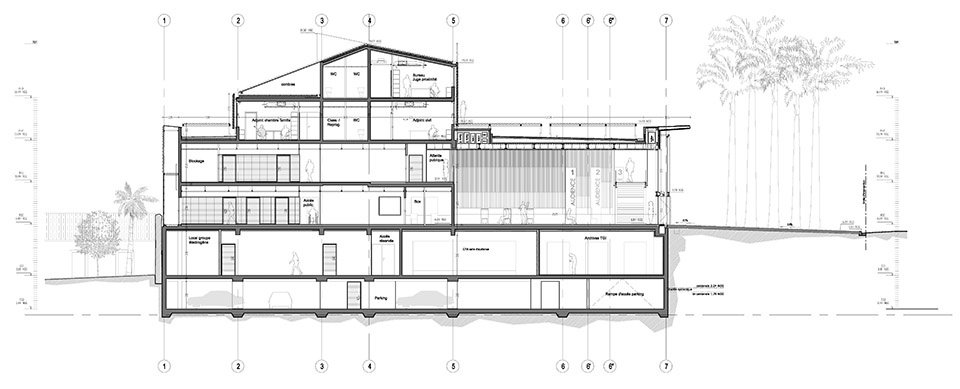
该建筑采用钢筋混凝土框架,并以严谨的几何结构,确保了屋顶与基础设施的完美连续性,引导地震应力准确地传递到地基之上。内部流线主要由垂直交通核心与水平向走廊组成,垂直交通核心如同建筑的脊柱,将公众、治安官、被拘留者和囚犯进行了准确的分流。大型金属框架系统构成了通透开放的公共空间,包括:法庭和公共大厅。
The building is constructed with a reinforced concrete frame with a rigorous geometry that ensures a perfect continuity of the roof with the infrastructure, to ensure the transfer of seismic stresses to the foundations. The plan is structured by a spine that houses the vertical distributions (dedicated to the public, magistrates, detainees and prisoners) and fluid pathways. This framework is completed by a metal framework covering the large public spaces: courtrooms and public lobby.
▼室内空间概览,overview of interior©Luc Boegly

▼法庭入口,entrance of the court hall©Luc Boegly

▼法庭体量,volume of the court hall© Laure Vasconi

▼法庭外等候区,seatings outside the court hall©Luc Boegly

▼通高空间,double-height space©Luc Boegly

立面围护结构起到了承重的作用,稳固地支撑了建筑的总体重量。该结构由钢筋混凝土框架与铝框玻璃幕墙共同组成,这种组合满足了建筑的基本需求:坚固性、防水性,以及能够确保空间可逆性的模块化构成。立面最外侧,一系列大型气候遮阳网对立面结构系统进行了补充,为建筑包括玻璃幕墙、实体墙以及屋顶在内的所有围护结构提供了有效的遮阳,同时也以被动节能的方式调节了室内的光环境,营造出舒适柔和的室内氛围。这种设置大幅度降低了建筑的能源消耗,同时将街道的嘈杂噪音隔绝在建筑之外,巧妙地化解了周围环境带来的劣势。此外,该遮阳网还能够保护玻璃表面免受猛烈气旋的冲击,进而延长了建筑的寿命,保障了使用者的安全。
The façades ensuring the envelope are load bearing in order to contribute to the bracing. Composed of reinforced concrete alternating with aluminum window frames forming a tunnel, they meet the building’s fundamental objectives: robustness, waterproofing, and modularity, in order to ensure the reversibility of the spaces. A large climatic shade mesh completes the system, providing sun protection for all surfaces of the building (glazing as well as walls and roofs) while offering passive control of the light intensity. This makes it possible to drastically reduce energy consumption. It ensures intimacy for the interior spaces vis-à-vis the busyness of the surrounding streets, because the building cannot benefit from any setback. Finally, it protects the glazed surfaces against shocks in the event of violent cyclones.
▼法庭室内,interior of the court hall©Luc Boegly

▼法庭室内细部,details of the court hall©Luc Boegly


遮阳网的材质采用了阳极氧化铝,这是出于技术与美学的双重需求。由于项目所处的环境具有强烈的紫外线以及含盐的空气,所有石膏、饰面板或外部涂料都会迅速褪色。而阳极氧化铝则具有耐蚀、耐磨的性质,因而能够与模块化的预制结构相互结合以实现必要的建筑精度。
The choice of aluminium in an anodised coloured finish for this shade mesh is a technical as well as an aesthetic one. Here, all coloured pigments of plaster, cladding, or bodywork fade quickly due to both the aggressive ultraviolet light and the saline air. Aluminium with an anodised finish was chosen above all for its unalterable chemical nature, combined with the necessary precision of a prefabricated modular implementation.
▼阳极氧化铝遮阳网,the shade mesh of aluminium in an anodised coloured©Luc Boegly


▼平面图,plan© Ignacio Prego Architectures

▼立面图,elevations© Ignacio Prego Architectures


▼剖面图,sections© Ignacio Prego Architectures


Location: Pointe-à-Pitre GUADELOUPE (971) – French West Indies
Programme: High Court
Built Area: 5 893 m2 gross floor area
Cost: € 24.2 million excluding tax
Client: APIJ – Agence publique pour l’immobilier de la Justice (Public Agency for Judicial Property)
Project management: Ignacio Prego Architectures
Principals –Ignacio Prego and Rémi Souleau
EGIS – BET TCE
Mazet & Associés Economist Vivié & Associés – Acoustician Plan 02 – BET HQE
Calendar:
Competition 2011
Construction Dec. 2015 – Jul. 2018 Opened Oct. 2018
Photography Credits: Luc Boegly Laure Vasconi
更多关于他们:Ignacio Prego Architectures More:Ignacio Prego Architectures on gooood