该项目是墨西哥城中的一座中型住宅,由七套一居至两居室的公寓组成,地下室设有停车场。设计在初期就已确定采用现浇混凝土结构,单元类型简单直接,旨在在最大程度上利用场地内的可建造面积以及建筑限高。在符合场地限制,且回应业主需求的情况下,建筑师将设计聚焦在了建筑立面的开窗中,致力于以丰富的开窗形式打造有趣的设计。
This project is for a mid-market residential building in Mexico City, consisting of seven 1-2 bedroom apartments with parking in the basement. It was decided early on that the construction system would be cast-place-concrete, that the unit types would be simple and straight forward, and that the building would maximize its site footprint and allowed height. These were constraints that satisfied the client’s desires and simultaneously allowed us to focus our efforts on an interesting opportunity in the project, the apertures.
▼公寓楼外观,exterior of the project© Rafael Gamo

▼沿街立面,facade along the street© Rafael Gamo

▼外观细部,details of exterior© Rafael Gamo


将建筑的两侧立面尽量贴近场地边界的策略,使本项目无法采用标准的开窗类型。为了将光线、视野与通风引入公寓楼的各个角落,建筑师为其构想出一系列贴近于常规又带有微妙不同的开窗设计。建筑立面上的矩形窗口仿佛发生了扭转,在顶部和底部形成两处带有直线纹理的斜面,并将窗口转变为凹陷的倒梯形。随着窗口的扭转,楼板也好似在拉扯着窗楣和窗台。
The site strategy drove the two side elevations toward the lot lines, making more standard windows undesirable. In order to allow light, view, and ventilation to all sides of the building, a scheme was developed to manipulate the windows into something familiar yet subtly strange. The rectangular windows are rotated into the building’s facade, resulting in two ruled surfaces at the top and bottom and transforming the window into an inverted trapezoidal bay. As the windows rotate in, the slabs appear to pull at the head and sill.
▼沿街视角,street view© Rafael Gamo

▼独特的外立面开窗,unique openings system© Rafael Gamo

▼主入口,entrance© Alexandra Bové



▼建筑与周围环境,the project and surrounding environment© Rafael Buzali

▼立面近景,closer view of the facade© Rafael Buzali


▼开窗细部,details of the windows© Rafael Gamo /Alexandra Bové



这种设计策略钝化了锋利的立面线条,同时形成了一种动态的浮雕效果,在立面上创造出起伏的阴影。这些独特的窗口也回应了不同室内场景的需求,对应了标准化的单元平面布局。从室内向外看,街景也因倾斜的视角而变得独特了起来,反过来,每个公寓单元也因此享有了独一无二的视觉景观。
▼立面分析图,analysis diagram of the facade© Michan Architecture

This results in a facade that is both extremely blunt in its flatness and is also a dynamic bas-relief of smooth undulating shadows. These windows also produced different interior moments as the shifting facade met the standardized unit layout. Views out from the interior became small events of forced oblique perspective as one looked both out and down the street at the same time making each unit unique as it approached the enclosure.
▼由底层公寓看入口台阶,viewing the entrance staircase from the ground floor apartment© Alexandra Bové

▼公寓内空间概览,overall of apartment interior© Rafael Gamo

▼独特的窗口重塑了室内外的关系,unique windows reshape the relationship between interior and exterior© Alexandra Bové

▼室内空间细部,interior details© Rafael Gamo


▼卧室细部,detail of the bedroom© Rafael Gamo

开窗的设计以其数字建模以及对拉丁美洲浇筑混凝土建筑历史的研究为基础。许多全尺寸的数字模型使建筑师能够精准地找到构造连接点,并采用板形混凝土作为开窗概念的整体表达。最后,本项目还采用了传统的建筑技术,结合可重复使用的玻璃纤维铸造模块,使其成为了介于数字技术和传统建筑之间的另一种表达。
The design process for the apertures was guided by both iterative digital models and research into the history of cast concrete ruled surfaces in the architecture of Latin America. A number of full-scale mock-ups allowed us to find a tectonic articulation that used board formed concrete as an integral expression of the aperture concept. The final methodology used traditional construction techniques combined with re-usable fiberglass casting modules to produce an alternative expression between digital technology and traditions of construction.
▼夜景鸟瞰,aerial view at night© Rafael Gamo

▼立面夜景,night view of the facade© Rafael Gamo


▼区位图,site plan© Michan Architecture

▼一层平面图,ground floor plan© Michan Architecture

▼二层平面图,1st floor plan© Michan Architecture

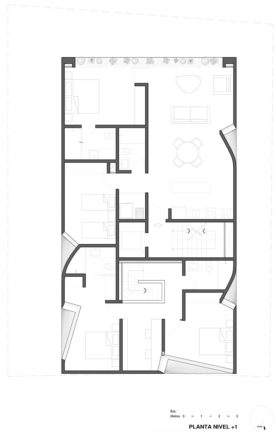
▼三层平面图,2nd floor plan© Michan Architecture

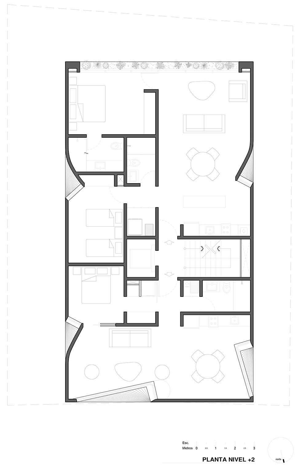
▼四层平面图,3rd floor plan© Michan Architecture

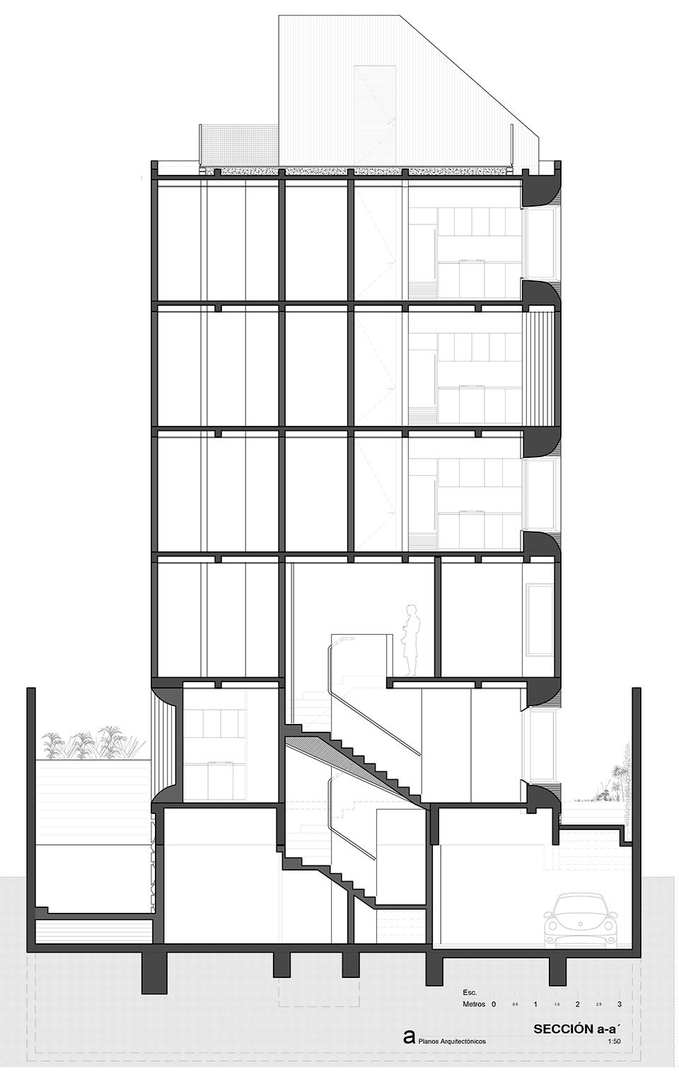
▼剖面图,section© Michan Architecture

project:DL1310
Architect:Michan Architecture + Young & Ayata
Year: 2020
Size (m2): 960 m2
Location: Desierto de los Leones 1310
Tetelpan, Álvaro Obregón, 01700 Ciudad de México, CDMX
Program: Vivienda Colectiva
More:Michan Architecture。更多请至:Michan Architecture on gooood