

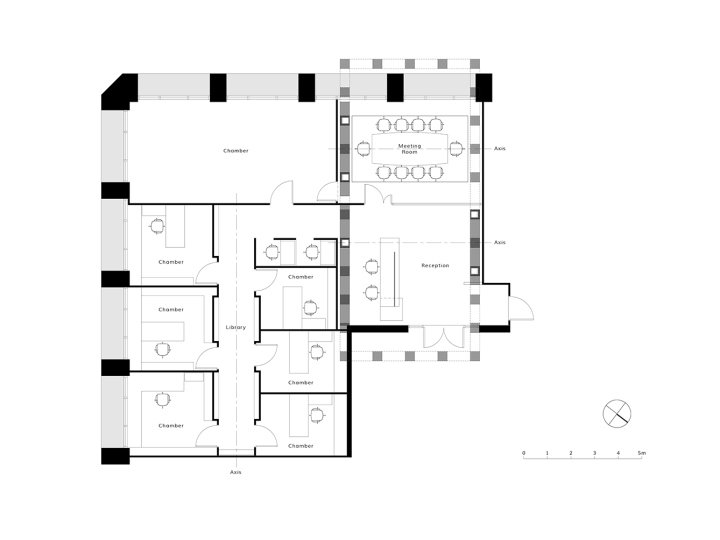
一个五乘十一的围墙,其柱子的放置遵循严格的比例,类似于法律和秩序的控制,是为了与律师室的布局相交而建立的。柱子的位置奠定了空间组织的基础和关键轴线。

面对大门,钱伯斯的标志部分暴露在石墙中,就像在考古遗址挖掘的黄铜文物一样。旁边是石头接待台,就像历史遗迹一样。这一发现在剩下的五个专栏中继续进行,人们可以在其中看到密室收藏的珍本书籍,这些书籍的历史可以追溯到 1782 年。

总而言之,这些作品象征着各个房间的历史。在其余的柱子之间,有一个入口通向分庭的法律书籍收藏图书馆。沿着图书馆,通往私人房间的通道隐藏在书柜之间。
设计单位:地块建筑事务所
摄影:Plot Architecture Office 和 Samson Tang












正文完
更多资讯,敬请关注「走访建筑」微信公众号😘