本项目是建筑师对日本福冈市一套拥有30年历史的公寓的改造,同时这套公寓也是建筑师与妻子和两个孩子的家。设计通过采用可移动的书柜作为卧室的隔断,实现了可以随着家庭形式的变化而扩展或收缩的居住空间。
▼项目视频,video© Masaaki Iwamoto/ Masaaki Iwamoto Laboratory
The project is a flat renovation of a 30-year-old apartment in Fukuoka City, Japan, a home for myself, my wife and our two children. By using movable bookcases as partitions of the bedrooms, I designed a house where the space expands and contracts as the form of the family changes.
▼项目概览,overall of the project© Yashiro Photo Office

在战后的日本,大部分公寓都是以父母和孩子为核心的家庭模式而设计的,客厅、餐厅、父母卧室、儿童房、厨房和浴室都挤在一个大约80平方米的小矩形平面中。而在本项目中,建筑师采用了不同的设计手法,将家庭的生活模式和平面布局一一对应起来。然而,家庭每时每刻都在成长和变化。虽然孩子们现在还小,但在不久的将来,他们自立后就会离开家。在孩子们离开后,父母理应享受更加宽敞的生活空间,但传统公寓中的空间却过于零散与拥挤,无法再度利用,孩子们空出来的房间通常最后被用作储藏室,装满了满是灰尘的纪念品纸箱。在这种背景下,建筑师构想出了一座可以随着家庭的变化而扩展或收缩的住宅。
▼不同时期的使用场景,
usage scenarios in different periods© Masaaki Iwamoto/ Masaaki Iwamoto Laboratory + ICADA

In postwar Japan, Most of the flat units were designed for nuclear families of a parent and children, with the living room, dining room, parents room, kid room, kitchen, and bathroom squeezed into a small rectangle of around 80 square meters. What you see here is a one-to-one correspondence between the family form and the floor plan. However, family grows and changes from moment to moment. Children, who are small now, will establish themselves and leave the house in the not too distant future. It would be reasonable for parents to enjoy the space after children leave, but the fragmented rooms in a conventional flat are too cramped to reuse and usually ends up as storage, filled with dusty cardboard boxes of mementos. Against this backdrop, the idea was to create a house where the rooms can expand and contract as family changes.
▼公寓入口,entrance of the flat© Yurika Kono

▼厨房,kitchen© Yashiro Photo Office

▼由工作桌/餐桌看厨房,viewing the kitchen from the dining/office table© Yashiro Photo Office

▼细部,details© Yashiro Photo Office

▼由厨房看阳台,viewing the balcony from the kitchen© Yashiro Photo Office


在本项目中,卧室被三个可移动的书架隔开,这些书架能够将空间分隔为四间小卧室,同时也能够将四间小卧室整合成一个大的房间。公寓中的所有空间都可以根据需求自由分配,当面向客厅的聚碳酸酯推拉门全部被打开时,整个公寓都可以整合为一个大空间。
The bedrooms are divided by three movable bookcases, which can be scattered to create four small alcoves, or gathered in one place to create one large room. The space of each room can be freely allocated, and by opening the polycarbonate sliding doors facing the living room, the entire house can be made into one large space.
▼可移动聚碳酸酯推拉门分隔了客厅与卧室,movable polycarbonate sliding doors separate the living room from the bedroom© Yashiro Photo Office

▼可移动灯具,movable lighting feature© Yashiro Photo Office

▼卧室被三个可移动的书架隔开,the bedrooms are divided by three movable bookcases © Yashiro Photo Office

▼卧室可合并为一个大空间,the bedrooms can be combined into one large space © Yashiro Photo Office

▼合并后的书柜,themerged bookcases© Yashiro Photo Office

▼书柜实际使用场景,actual use scenario of bookcase© Yurika Kono


在材料和细节上,设计追求实用性和客观性,城市中常见的材料在本项目中得到了重新诠释并转化为建筑元素。可移动的书柜/隔板由图书馆中的现成产品改造而成。起居室和卧室之间的推拉门则采用了厚聚碳酸板与波纹金属栏杆,这些能够在城市中发现的普通材料以另一种方式诠释了日本传统的纸屏风。
For the materials and details, we pursued practicality and objectivity. Everyday materials found in the city are reinterpreted and become architectural elements. The movable bookcases/partitions are by modifying readymade products used in libraries. The sliding doors between the living room and the bedrooms are thick polycarbonate panels with rails made of corrugated metal; an interpretation of Japanese paper screens using materials found in the city.
▼餐桌/工作桌,dining table / office table© Yashiro Photo Office


▼可移动隔板与置物柜,movable partitions and cabinets© Yashiro Photo Office

▼细部,details© Yashiro Photo Office


为了提高室内的热舒适性,建筑师为整个公寓单元、甚至隔壁单元都添加了隔热层。在住宅综合体中,热量传递到相邻单元而造成热损失的情况是不容忽视的。此外,天花板上也衬有隔热板,隔热板背面为铝箔,这是一种通常用于工厂的材料,可以反射穿过窗户的光线,并将其引导到房间深处。
▼热舒适性分析,analysis diagram ofthermal comfort© Masaaki Iwamoto/ Masaaki Iwamoto Laboratory + ICADA


To enhance the thermal comfort, insulation were added to cover the entire unit, including the boundaries of neighboring units: In a housing complex, heat transfer to neighboring unit cannot be overlooked. The ceiling is lined with insulation panels backed with aluminum foil, a material normally used in a factory, which reflects the light coming through the windows and leads it deep into the room.
▼由餐桌/工作桌看书房,viewing the study from the dining / office table© Yashiro Photo Office

▼书房,study© Yashiro Photo Office, Yurika Kono


▼细部,details© Yashiro Photo Office, Yurika Kono


▼由书房看浴室入口,viewing the entrance of the bathroom from the study© Yurika Kono

▼入口厨房与浴室内部,kitchen island at the entrance and interior of the bathroom© Yashiro Photo Office


窗边的长凳是一件受日式传统房间实用性启发的小家具,它既是叠衣服的地方,也是孩子们的游乐场。悬臂式旋转灯照亮了餐厅岛台与大型工作台,与窗边长凳一样,灯具的结构也是由不锈钢方管制成的,内部的铅块则保证了灯具的平衡。
The bench by the window is a small piece of furniture inspired by the practicality of a Japanese room. It is a place to fold clothes and a fun playground for children. A cantilevered rotating light illuminates the dining counter or the large working table. Like the tatami bench, its structure is made from stainless steel square pipe, balancing thanks to a lump of lead inside as a counterweight.
▼餐桌/工作桌实际使用场景,actual use scenario of the dining/office table© Yurika Kono



▼可移动储物空间实际使用场景,actual use scenario of the movable cabinets© Yurika Kono

▼窗边长凳实际使用场景,actual use scenario of the bench by the window© Yurika Kono



▼卧室实际使用场景,actual use scenario of the bedroom© Yurika Kono

▼模型,model© Masaaki Iwamoto/ Masaaki Iwamoto Laboratory + ICADA

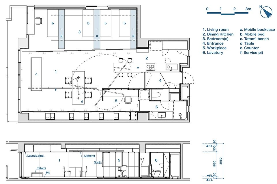
▼平面图与剖面图,plan and section© Masaaki Iwamoto/ Masaaki Iwamoto Laboratory + ICADA

▼材料分析图,analysis diagram of material© Masaaki Iwamoto/ Masaaki Iwamoto Laboratory + ICADA

Project name: Flat renovation in Sakurazaka
Location: Fukuoka, Japan
Status: Built in Feb 2021
Program: Flat renovation
Architect: Masaaki Iwamoto
Energetic consultant: Kozo Takase/ Tokyo University of Science
Structure: Kosuke Araki/ XYZ structure
Lighting design: Masaaki Sato, Yuri Goto, Ryohei Koyama/ ModuleX
Design Assistant: Ryo Katayama, Riko Saegusa, Shoichi Nakamoto
Contractor: ExWorks
Client: Masaaki Iwamoto
GFA: 86.11m2
Photographer: Yashiro Photo Office, Yurika Kono
More:Masaaki Iwamoto Laboratory(mail:masaaki.iwamoto@gmail.com) 更多关于:Masaaki Iwamoto Laboratoryon gooood